Neuwertige, geförderte 2 Zimmer-Wohnung mit Balkon - Eckertstraße 56 Top 1 - nahe FH-Joanneum
Wohnung
- Etage,
8020
Graz
,
Eckertstraße 56
Beschreibung der Immobilie
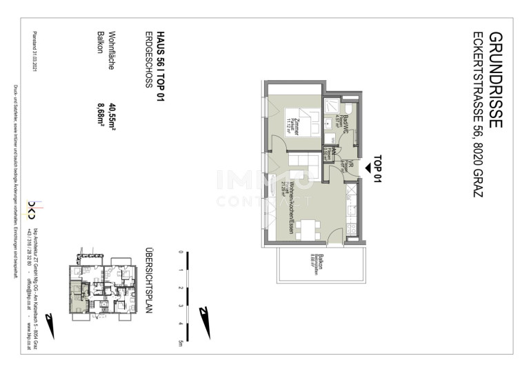
Diese ca. 40,55 m² große 2 Zimmer-Wohnung befindet sich im Hauses Eckertstraße 56, in einem modernen, neuwertigen Wohnhaus.
RAUMAUFTEILUNG: Vorraum, offenen Wohnküche, Schlafzimmer, Bad/Toilette, Abstellnische, Kellerabteil, Balkon.
AUSSTATTUNG: Die Wohnung ist mit hochwertigen Parkettböden im Wohnbereich sowie mit Fliesenboden im Bad ausgestattet . Das Badezimmer ist unter anderem mit einer Dusche und einem Waschmaschinenanschluss ausgestattet. Darüber hinaus verfügt die Wohnung Einbauküche inklusive Elektrogeräten. Die Wohnung wird mittels Fernwärme beheizt. Das Warmwasser wird ebenfalls zentral mit Fernwärme aufbereitet. Dieser Wohnung ist darüber hinaus ein Kellerabteil zugeteilt.
LAGE: ruhige und zentrale Lage in der Eckertstraße 56
PARKEN: Es besteht die Möglichkeit Parkplätze (ab € 85,00) in der hauseigenen Tiefgarage anzumieten.
Der Immobilienmakler erklärt, dass er - entgegen dem in der Immobilienwirtschaft üblichen Geschäftsgebrauch des Doppelmaklers - einseitig nur für den Vermieter tätig ist.
Wir weisen darauf hin, dass zwischen dem Vermittler und dem zu vermittelnden Dritten ein wirtschaftliches Naheverhältnis mit gesellschaftlicher Verflechtung besteht.
Der Immobilienmakler erklärt, dass er – entgegen dem in der Immobilienwirtschaft üblichen Geschäftsgebrauch des Doppelmaklers – einseitig nur für den Vermieter tätig ist.
Infrastruktur / Entfernungen
Gesundheit
Arzt <100m
Apotheke <275m
Klinik <625m
Krankenhaus <1.050m
Kinder & Schulen
Schule <275m
Kindergarten <25m
Universität <350m
Höhere Schule <350m
Nahversorgung
Supermarkt <75m
Bäckerei <225m
Einkaufszentrum <1.250m
Sonstige
Geldautomat <225m
Bank <225m
Post <275m
Polizei <775m
Verkehr
Bus <200m
Straßenbahn <200m
Autobahnanschluss <4.000m
Bahnhof <725m
Flughafen <9.400m
Angaben Entfernung Luftlinie / Quelle: OpenStreetMap
Eckdaten
| Gesamtmiete: | 725,99 € |
| Fläche: | 40,55 m² |
| Zimmer: | 2 |
Basisdaten zur Immobilie
| Objektnr: | 1939/217789 |
| Art: | Wohnung - Etage |
| Land: | Österreich |
| Baujahr: | 2021 |
| Zustand: | Neuwertig |
| Gesamtmiete: | 725,99 € |
| Kaltmiete (netto): | 446,85 € |
| Kaltmiete: | 585,90 € |
| Provision: | Gemäß Erstauftraggeberprinzip bezahlt der Abgeber die Provision. |
| Betriebskosten: | 139,05 € |
| Heizkosten: | 67,91 € |
| MwSt Gesamt: | 72,18 € |
| Wohnfläche: | 40,55 m² |
| Zimmer: | 2 |
| Bäder: | 1 |
| WC: | 1 |
| Balkone: | 1 |
| Heizwärmebedarf: | B 25,97 kWh/m²a |
| fGEE: | A 0,65 |
Ausstattung
Parkett, Fernwärme, Fußbodenheizung, Einbauküche, Wohnküche / offene Küche, Personenaufzug, Dusche
Internet und TV
Information zur Internet und TV Versorgung hier
Ihre persönliche Beratung
Jan Sarkantyu
IMMOcontract Immobilien Vermittlung GmbH
J.Sarkantyu@IMMOcontract.at
+43 316 890 800
+43 664 423 19 13
