Lage der Immobilie
1050 Wien Fendigasse, verkehrsberuhigte EinbahnstrasseBeschreibung der Immobilie
PROVISIONSFREI
In der Fendigasse, 1050 Wien, steht eine neu sanierte Altbau-Eigentumswohnung zum Verkauf.
Die Wohnung befindet sich im 1. Lift-Stock.
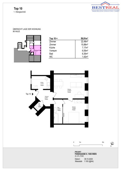
Die Wohnfläche beträgt ca. 60 m² Wohnfläche und hat eine Raumhöhe von ca. 3.2 m.
Die Wohnung wurde kürzlich generalsaniert und umgebaut.
- 1 Badezimmer mit Badewanne + Dusche, Waschtisch mit Spiegelschrank
- 1 WC mit Entlüftung + Kippfenster zum Lichthof
- 1 Vorraum
- Zimmer 1 mit 2 Fenster zur Kohlgasse
- Zimmer 2 mit 2 Fenster zur Kohlgasse
- 1 Küchenraum mit Fenster zum Hausgang, alle Anschlüsse vorhanden
Heizung: neue moderne Fußbodenheizung mit Vaillant E-Block Stromheizung, Gorenje-Warmwasserspeicher. Versorgung mit Warmwasser und Heizung erfolgt ohne Gastherme, ohne Heizkörper, keine Thermen-Wartung notwendig.
Folgendes wurde erneuert:
- Parkettböden,
- Sicherheitsschlösser,
- Gegensprechanlage,
- E-Kasten,
- Boden und Wand-Fliesen,
- alle Leitungen,
- PC- und TV-Anschlüsse,
- schalldichte Mehrschichtfenster,
- neue Eingangstüre mit Sicherheitsschloss
- Türen und Beschläge
- Armaturen
- alle Wände / Räume neu ausgemalt,
- Decken-Beleuchtungen,
- neues Kellerabteil
Fenster sind zur Kohlgasse, Gangfenster.
Das LIFT-Haus ist hofseitig begrünt, mit einer Fahrradabstellfläche im Hof und im Stiegenhaus.
Lage:
nahe bei Fendigasse - Kreuzung Reinprechtsdorferstraße.
Geplante U2 -Station Reinprechtsdorferstraße, Eröffnung 2030.
Autobuslinien 12A und 14 A zur U4 Pilgramggasse
Für weitere Fragen rufen Sie 0664/230 52 42 oder senden ein mail an office@bestreal.at
Infrastruktur / Entfernungen
Gesundheit
Arzt <500m
Apotheke <500m
Klinik <1.000m
Krankenhaus <1.000m
Kinder & Schulen
Schule <500m
Kindergarten <500m
Universität <1.000m
Höhere Schule <1.000m
Nahversorgung
Supermarkt <500m
Bäckerei <500m
Einkaufszentrum <1.500m
Sonstige
Geldautomat <500m
Bank <500m
Post <500m
Polizei <1.000m
Verkehr
Bus <500m
U-Bahn <500m
Straßenbahn <500m
Bahnhof <500m
Autobahnanschluss <3.500m
Angaben Entfernung Luftlinie / Quelle: OpenStreetMap
Eckdaten
| Kaufpreis: | 379.000,00 € |
| Fläche: | 60,00 m² |
| Zimmer: | 2 |
Basisdaten zur Immobilie
| Objektnr: | 11395 |
| Art: | Wohnung - Etage |
| Land: | Österreich |
| Baujahr: | 1900 |
| Zustand: | Voll_saniert |
| Alter: | Altbau |
| Kaufpreis: | 379.000,00 € |
| Kaufpreis / m²: | 6.316,67 € |
| Betriebskosten: | 127,00 € |
| MwSt Gesamt: | 12,70 € |
| Wohnfläche: | 60,00 m² |
| Nutzfläche: | 60,00 m² |
| Zimmer: | 2 |
| Bäder: | 1 |
| WC: | 1 |
| Garten: | 100,00 m² |
| Keller: | 3,00 m² |
| Heizwärmebedarf: | C 96,85 kWh/m²a |
Ausstattung
Fliesen, Parkett, Alternativ, Elektro, Fußbodenheizung, Personenaufzug, Bad mit Fenster, Dusche, Kabel/Satelliten-TV
Internet und TV
Information zur Internet und TV Versorgung hier
Ihre persönliche Beratung
Stephan Huemer
BESTREAL® Immobilienconsulting GmbH
office@bestreal.at
+43 1 504 1203-11
0664 230 5242
F +43 1 504 1203-55
