EIN BLICK AUF DIE SONNENSEITE, TERRASSENWOHUNG IN OBER ST. VEIT
Wohnung
- Terrassenwohnung,
1130
Wien
Lage der Immobilie
Unsere Wohnung liegt in der Firmiangasse, in absoluter Ruhelage in Ober St. Veit. Natürlich befinden sich zahlreiche Einkaufsmöglichkeiten in der Nähe. In der Auhofstraße finden Sie einen Billa, eine Bäckerei und eine Apotheke. Oder Sie gehen nach oben auf die Hietzinger Hauptstraße, hier gibt es einen Gourmet Spar, diverse Boutiquen, verschiedene Bäckereien, eine Bank, einen Schuster, ein Papiergeschäft... ÖFFENTLICHE VERKEHRSANBINDUNG: In ca. 8 Minuten zu Fuß erreichen Sie die U4 Station Ober St. Veit, also eine perfekte Anbindung. Außerdem ist ganz in der Nähe, beim Streckerpark, die Share Now Grenze, sollten Sie nachhaltig Carsharing betreiben wollen. WOHNCLOUD EMPFEHLUNG: Die Pizzeria Da Salvatore, echte neapolitanische Pizza der Spitzenklasse und als Nachspeise gehts dann zum Anton, der unseres Erachtens das beste Speiseeis macht mit saisonalen Früchten!Beschreibung der Immobilie
EIN BLICK AUF DIE SONNESEITE, TERRASSENWOHUNG IN OBER ST. VEIT
WOHNCLOUD SCHMUCKSTÜCKE - IMMOBILIEN MIT CHARAKTER, HERZ UND CHARME
Willkommen in Ihrer neuen Terrassenwohnung - ab sofort bereit für den Einzug! Hier atmet man auf. Gute Luft und viel Grün.
BESCHREIBUNG
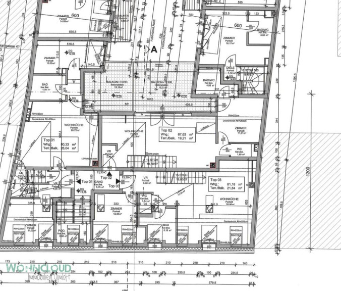
Die Wohnung befindet sich im 1. Stock einer kleinen, charmanten Anlage - überschaubar, gemütlich, fast schon familiär.
Schon beim Eintreten spüren Sie: Hier stimmt die Atmosphäre.
Der helle Vorraum mit natürlichem Licht von oben empfängt Sie freundlich. Rechts befindet sich das ruhig gelegene Schlafzimmer - perfekt geschnitten und wunderbar privat. Wenige Schritte weiter liegt das separate WC mit Handwaschbecken und das helle Badezimmer mit Waschbecken, Badewanne und Waschmachinenanschluss.
UND dann öffnet sich das Herzstück der Wohnung: Der großzügige Wohnküchenbereich. Offen gestaltet, lichtdurchflutet, modern - Platz für einen großen Esstisch und ein gemütliches Sofa. Die Küche ist top ausgestattet mit Kochinsel und allen Geräten, hier macht das Kochen Spaß.
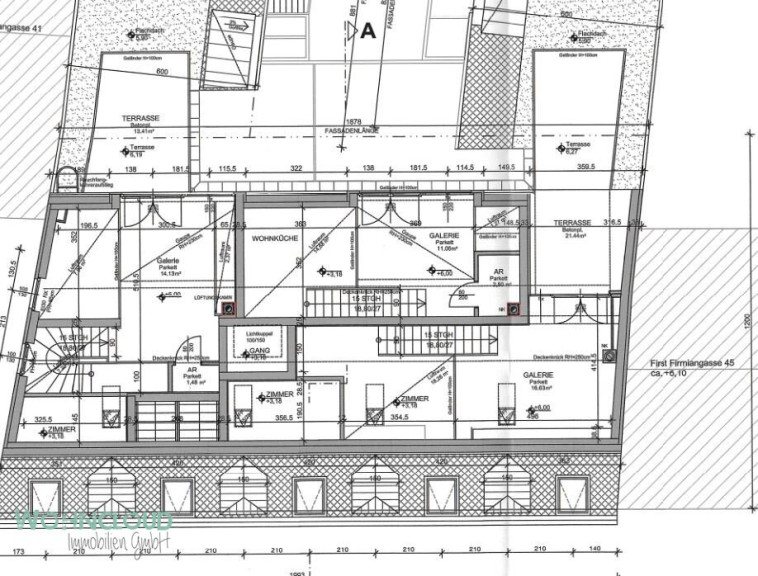
Über eine stilvolle Stiege erreichen Sie das Galeriegeschoss. Ideal als Homeoffice, Leseecke oder Gästebereich - flexibel nutzbar, ganz wie Ihr Leben es gerade braucht. Von hier aus geht es auf die TRAUMTERRASSE. Mit 21qm großzügig bemessen, südwestlich ausgerichtet, Sonne garantiert und Abendstimmung inklusive.
Zusätzlich zu Ihrer eigenen Freifläche bietet die Anlage noch einen sehr großen, sonnigen Gemeinschaftsgarten.
Für wohlige Fußwärme an kalten Tagen sorgt die topmoderne Fußbodenheizung. Ein integriertes Belüftungsystem bringt die gute, frische Luft in Ihre Wohnung.
FAKTEN
- zwei Etagen
- 81m2
- Vorraum
- große Wohnküche mit Kochinsel
- Schlafzimmer
- Tageslichtbadezimmer mit Badewanne und Waschbecken
- WC
- offener Galeriebereich - mit südwestlich ausgerichtete Traumterrasse (21 qm)
- Fußbodenheizung
- integriertes Raumlüftungssystem
- Sat-Anlage
- Garagenplätze optional anmietbar (EUR 168,00 brutto)
MONATLICHE KOSTEN
- Nettomiete zzgl. 10% Ust EUR 1.299,83
- Netto Betriebskosten zzgl. 10% USt EUR 316,54
- Umsatzsteuer 10% EUR 161,63
- Monatliche Gesamtmiete EUR 1.778,00
WOHNCLOUD FAZIT
Für smarte Singles oder Paare mit Anspruch, die urbanen Lifestyle und entspannten Grünblick verbinden möchten.
Ihr WOHNCLOUD Team
... DIE MIT DEM FRISCHEN WIND
Wir freuen uns auf SIE!
Wir weisen darauf hin, dass zwischen dem Vermittler und dem zu vermittelnden Dritten ein familiäres oder wirtschaftliches Naheverhältnis besteht.
Der Immobilienmakler erklärt, dass er – entgegen dem in der Immobilienwirtschaft üblichen Geschäftsgebrauch des Doppelmaklers – einseitig nur für den Vermieter tätig ist.
Infrastruktur / Entfernungen
Gesundheit
Arzt <500m
Apotheke <500m
Klinik <2.000m
Krankenhaus <1.000m
Kinder & Schulen
Schule <500m
Kindergarten <500m
Universität <1.000m
Höhere Schule <4.500m
Nahversorgung
Supermarkt <500m
Bäckerei <500m
Einkaufszentrum <4.000m
Sonstige
Geldautomat <500m
Bank <500m
Post <500m
Polizei <1.000m
Verkehr
Bus <500m
U-Bahn <500m
Straßenbahn <1.000m
Bahnhof <1.000m
Autobahnanschluss <4.000m
Angaben Entfernung Luftlinie / Quelle: OpenStreetMap
Eckdaten
| Gesamtmiete: | 1.778,00 € |
| Fläche: | 81,18 m² |
| Zimmer: | 2 |
Basisdaten zur Immobilie
| Objektnr: | 1622 |
| Art: | Wohnung - Terrassenwohnung |
| Land: | Österreich |
| Baujahr: | 2016 |
| Zustand: | Neuwertig |
| Alter: | Neubau |
| Gesamtmiete: | 1.778,00 € |
| Kaltmiete (netto): | 1.616,36 € |
| Kaltmiete: | 1.616,36 € |
| Provision: | Gemäß Erstauftraggeberprinzip bezahlt der Abgeber die Provision. |
| MwSt Gesamt: | 161,64 € |
| Wohnfläche: | 81,18 m² |
| Zimmer: | 2 |
| Bäder: | 1 |
| WC: | 1 |
| Terrassen: | 1 |
| Keller: | 4,86 m² |
| Heizwärmebedarf: | C 56,50 kWh/m²a |
| fGEE: | B 0,93 |
Ausstattung
Parkett, Fliesen, Gas, Etagenheizung, Fußbodenheizung, Einbauküche, Wohnküche / offene Küche, Bad mit Fenster, Dusche, Kabel/Satelliten-TV, Garage
Internet und TV
Information zur Internet und TV Versorgung hier
Ihre persönliche Beratung
Petra Beckmann
WOHNCLOUD IMMOBILIEN GMBH
pb@wohncloud-immobilien.at
+ 43 676 33 60 314
F +43 2742 222 333 3645
