Beschreibung der Immobilie
ECKREIHENHAUS in TOP ZUSTAND !
Das Eckreihenhaus liegt im beliebten 1210 Wien, nahe dem Leopoldauer Platz und dem Shopping City Nord.
Auf drei Wohnraumetagen, zuzüglich Vollkeller, können auch Sie ausreichend Platz für sich und Ihre Lieben finden.
Die hochwertige Ausstattung und die attraktive Lage, besonders hervorzuheben sind die zwei Terrassen und der liebevoll gestaltete Garten, die Ihnen wunderbare Möglichkeiten zum Entspannen und Genießen im Freien bieten. Der herrliche Ausblick auf die grüne Umgebung und die Stadt schafft eine angenehme Atmosphäre, die zum Verweilen einlädt.
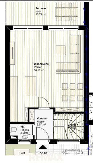
Moderne, durchdachte Raumaufteilung, 3-fach isolierte Fenster, 4 Zimmer, 1 Dachterrasse, Wohn-Ess-Küche, Terrasse im Garten und ein PKW-Abstellplatz auf Eigengrund. Fußbodenheizung in allen Räumen und auch im Keller, betrieben durch eine effiziente Luft/Wärmepumpe, dies alles finden Sie hier, im sofort bezugsfähigem Zustand.
Die Lage bietet beste Infrastruktur: Arzt, Apotheke, Schule, Kindergarten, Supermarkt, Bäckerei, Post und Polizei sind fußläufig erreichbar. Öffentliche Verkehrsmittel wie Bus und Straßenbahn sorgen für optimale Anbindung. Ideal für Familien und Pendler.
Verkehrstechnisch gibt es öffentlichen Anschluss durch die Autobusse 28A + 29A, Straßenbahn und U-Bahn sind weniger als 2 km entfernt.
Überzeugen Sie sich selbst von den Vorzügen dieser Immobilie und vereinbaren Sie noch heute einen Besichtigungstermin! Ihr neues Zuhause in Wien wartet auf Sie.
Wir bitten um Verständnis, dass auf Grund der Nachweispflicht gegenüber dem Eigentümer nur Anfragen mit vollständigen Kontaktdaten (Name, Adresse, Tel., Email) beantwortet werden können.
Der Vermittler ist als Doppelmakler tätig.
Infrastruktur / Entfernungen
Gesundheit
Arzt <1.000m
Apotheke <1.000m
Klinik <1.500m
Krankenhaus <1.500m
Kinder & Schulen
Schule <1.000m
Kindergarten <500m
Universität <1.500m
Höhere Schule <2.000m
Nahversorgung
Supermarkt <500m
Bäckerei <1.000m
Einkaufszentrum <1.500m
Sonstige
Geldautomat <1.500m
Bank <1.500m
Post <1.000m
Polizei <1.000m
Verkehr
Bus <500m
U-Bahn <1.500m
Straßenbahn <1.000m
Bahnhof <1.500m
Autobahnanschluss <2.000m
Angaben Entfernung Luftlinie / Quelle: OpenStreetMap
Eckdaten
| Kaufpreis: | 749.000,00 € |
| Fläche: | 116,00 m² |
| Zimmer: | 4 |
Basisdaten zur Immobilie
| Objektnr: | 2279/2889 |
| Art: | Haus - Reiheneckhaus |
| Land: | Österreich |
| Baujahr: | 2020 |
| Zustand: | Neuwertig |
| Alter: | Neubau |
| Kaufpreis: | 749.000,00 € |
| Provision: | 26.964,00 € inkl. 20% USt. |
| Betriebskosten: | 330,00 € |
| Wohnfläche: | 116,00 m² |
| Nutzfläche: | 150,00 m² |
| Zimmer: | 4 |
| Bäder: | 2 |
| WC: | 3 |
| Terrassen: | 2 |
| Stellplätze: | 1 |
| Garten: | 63,00 m² |
| Keller: | 39,00 m² |
| Heizwärmebedarf: | B 40,20 kWh/m²a |
Ausstattung
Parkett, Fliesen, Einbauküche, Bad mit Fenster, Badewanne, Dusche, Kabel/Satelliten-TV, Parkplatz
Internet und TV
Information zur Internet und TV Versorgung hier
Ihre persönliche Beratung
Mr. Robert Habel
RE/MAX Living Home Sweet Home Immobilien GmbH
r.habel@remax-living.at
+43 1 886 05 71
+43 664 916 37 65
