NEU am Wienerberg ++Westausrichtung mit AbendSonne & AbendRot++Moderne 3-Zimmer (Optional 4-Zimmer) Neubauwohnung++Der perfekte Start für Paare oder junge Familien, die urbanes Wohnen mit Naturverbundenheit vereinen möchten
Wohnung
- Etage,
1100
Wien
Lage der Immobilie
Erholungsgebiet Wienerberg / Twin TowerBeschreibung der Immobilie
IDEAL FÜR EIGENNUTZER & ANLEGER
Westausrichtung mit traumhafter Abendsonne & stimmungsvollen Sonnenuntergängen
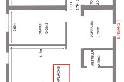
Am äußerst beliebten Wienerberg, in einer der gefragtesten Wohnlagen Wiens, gelangt diese moderne und äußerst gepflegte 3-Zimmer-Neubauwohnung mit ca. 87 m² Wohnfläche zum Verkauf.
Die Wohnanlage wurde im Jahr 2004 von dem renommierten österreichischen Bauträger Mischek errichtet und überzeugt durch Qualität, Nachhaltigkeit und eine durchdachte Architektur.
Ob für junge Paare, Familien mit Zukunftsplänen oder anspruchsvolle Stadtmenschen – diese Wohnung bietet die ideale Kombination aus urbanem Leben und naturnaher Erholung.
Hier wohnen Sie ruhig, grün und dennoch bestens angebunden – ein Zuhause mit echter Lebensqualität und Wohlfühlcharakter.
Die Wohnung befindet sich in einem sehr gepflegten Zustand und ist sofort bezugsfertig.
WOHNEN MIT STIL, KOMFORT & SICHERHEIT
Die Wohnung überzeugt durch eine durchdachte Raumaufteilung, helle Wohnräume und vielseitige Nutzungsmöglichkeiten – ob Homeoffice, Kinderzimmer oder großzügiger Wohnbereich.
Die moderne Einbauküche ist bereits im Kaufpreis inkludiert und stellt einen echten Mehrwert dar.
Beheizt wird die Wohnung mittels Fernwärme.
Weitere Highlights:
-
Sicherheitstür
-
Außenrollos für optimalen Sonnen- und Sichtschutz
-
Drei Aufzüge im Haus – zwei großzügige Personenlifte (6–8 Personen) sowie ein zusätzlicher Lift mit direktem Zugang zu Keller und Tiefgarage.
LAGE – STADTLEBEN TRIFFT NATUR
Ein ausführliches Lageexposé (83 Seiten) stellen wir Ihnen gerne auf Anfrage zur Verfügung.
Die Wohnanlage befindet sich direkt am beliebten Erholungsgebiet Wienerberg – Sie wohnen praktisch im Grünen, fernab vom Straßenlärm und dennoch mitten im urbanen Leben.
In unmittelbarer Umgebung finden Sie alles für den täglichen Bedarf:
Geschäfte, Supermärkte, Schulen, Kindergärten, Restaurants sowie eine ausgezeichnete öffentliche Verkehrsanbindung.
Ein besonderes Highlight ist die Nähe zum Wienerberg-Erholungsgebiet mit zahlreichen Freizeit-, Sport- und Erholungsmöglichkeiten.
Zusätzlich wird der Standort künftig durch die neue U2-Station Wienerberg weiter aufgewertet – mit direkter Verbindung bis zum Wiener Rathaus.
Kaufpreis & Konditionen
Kaufpreis: EUR 399.000,–
Provision: 3 % des Kaufpreises zzgl. 20 % USt.
INTERESSE GEWECKT?
Nutzen Sie diese seltene Gelegenheit und sichern Sie sich eine hochwertige Immobilie in Top-Lage – ideal zur Eigennutzung oder als wertstabile Investition.
Besichtigungen sind jederzeit nach Terminvereinbarung möglich.
Herr Milutinovic steht Ihnen gerne – auch am Wochenende – unter +43 699 107 50 296 zur Verfügung.
HINWEIS
Aufgrund gesetzlicher Bestimmungen (FAGG und VRUG) können Besichtigungstermine ausschließlich nach schriftlicher Anfrage mit vollständigen Kontaktdaten (Name, E-Mail-Adresse und Telefonnummer) vereinbart werden.
SIE MÖCHTEN IHRE IMMOBILIE VERKAUFEN?
Gerne unterstützen wir Sie mit einem umfassenden Service beim Verkauf Ihrer aktuellen Immobilie.
Auf Wunsch organisieren wir auch eine Zwischenfinanzierung über unsere Bankpartner, damit Sie flexibel bleiben und Ihre Wunschimmobilie nicht verpassen.
Wir weisen darauf hin, dass zwischen dem Vermittler und dem zu vermittelnden Dritten ein familiäres oder wirtschaftliches Naheverhältnis besteht.
Der Vermittler ist als Doppelmakler tätig.
Eckdaten
| Kaufpreis: | 399.000,00 € |
| Fläche: | 87,00 m² |
| Zimmer: | 3 |
Basisdaten zur Immobilie
| Objektnr: | 28516 |
| Art: | Wohnung - Etage |
| Land: | Österreich |
| Baujahr: | 2004 |
| Zustand: | Gepflegt |
| Alter: | Neubau |
| Kaufpreis: | 399.000,00 € |
| Provision: | 3% des Kaufpreises zzgl. 20% USt. |
| Betriebskosten: | 219,09 € |
| MwSt Gesamt: | 24,26 € |
| Wohnfläche: | 87,00 m² |
| Zimmer: | 3 |
| Bäder: | 1 |
| WC: | 1 |
| Heizwärmebedarf: | B 38,56 kWh/m²a |
| fGEE: | C 1,06 |
Ausstattung
Steinboden, Fernwärme, Einbauküche, Lastenaufzug, Personenaufzug
Internet und TV
Information zur Internet und TV Versorgung hier
Ihre persönliche Beratung
Predrag Milutinovic
TRISTAR Immobilien
milutinovic@tristar.at
+43 699 107 50 296
