Familienfreundliche 3 Raum-Wohnung mit sonniger Loggia in toller Lage!
Wohnung
,
8700
Leoben
,
Heipelweg 8
Lage der Immobilie
In sonniger, zentrumsnaher Siedlung am Murufer in Leoben, mit zahlreichen Verkehrsanbindungen und tollen Freizeitmöglichkeiten gelegen. Schule, Kindergarten, Bushaltestelle und Bahnstation sind Fußläufig bequem erreichbar.Beschreibung der Immobilie
Leoben / Heipelweg 8 / Top 13
Sofort verfügbare, wunderbare, neu sanierte und freundliche Familienwohnung mit sonniger Loggia am Murufer in Leoben mit guter Verkehrsanbindung!
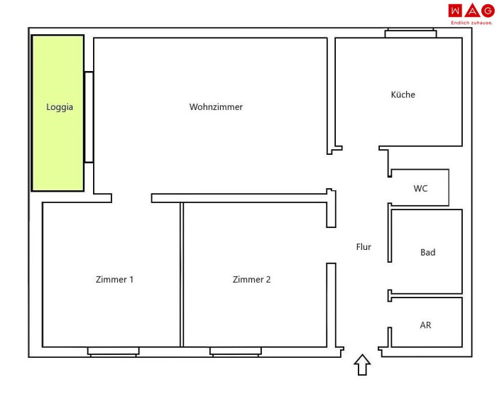
Besonders das geräumige Wohnzimmer mit Loggia lädt zum Verweilen ein und bietet der Familie viel Platz. Zudem verfügt die Wohnung über eine Küche, ein Elternschlafzimmer, ein Kinderzimmer, Bad mit Dusche, getrenntes WC, einem praktischem Abstellraum und ein Vorzimmer. Ein Kellerabteil ist der Wohnung zugeordnet und ein Kfz Abstellplatz kann bei Bedarf optional angemietet werden.
- Kaltmiete inkl. Betriebskosten, Kabel TV und USt.: € 728,04
- Monatliche Gesamtmiete inkl. USt.: € 889,68 (inkl. Heizkostenakonto und Warmwasser) zuzüglich Strom nach Verbrauch.
- Einmalige Kaution: € 2.669,04
Die Wohnung wird leer, ohne Möbel und ohne Dekorationsgegenstände vermietet. Die Bilder mit den Möbeln und Dekorationsgegenständen dienen lediglich als Einrichtungsbeispiel und sind mit KI generiert.
- Familienfreundlicher Grundriss
- Gute Verkehrsanbindung (Bus, Bahn, Radweg).
- Kindergarten und Schule im Nahbereich
- Unbefristete Vermietung
- Praktischer Abstellraum im Vorzimmer
- Sonnige Loggia
Lage: In einer sonnigen Siedlung am Murufer in Leoben gelegen und das Ortszentrum ist in wenigen Minuten erreichbar. Ein Gasthaus, Spielplätze, ein beleuchteter Radweg direkt am Murufer, Bushaltestellen und auf der anderen Murseite, im Ortsteil Lerchenfeld, in wenigen Gehminuten entfernt befinden sich: ein Lebensmittelgeschäft, Kinderarzt, eine öffentliche Hundewiese und die Bahnstation Lerchenfeld.
Sie sind an weiteren Wohnungs- bzw. Gewerbeangeboten interessiert? Ein vielfältiges Angebot finden Sie auf unserer Website.
Zur WAG-Immobiliensuche: SUCHE
Zur WAG-Wohnungsanmeldung: Wohnungsanmeldung
Gerne beraten wir Sie persönlich über unser vielfältiges Angebot, rufen Sie uns einfach an! Und das natürlich ohne Vermittlungsgebühren und provisionsfrei!
Angaben sind ohne Gewähr auf Richtigkeit und Vollständigkeit. Druckfehler vorbehalten.
Infrastruktur / Entfernungen
Gesundheit
Arzt <700m
Apotheke <1.650m
Krankenhaus <2.850m
Kinder & Schulen
Schule <1.250m
Kindergarten <700m
Universität <1.925m
Höhere Schule <2.425m
Nahversorgung
Supermarkt <800m
Bäckerei <2.125m
Einkaufszentrum <2.025m
Sonstige
Bank <2.050m
Geldautomat <2.050m
Post <700m
Polizei <2.350m
Verkehr
Bus <150m
Autobahnanschluss <750m
Bahnhof <600m
Angaben Entfernung Luftlinie / Quelle: OpenStreetMap
Eckdaten
| Gesamtmiete: | 728,04 € |
| Fläche: | 82,13 m² |
| Zimmer: | 3 |
Basisdaten zur Immobilie
| Objektnr: | 6650/28540 |
| Art: | Wohnung |
| Land: | Österreich |
| Zustand: | Gepflegt |
| Gesamtmiete: | 728,04 € |
| Kaltmiete (netto): | 462,56 € |
| Kaltmiete: | 661,85 € |
| Provision: | PROVISIONSFREI! |
| Betriebskosten: | 182,18 € |
| MwSt Gesamt: | 66,19 € |
| Wohnfläche: | 82,13 m² |
| Zimmer: | 3 |
| Bäder: | 1 |
| WC: | 1 |
| Keller: | 6,00 m² |
| Heizwärmebedarf: | B 33,40 kWh/m²a |
| fGEE: | A 0,70 |
Ausstattung
Parkett, Fernwärme, Personenaufzug, Dusche, Kabel/Satelliten-TV
Internet und TV
Information zur Internet und TV Versorgung hier
Ihre persönliche Beratung
Team WAG Hochsteiermark
WAG Wohnungsanlagen Gesellschaft m.b.H.
richard.neuffer@wag.at
+43 50 3387688
+43 664 9672157
