UNBEFRISTETE RUHIGE ALTBAUWOHNUNG IN DER ANZENGRUBERGASSE
Wohnung
,
1050
Wien
,
Anzengrubergasse
Beschreibung der Immobilie
Es können nur schriftliche Anfragen mit vollständigen Kontaktabgaben bearbeitet werden. Bitte lesen Sie als weiteren Schritt, die vom Innendienst erhaltenen Mail. Telefonisch bieten wir keine Besichtigungstermine an. Herzlichen Dank im Voraus.
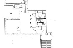
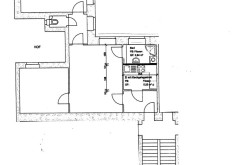
Unbefristete ruhige Altbauwohnung in der Anzengrubergasse bestehend aus:
- Vorzimmer
- Küche leer bis auf die Anschlüsse (der Mieter erhält als Ersatz für Spüle & Herd € 450.-) nach Absprache mit der dz. Mieterin könnte eine DAN-Einbauküche im Bedarfsfall übernommen werden (Preis muss direkt mit dem Mieter abgeklärt werden)
- Wohnzimmer
- Schlafzimmer
- Arbeitsraum
- Badezimmer mit Dusche und Waschmaschinenanschluss
- Diele
- Toilette
Sonstiges:
- unbefristete Hauptmiete, ab 1.6.2026 anmietbar
- 1. Stock ohne Lift
- Gasetagenheizung
- Kellerabteil
- auf Wunsch des Vermieters kann die Wohnung von max. 2 Personen mit einem Kind bewohnt werden
- für eine 2er Wohngemeinschaft bitte die Zimmeraufteilung ansehen ( 1 großes Zimmer & 1 kleines Kabinett sind vom Wohnzimmer aus begehebar)
- Kellerabteil
- Hundehaltung ist leider nicht möglich
- Fotos von der letzten Vermietung, Aktuelle folgen so rasch wie möglich
Monatliche Kosten: € 995.- inkl.Bk & Ust.
- Hauptmietzins: € 701,96
- Betriebskosten € 202,59
- Umsatzsteuer 10 %
Nebenkosten:
- Kaution: € 3000.-
Nebenkostenübersicht und weitere Informationen für den Mieter/Vermieter, Pächter/Verpächter finden Sie auf unserer Homepage: www.realbuero.com
Der Immobilienmakler erklärt, dass er – entgegen dem in der Immobilienwirtschaft üblichen Geschäftsgebrauch des Doppelmaklers – einseitig nur für den Vermieter tätig ist.
Infrastruktur / Entfernungen
Gesundheit
Arzt <250m
Apotheke <250m
Klinik <750m
Krankenhaus <500m
Kinder & Schulen
Schule <250m
Kindergarten <250m
Universität <500m
Höhere Schule <1.000m
Nahversorgung
Supermarkt <250m
Bäckerei <250m
Einkaufszentrum <750m
Sonstige
Geldautomat <250m
Bank <250m
Post <750m
Polizei <750m
Verkehr
Bus <250m
U-Bahn <750m
Straßenbahn <250m
Bahnhof <250m
Autobahnanschluss <2.750m
Angaben Entfernung Luftlinie / Quelle: OpenStreetMap
Eckdaten
| Gesamtmiete: | 995,01 € |
| Fläche: | 78,00 m² |
| Zimmer: | 3 |
Basisdaten zur Immobilie
| Objektnr: | 4433 |
| Art: | Wohnung |
| Land: | Österreich |
| Baujahr: | 1940 |
| Alter: | Altbau |
| Gesamtmiete: | 995,01 € |
| Kaltmiete (netto): | 701,96 € |
| Kaltmiete: | 904,55 € |
| Provision: | Gemäß Erstauftraggeberprinzip bezahlt der Abgeber die Provision. |
| Betriebskosten: | 202,59 € |
| MwSt Gesamt: | 90,46 € |
| Wohnfläche: | 78,00 m² |
| Zimmer: | 3 |
| Bäder: | 1 |
| WC: | 1 |
| Heizwärmebedarf: | 134,10 kWh/m²a |
| fGEE: | 2,21 |
Ausstattung
Parkett, Fliesen, Gas, Etagenheizung, Bad mit Fenster, Dusche, Kabel/Satelliten-TV
Internet und TV
Information zur Internet und TV Versorgung hier
Ihre persönliche Beratung
Sabine Steinecker
Realbüro Sabine Steinecker
info@realbuero.com
+ 43 676 922 63 81