Smarte 1 Zimmer Erdgeschoß Wohnung in bester Lage - 1050 Wien!
Wohnung
- Erdgeschoß,
1050
Wien
Lage der Immobilie
Die Ramperstorffergasse 43 liegt im 5. Wiener Gemeindebezirk, Margareten, einer urbanen und vielseitigen Gegend Wiens. Die Umgebung ist geprägt von einer Mischung aus traditionellen Altbauten und modernen Wohnhäusern. Verkehrsanbindung: Die Lage bietet eine ausgezeichnete Anbindung an den öffentlichen Nahverkehr. Die U-Bahn-Station Pilgramgasse (Linie U4) ist in wenigen Minuten zu Fuß erreichbar und ermöglicht schnelle Verbindungen ins Stadtzentrum sowie zu anderen Teilen Wiens. Zudem befinden sich mehrere Buslinien in unmittelbarer Nähe, die die Mobilität innerhalb der Stadt erleichtern. Infrastruktur: In der näheren Umgebung finden Sie eine Vielzahl von Einkaufsmöglichkeiten, darunter Supermärkte, Bäckereien und Drogerien, die den täglichen Bedarf decken. Zahlreiche Restaurants, Cafés und Bars laden zum Verweilen ein und bieten eine breite Palette kulinarischer Angebote.Beschreibung der Immobilie
Eckdaten
| Gesamtmiete: | 669,81 € |
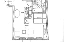
| Fläche: | 31,25 m² |
| Zimmer: | 1 |
Basisdaten zur Immobilie
| Objektnr: | 109256456_15 |
| Art: | Wohnung - Erdgeschoß |
| Land: | Österreich |
| Baujahr: | 2002 |
| Zustand: | Gepflegt |
| Gesamtmiete: | 669,81 € |
| Kaltmiete (netto): | 518,13 € |
| Kaltmiete: | 669,81 € |
| Provision: | provisionsfrei für den Mieter |
| Betriebskosten: | 90,79 € |
| Wohnfläche: | 31,25 m² |
| Zimmer: | 1 |
| Bäder: | 1 |
| Heizwärmebedarf: | B 39,60 kWh/m²a |
| fGEE: | C 1,17 |
Ausstattung
Fliesen, Parkett, Zentralheizung, Einbauküche, Badewanne
Internet und TV
Information zur Internet und TV Versorgung hier
Ihre persönliche Beratung
Lara Steinbacher
ÖRAG Immobilien Vermittlung GmbH
lara.steinbacher@oerag.at
0043153473261
004366488962125
