Lage der Immobilie
The American International School Vienna, WienerwaldBeschreibung der Immobilie
Lage und Infrastruktur
Zum Verkauf gelangt das vermutlich schönste Penthouse Wiens in begehrter Grünruhelage des 19. Bezirkes, gegenüber der American International School Vienna. Die Geschäfte des täglichen Bedarfes wie Billa und Hofer erreichen Sie innerhalb 5 Minuten mit dem Auto. Die nähere Umgebung bietet Ihnen zahlreiche Restaurants und Heurigenlokale. Für Spaziergänge und Freizeitaktivitäten eignet sich besonderes der angrenzende Schwarzenbergpark oder der nahgelegene Neustifter Weinwanderweg. Direkt hinter dem Haus beginnen die Wanderwege durch den Wienerwald. In wenigen Fahrminuten erreichen Sie die Volksschule Celtesgasse sowie den Kindergarten Schmetterling. Die Anbindung an das öffentliche Verkehrsnetz erfolgt durch die Buslinien 35A und 43 B (Haltestelle Celtesgasse), so gelangen Sie in das Stadtzentrum Wiens (Stephansplatz) in ca. 40 Minuten.
Objekt und Ausstattung
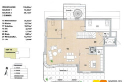
Dieses wunderbare Penthouse mit ca. 263 m² Wohnfläche ist auf zwei Wohnebenen angeordnet. Im dritten Obergeschoss des stylischen Hauses finden Sie einen Vorraum und vier Schlafzimmer sowie vier Bäder. Drei der Schlafzimmer bieten Zugang zu sonnigen Terrassen. In das Dachgeschoss gelangen Sie über eine innenliegende Treppe oder den privaten Lift, der die beiden Geschosse miteinander verbindet. Im Dachgeschoss verwöhnt Sie ein lichtdurchfluteter, über 110 m² großer Wohnsalon, der sich zu zwei, insgesamt ca. 62 m² großen Terrassen öffnet. Von diesen haben Sie Traumaussicht -entweder über Wien oder zum Wienerwald und den hauseigenen Gemeinschaftsgarten mit Pool. Auch ein Hauswirtschaftsraum und Gäste-WC sind auf dieser Ebene angeordnet. Von der kleineren der beiden Terrassen führt eine außenliegende Wendeltreppe auf den Dachgarten. Hier erwarten Sie ca. 100 m² Gartenfläche mit zusätzlich etwa 14 m² Infinity-Pool. Die Aussicht von hier ist kaum in Worte zu fassen.
Jeder Bewohner hat Zugang zum exklusiven Fitnessraum mit den modernsten Fitnessgeräten (Technogym) sowie zur wunderschönen Gartenanlage mit Swimmingpool.
21 Stellplätze mit 2,80 m breiten Parkplätzen in der hauseigenen Tiefgarage ermöglichen einfachen und bequemen Zugang zu den Kraftfahrzeugen. Und damit niemand auf der Strecke bleibt, sind E-Ladestationen hier eine Selbstverständlichkeit. Der Kaufpreis für einen Tiefgaragenstellplatz beträgt € 40.000. Hier noch eine kleine Übersicht über die wichtigsten Ausstattungsmerkmale:
- Zeitgemäße Architektur mit viel Freiraum und Licht zum Wohlfühlen
- Flachdach mit Begrünung und Pool
- Großzügig gestaltete Eingangs-und Außenbereiche
- Raumhöhen mit bis zu 2,80 m
- Terrassen und Balkone mit Glasbrüstungen und Alu-Holzverkleidung
- Energiesparende Raumheizung, Klimatisierung und Warmwasseraufbereitung
- Landhausdielen und edles, großformatiges Feinsteinzeug,
sowie Armaturen von Dornbracht und Hansgrohe - Hochwertige Holz-Alu Fenster mit 3-fach Verglasung
- Raffstore Sonnenschutz für Fenster und Fenstertüren
- Jedes Schlafzimmer mit luxuriös ausgestattetem Badezimmer
- Smart Living System für Temperaturregelung, Sonnenschutz,
Gegensprechanlage und Alarm - Intelligente Liftanlage mit RFID-Chip für Aufzugsruf und Steuerung.
Resümee
Eine Luxus-Penthouse der Sonderklasse. Wunderbare Freiflächen. Traumblick inklusive. Fitnessraum im Haus, Pool im gepflegten Gemeinschaftsgarten.
Noch nichts gefunden? Wir informieren Sie über geeignete Immobilienangebote noch vor allen anderen.
Legen Sie jetzt Ihren individuellen Suchagenten unter folgendem Link an. Wir schicken Ihnen passende Immobilien exklusiv vorab zu.
Suchagent anlegen - https://funk.service.immo/registrieren/de
Der Vermittler ist als Doppelmakler tätig.
Informationen und Besichtigungen
Herr Prok. Walter Mitterstöger, MA steht Ihnen gerne telefonisch unter +43 1 533 46 44-1 oder per E-Mail unter walter.mitterstoeger@funk.at zur Verfügung.
Immobilien Funk.success in real estate
Infrastruktur / Entfernungen
Gesundheit
Arzt <2.000m
Apotheke <1.500m
Klinik <3.500m
Krankenhaus <3.500m
Kinder & Schulen
Schule <500m
Kindergarten <1.500m
Universität <4.000m
Höhere Schule <4.000m
Nahversorgung
Supermarkt <1.500m
Bäckerei <2.000m
Einkaufszentrum <4.500m
Sonstige
Geldautomat <3.000m
Bank <3.000m
Post <1.500m
Polizei <3.500m
Verkehr
Bus <500m
U-Bahn <4.500m
Straßenbahn <2.500m
Bahnhof <4.000m
Autobahnanschluss <6.000m
Angaben Entfernung Luftlinie / Quelle: OpenStreetMap
Eckdaten
| Kaufpreis: | 4.489.380,00 € |
| Fläche: | 263,50 m² |
Basisdaten zur Immobilie
| Objektnr: | 3555 |
| Art: | Wohnung - Penthouse |
| Land: | Österreich |
| Zustand: | Erstbezug |
| Alter: | Neubau |
| Kaufpreis: | 4.489.380,00 € |
| Provision: | 3% des Kaufpreises zzgl. 20% USt. |
| Wohnfläche: | 263,50 m² |
| Nutzfläche: | 263,50 m² |
| Garten: | 107,00 m² |
| Heizwärmebedarf: | B 27,60 kWh/m²a |
| fGEE: | A 0,75 |
Ausstattung
Fußbodenheizung, Personenaufzug
Internet und TV
Information zur Internet und TV Versorgung hier
Ihre persönliche Beratung
Prok. Walter Mitterstöger
Dr. Funk Immobilien GmbH & Co KG
walter.mitterstoeger@funk.at
+43 1 533 46 44-1
+43 664 88 73 99 35
F +43 1 533 46 44-4
