Immobilie merken

Helle Schulungsräume bei U1

Büro / Praxis , 1220 Wien , Kagraner Platz 1 - 4

Lage der Immobilie

Die perfekte Lage bietet alles was den beruflichen Alltag erleichtert in Gehweite. So ist die U1 Station Kagraner Platz nur rund 1 Gehminute entfernt. Hier befinden sich Geschäfte des täglichen Bedarfs wie Supermärkte, Drogerien, Konditorei, Restaurants, Apotheken, Ärzte usw. Sämtliche Bildungseinrichtungen wie Volkschule, Hauptschule, Volkshochschule und Veterinärmedizinische Universität sind ebenfalls bequem zu Fuß erreichbar. Durch die hervorragenden Öffentlichen Anbindung erreichen Sie die Innenstadt mit der U1 in rund 15 Minuten. Darüber hinaus stehen diverse Buslinien (23A, 24A, 25A und 31A) und die Straßenbahnlinie 26 zur Verfügung. Zusätzlich erreichen Sie die Südosttangente A23 in ca. 1,5 km, wodurch eine hervorragende Autobahnanbindung gegeben ist. Eine Parkgarage bietet für all jene, die mit dem Auto kommen, die Möglichkeit diesen Standort bequem zu erreichen. Für die Pause sind mehrere kleine Parks in der Umgebung.

Beschreibung der Immobilie

Wir freuen uns, Ihnen helle Schulungs-/Seminarräume direkt bei der U1 Station Kagraner Platz anbieten zu können.

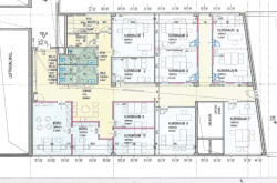
Die Immobilie besteht aus insgesamt 10 unterschiedlich großen Räumen mit einer Fläche von rund 10 bis 30 Quadratmetern. Jeder Raum ist vollständig klimatisiert und verfügt über große Fenster, die für eine hervorragende natürliche Beleuchtung sorgen und somit ein angenehmes Lern- und Arbeitsumfeld schaffen.

Die Räume sind mit modernen Möbeln und Glaswänden ausgestattet, die eine effektive Nutzung des Platzes ermöglichen. Die Raumgrößen sind so gestaltet, dass sowohl Einzel- als auch Gruppentrainings möglich sind.

Ein weiterer Vorteil der Schulungsräume sind die die Mitbenutzung von Küche, Toilettenanlagen (Damen und Herren getrennt), WLAN, Kopierer/Drucker und Garderobe. Diese Räumlichkeiten sind auf dem neuesten Stand der Technik und bieten alle notwendigen Annehmlichkeiten für einen komfortablen Aufenthalt. Die Räumlichkeiten sind barrierefrei und mit einem Fahrstuhl ausgestattet, um einen reibungslosen Zugang für Personen mit eingeschränkter Mobilität zu gewährleisten. Darüber hinaus befindet sich im Haus eine Tiefgarage.

Bitte beachten Sie, dass die Nutzung der Räumlichkeiten aufgrund bestimmter Einschränkungen begrenzt ist. Die Räume können von Montag bis Freitag in der Zeit von 07:00 Uhr bis 13:00 Uhr genutzt werden. An Samstagen und Sonntagen stehen die Räumlichkeiten ganztägig zur Verfügung. In den Monaten Juli und August sind die Räumlichkeiten nur am Nachmittag zugänglich.

Die Immobilie eignet sich ideal für Bildungs- und Schulungseinrichtungen sowie für Unternehmen, die Räumlichkeiten für Schulungen, Seminare oder Meetings benötigen. Das flexible Raumangebot bietet verschiedene Optionen für unterschiedliche Anforderungen.

Kurz gesagt, diese Immobilie bietet alles, was Sie für ein erfolgreiches Training oder eine effektive Geschäftsveranstaltung benötigen.

Die Schulungsräume 3 + 4 sind nur durch eine Faltwand getrennt und können verbunden werden, womit ein Gesamtausmaß von  30,17 m² entsteht. 

Insgesamt stehen 2 große Tische, zwölf Stühle, ein kleiner separater Tisch sowie zwei Pinnwände zur Verfügung.

Noch nichts gefunden? Wir informieren Sie unverbindlich über geeignete Immobilienangebote noch vor allen anderen.
Legen Sie jetzt Ihren individuellen Suchagenten unter folgendem Link an. Wir schicken Ihnen passende Immobilien exklusiv vorab zu.
Suchagent anlegen - https://immo-kubicek.service.immo/registrieren/de

Der Vermittler ist als Doppelmakler tätig.

Ihre Immobilie – unsere Kunden: Perfekte Vermittlung seit über 90 Jahren.

Wir bringen seit mehr als 90 Jahren erfolgreich Immobilienbesitzer und Käufer/Mieter zusammen. Ob Haus, Grundstück oder Wohnung – für unsere 1.300 vorgemerkten Kunden suchen wir derzeit Immobilien in Wien und Niederösterreich.

Als stolzer Träger des IMMY-Qualitätspreises stehen wir für höchste Servicequalität und freuen uns darauf, Sie persönlich zu beraten.

Kontaktieren Sie uns noch heute!

immo-kubicek.at+43 1 2031168-0

Infrastruktur / Entfernungen

Gesundheit
Arzt <25m
Apotheke <25m
Klinik <2.375m
Krankenhaus <3.350m

Kinder & Schulen
Schule <225m
Kindergarten <225m
Universität <1.100m
Höhere Schule <125m

Nahversorgung
Supermarkt <25m
Bäckerei <25m
Einkaufszentrum <975m

Sonstige
Geldautomat <125m
Bank <125m
Post <125m
Polizei <925m

Verkehr
Bus <50m
U-Bahn <50m
Straßenbahn <75m
Bahnhof <75m
Autobahnanschluss <1.575m

Angaben Entfernung Luftlinie / Quelle: OpenStreetMap

Verfügbare Flächen

Stiege/Bauteil


Stockwerk
Top
Art
Fläche
Terrasse
Nettomiete/m²
BK/m²

3. Etage
-
Büro / Praxis
19,03 m2
-
-

3. Etage
-
Büro / Praxis
30,17 m2
-
-

3. Etage
-
Büro / Praxis
11,44 m2
-
-

verfügbare flächen

Stiege/Bauteil

Stockwerk
Top
Art
Fläche
Teilbar ab
Terrasse
Nettomiete/m2 von-bis
BK/m2
3. Etage
-
Büro / Praxis
19,03 m2
-
-
-
-
Stockwerk
Top
Art
Fläche
Teilbar ab
Terrasse
Nettomiete/m2 von-bis
BK/m2
3. Etage
-
Büro / Praxis
30,17 m2
-
-
-
-
Stockwerk
Top
Art
Fläche
Teilbar ab
Terrasse
Nettomiete/m2 von-bis
BK/m2
3. Etage
-
Büro / Praxis
11,44 m2
-
-
-
-

Eckdaten

Kaltmiete (netto): 754,25 €
Fläche: 30,17 m²
Zimmer: 1

Basisdaten zur Immobilie

Objektnr: 2003/10897
Art: Büro / Praxis
Land: Österreich
Baujahr: 2013
Zustand: Neuwertig
Möbliert: Teil
Alter: Neubau
Kaltmiete (netto): 754,25 €
Kaltmiete: 754,25 €
Provision: 2.715,30 € inkl. 20% USt.
MwSt Gesamt: 150,85 €
Nutzfläche: 30,17 m²
Zimmer: 1

Internet und TV

Information zur Internet und TV Versorgung hier




Immobilie anfragen




Ihre persönliche Beratung

kubicek immobilien | Alois Kubicek Gesellschaft m. b. H.

Thomas Kubicek

Alois Kubicek Gesellschaft m. b. H.

wien@immo-kubicek.at

+43 1 2031168-0

F +43 1 2031168-40