*** Provisionsfreie Anlegerwohnungen für Käufer ***
Wohnung
- Erdgeschoß,
2301
Groß-Enzersdorf
Beschreibung der Immobilie
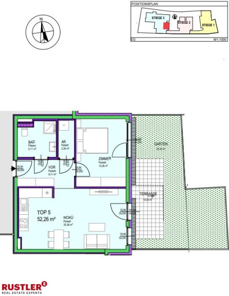
Eckdaten
Objektnr: | 141/76793 |
Art: | Wohnung - Erdgeschoß |
Land: | Österreich |
Baujahr: | 2026 |
Alter: | Neubau |
Kaufpreis: | 300.000,00 € |
Kaufpreis / m²: | 5.739,43 € |
Provision: | provisionsfrei |
Wohnfläche: | 52,27 m² |
Zimmer: | 2 |
Bäder: | 1 |
WC: | 1 |
Terrassen: | 1 |
Garten: | 27,53 m² |
Heizwärmebedarf: | C 52,60 kWh/m²a |
fGEE: | A 0,82 |
Internet und TV
Information zur Internet und TV Versorgung hier
Ihre persönliche Beratung

Fabian Doll
Rustler Immobilientreuhand
E Doll@rustler.eu
T +43 676 834 34703
H +43 676 834 34 703