Beschreibung der Immobilie
Bauträgergrundstück für Reihenhausprojekt!
Das gesamte Grundstück ist 1.060 m² groß. Es handelt sich um ein komplett ebenes, langgezogenes Eckgrundstück in unmittelbarer Zentrumsnähe.
- Flächenwidmung: BK für Bauland Kerngebiet 12 WE möglich
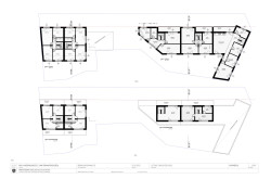
- Bebauungsstudie: lt. NÖ Bauordnung für 5 Wohneinheiten (inkl.2 Garagen, 8 Stellplätze, Eigengärten, Balkone, Loggien usw.) liegt auf!
- Gewichtete Nutzfläche: 728 m²
- Bebaute Fläche: 497 m²
Traumhafte Spazierwege, ausgezeichnete Infrastruktur und Freizeitmöglichkeiten sowie Spielplätze sind in der Nähe vorhanden. Alle infrastrukturellen Einrichtungen und Geschäfte des täglichen Bedarfes wie Bäcker, Banken, Frisör, Einkaufsmöglichkeiten, Kindergärten, Schulen etc. sind in nur wenigen Minuten fußläufig erreichbar. Der Bahnhof liegt in der Nähe, fußläufig, Züge nach Wien fahren im 20 Minuten Takt. Fahrzeit Wien Hauptbahnhof 21 min. Die Anschlüsse wie Kanal, Wasser und Strom liegen an der Grundstücksgrenze.
Infrastruktur / Entfernungen
Gesundheit
Arzt <4.000m
Apotheke <500m
Kinder & Schulen
Schule <500m
Kindergarten <1.000m
Nahversorgung
Supermarkt <500m
Bäckerei <1.000m
Einkaufszentrum <6.500m
Sonstige
Bank <500m
Geldautomat <3.000m
Post <500m
Polizei <500m
Verkehr
Bus <500m
Bahnhof <1.000m
Autobahnanschluss <9.000m
Flughafen <10.000m
Angaben Entfernung Luftlinie / Quelle: OpenStreetMap
Eckdaten
| Kaufpreis: | 549.000,00 € |
| Fläche: | 1.060,00 m² |
Basisdaten zur Immobilie
| Objektnr: | 965/934 |
| Art: | Grundstück |
| Land: | Österreich |
| Kaufpreis: | 549.000,00 € |
| Kaufpreis / m²: | 517,92 € |
| Provision: | 3% des Kaufpreises zzgl. 20% USt. |
| Grundstücksfl.: | 1.060,00 m² |
Internet und TV
Information zur Internet und TV Versorgung hier
Ihre persönliche Beratung
Walter Adelmann
s REAL Kommerz
walter.adelmann@sreal.at
+43 (0)5 0100 - 26253
+43 664 8387835
