ATTRAKTIVE GESCHÄFTSFLÄCHEN - MIT FLEXIBLEN GESTALTUNGSMÖGLICHKEITEN !
Einzelhandel
- Ladenlokal,
1210
Wien
Beschreibung der Immobilie
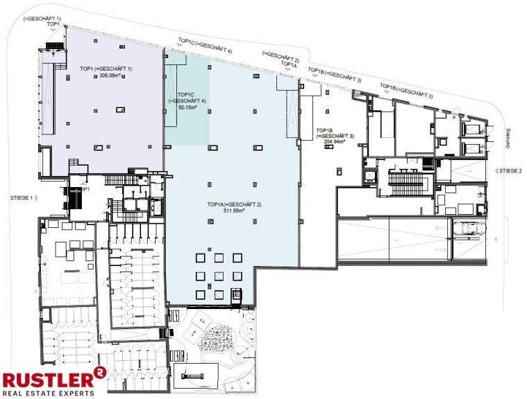
Eckdaten
| Gesamtmiete: | 13.988,32 € |
| Fläche: | 898,18 m² |
Basisdaten zur Immobilie
| Objektnr: | 141/78132 |
| Art: | Einzelhandel - Ladenlokal |
| Land: | Österreich |
| Gesamtmiete: | 13.988,32 € |
| Kaltmiete (netto): | 10.225,38 € |
| Kaltmiete: | 11.656,93 € |
| Miete / m²: | 11,38 € |
| Provision: | 3BMM |
| Nutzfläche: | 898,18 m² |
| Heizwärmebedarf: | A 21,20 kWh/m²a |
| fGEE: | B 0,89 |
Internet und TV
Information zur Internet und TV Versorgung hier
Ihre persönliche Beratung
Dino Mujic
Rustler Immobilientreuhand
mujic@rustler.eu
01 8949749686
+43 676 83434686
F +43 1 89497499 - 686
