Großzügige Ordination/Praxis im Edelrohbau – Wohnquartier Wildgarten – PROVISIONSFREI für Käufer:innen

Büro / Praxis - Praxis, 1120 Wien , Lore-Kutschera-Weg

Beschreibung der Immobilie

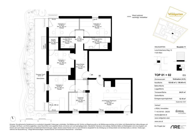
Die zum Verkauf stehende Büroeinheit befindet sich im Erdgeschoß eines 8-stöckigen Wohnhauses. 

Das Büro verfügt über ca. 124m² Nutzfläche, aufgeteilt auf 5 Räume, eine Teeküche, ein Duschbad mit WC und ein separates Kunden-WC. Zusätzlich hat das Büro eine westseitig ausgerichtete Terrasse und ein Kellerabteil im Untergeschoß des Hauses. Die Erschließung erfolgt entweder über den Haupteingang des Wohnhaues oder auch über einen separaten

Eingang von außen.

Die Übergabe des Büros erfolgt im Edelrohbau. Einzig das Badezimmer und WC werden verfliest und mit Sanitärausstattung ausgestattet sein.

Auf Wunsch senden wir Ihnen weitere kaufrelevante Unterlagen zu. Senden Sie uns dazu eine Anfrage und vereinbaren Sie einen unverbindlichen Besichtigungstermin.

Gerne helfen wir auch bei der Finanzierung weiter.

Der angegebene Kaufpreis versteht sich als Nettopreis für Anleger/Investoren. Es werden noch 20% Umsatzsteuer hinzugerechnet.

Ein Projekt der ARE

Im Wildgarten, 12. Bezirk, wurden die letzten Eigentumswohnungen soeben fertiggestellt und sind bereit für ihre neuen Bewohner:innen. Der Wildgarten ist ein vielseitiges Wohnquartier, das sowohl urbane und ländliche Qualitäten verbindet und für ein gemeinschaftliches Miteinander steht.

Das autofreie Quartier verfügt über eine sehr vielseitige Bebauung sowie zahlreichen Grünflächen, Ruhe- und Begegnungszonen, Gemeinschaftsgärten mit Hochbeeten und Naschhecken und einem offenen Freiraumkonzept. Das Nachbarschaftszentrum bietet zusätzliche Indoor-Räumlichkeiten wie Büros, Veranstaltungsräume und einer Werkstatt. Zusätzlich gibt es im Wildgarten einen Co-Working Space, wo flexibel oder auch dauerhaft Arbeitsplätze gemietet werden können.

Das Infrastrukturangebot bietet derzeit einen Billa direkt im Wohnqaurtier sowie eine Pizzeria. Für alle jene, die ein Auto besitzen, können Tiefgaragenplätze in der Sammelgarage gemietet werden. Außenliegende Parkplätze stehen entlang des Quartiers zur Verfügung. Die öffentliche Anbindung ist durch die Buslinie 63A gewährleistet (Richtung U4 Meidling Hauptstraße und U6 Niederhofstraße). Ab vorauss. 2032 wird es eine neue S-Bahn Station in der Benyastraße geben, mir dir man dann in wenigen Minuten zum Bahnhof Meidling gelangt.
 

Highlights Bauplatz 11+20:

  • 9 Häuser in verschiedenen Größen
  • Balkon/ Loggia/ Terrasse/ Eigengarten im offenen Freiraumkonzept
  • autofreies Gelände
  • Tiefgaragenplätze zur Miete
  • Begegnungszonen, Gemeinschaftsgärten und Naschgärten
  • Kindergarten und Spielplätze im Grünen
  • Billa direkt am Gelände
  • Fußbodenheizung, Fernwärme
  • provisionsfrei für Käufer:innen
  • www.wildgarten.wien/wohnungsfinder

Provision Interessent: PROVISIONSFREI

Infrastruktur / Entfernungen

Gesundheit
Arzt <1.250m
Apotheke <1.000m
Klinik <1.500m
Krankenhaus <1.000m

Kinder & Schulen
Schule <750m
Kindergarten <250m
Universität <3.750m
Höhere Schule <3.750m

Nahversorgung
Supermarkt <500m
Bäckerei <500m
Einkaufszentrum <1.750m

Sonstige
Geldautomat <1.250m
Bank <1.250m
Post <1.500m
Polizei <1.500m

Verkehr
Bus <250m
U-Bahn <1.750m
Straßenbahn <1.500m
Bahnhof <1.500m
Autobahnanschluss <1.750m

Angaben Entfernung Luftlinie / Quelle: OpenStreetMap

Eckdaten

Objektnr: 965/919
Art: Büro / Praxis - Praxis
Land: Österreich
Baujahr: 2022
Zustand: Erstbezug
Alter: Neubau
Kaufpreis: 472.100,00
Kaufpreis / m²: auf Anfrage
Provision: PROVISIONSFREI
Nutzfläche: 124,12 m²
Zimmer: 5
Bäder: 1
WC: 2
Terrassen: 1
Keller: 8,50 m²
Heizwärmebedarf:  B  26,73 kWh/m²a
fGEE:  A+  0,67
Immobilie merken Exposé

Ausstattung

Fliesen, Parkett, Fußbodenheizung, Personenaufzug, Dusche, Teeküche


Internet und TV

Information zur Internet und TV Versorgung hier


Immobilie anfragen


Ihre persönliche Beratung

Region Wien & NÖ Ost

Paul Tibaj

s REAL Kommerz

E paul.tibaj@sreal.at

T +43 (0)5 0100 - 26260

H +43 664 88998632