Maisonettewohnung in Frohnleiten, Neubau, Provisionsfrei für Käufer - Top 19
Wohnung
- Dachgeschoß,
8130
Frohnleiten
Beschreibung der Immobilie
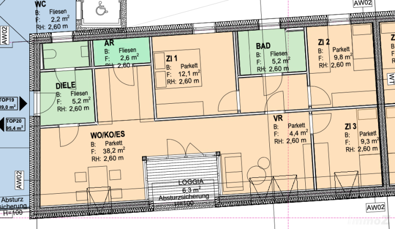
Die Top 19 teilt sich wie folgt auf: Diele, Bad, WC, AR, Wohn/Kochen/Essen mit ca. 38,2 m2 und Zugang zur Loggia, sowie 3 extra Zimmer.
Kaufpreis Wohnung 321.000.- Nettokaufpreis für Anleger
Kaufpreis Tiefgaragenstellplatz ab 20.000 .- Nettokaufpreis für Anleger
Fertigstellung geplant Mai 2026
KEINE PROVISION FÜR DEN KÄUFER
Gerne übermitteln wir Ihnen die Unterlagen zu dem Projekt auf schriftliche Anfrage.
Eckdaten
| Kaufpreis: | 321.000,00 € |
| Fläche: | 93,45 m² |
| Zimmer: | 4 |
Basisdaten zur Immobilie
| Objektnr: | O2100155220 |
| Art: | Wohnung - Dachgeschoß |
| Land: | Österreich |
| Zustand: | Erstbezug |
| Alter: | Neubau |
| Kaufpreis: | 321.000,00 € |
| Provision: | provisionsfrei |
| Wohnfläche: | 93,45 m² |
| Gesamtfläche: | 93,45 m² |
| Zimmer: | 4 |
| Bäder: | 1 |
| WC: | 1 |
| Stellplätze: | 1 |
| Heizwärmebedarf: | B 45,00 kWh/m²a |
Ausstattung
Parkett, Wohnküche / offene Küche, Personenaufzug, Kabel/Satelliten-TV, Tiefgarage
Internet und TV
Information zur Internet und TV Versorgung hier
Ihre persönliche Beratung
BSc Patrick Großschädl
Papst Immobilien GmbH
info@papst-immo.at
0650 8286331
