Vindobona Living - Haus 2, am Bruckhaufen nahe U1, U6
Haus
- Einfamilienhaus,
1210
Wien
Lage der Immobilie
Das Projekt, bestehend aus zwei Ziegelmassiv Einzelhäusern, wird in der Kugelfanggasse 36, im 21ten Wiener Gemeindebezirk Floridsdorf von der Fa. 2LIVING ROHA Immobilien GmbH entwickelt und gebaut. Es handelt sich um einen Baurechtsgrund des Stifts Klosterneuburg mit 100 Jahren Laufzeit mit der Option zur Verlängerung. Die Liegenschaft befindet sich im Bruckhaufen, einem der schönsten Viertel in Floridsdorf, welches als Erholungs- und Wassersportgebiet sehr beliebt ist. Unmittelbare Nähe der Alten Donau, Donauinsel, Strandbad und Donauparks ermöglicht eine vielseitige Freizeitgestaltung. Jedoch, die idyllische Wohngegend schließt nicht die Vorteile einer Großstadt aus. Mittels naheliegenden U-Bahnlinien U1 und U6 gelangen Sie in wenigen Minuten in Stadtzentrum!Beschreibung der Immobilie
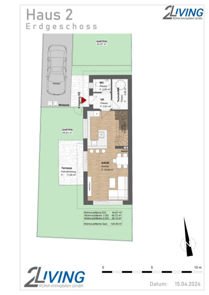
2 Living - mehr als nur wohnen, nimm dir Zeit zu leben! 124,49m² auf 3 Geschoßen plus Garten - schlüsselfertig
Das Projekt Vindobona Living hebt sich durch folgende Ausstattungsmerkmale besonders vom marktüblichen Standard ab:
- Erstbezug
- Garten
- Provisionsfrei
- Energieeffiziente Gebäudehülle in Massivbauweise
- Fußbodenheizung/ Boden Kühlung über Luft-Wasser Wärmepumpe
- Inkludierte Beschattung mit Rollläden elektrisch (Raffstore bei Terrassentüre EG)
- Außergewöhnliche Architektur mit intelligentem Grundriss
- zusätzliche Kühlung durch Klimaanlage mit Splitgeräten ab 1. OG als Sonderwunsch möglich
- Echtholz Parkett
- Feinsteinzeugfliesen in Großformat 60x60 (Boden)
- Platz für einen KFZ Abstellplatz
- Grünruhelage
- Terrasse mit Außenwasseranschluss
- Feinsteinzeugboden Großformat auf Terrasse
- Barrierefreie Dusche sowie Badewanne
- Abstellraum
- Kunststoff- Alu Fenster 3 Fach verglast (Schall- und Wärmeschutzwerte lt. Bauphysik)
- Gegensprechanlage plus Elektrischer Türöffner
- nachhaltige und ökologische Bauweise mit 38er Ziegel - gedämmt
- Dachterrasse
Eine individuelle Beratung ist selbstverständlich. Sonderwünsche sind gegen Aufpreis möglich.
Kaufpreis schlüsselfertig: € 749.900,00 ,--
Kaufpreis belagsfertig € 735.900,--
Bauzins mtl. € 440,--
Der Vermittler ist als Doppelmakler tätig.
Infrastruktur / Entfernungen
Gesundheit
Arzt <1.000m
Apotheke <1.500m
Klinik <1.500m
Krankenhaus <2.000m
Kinder & Schulen
Schule <500m
Kindergarten <1.000m
Universität <1.000m
Höhere Schule <1.500m
Nahversorgung
Supermarkt <1.000m
Bäckerei <1.500m
Einkaufszentrum <1.500m
Sonstige
Geldautomat <1.500m
Bank <1.500m
Post <1.000m
Polizei <2.000m
Verkehr
Bus <500m
U-Bahn <1.000m
Straßenbahn <1.000m
Bahnhof <1.000m
Autobahnanschluss <500m
Angaben Entfernung Luftlinie / Quelle: OpenStreetMap
Eckdaten
| Kaufpreis: | 749.900,00 € |
| Fläche: | 124,49 m² |
| Zimmer: | 4 |
Basisdaten zur Immobilie
| Objektnr: | 120 |
| Art: | Haus - Einfamilienhaus |
| Land: | Österreich |
| Baujahr: | 2025 |
| Zustand: | Erstbezug |
| Alter: | Neubau |
| Kaufpreis: | 749.900,00 € |
| Provision: | Provision bezahlt der Abgeber. |
| Wohnfläche: | 124,49 m² |
| Zimmer: | 4 |
| Terrassen: | 2 |
| Garten: | 42,00 m² |
| Heizwärmebedarf: | C 54,50 kWh/m²a |
| fGEE: | A 0,75 |
Ausstattung
Fliesen, Parkett, Fußbodenheizung, Südbalkon, Bad mit Fenster, Badewanne, Dusche
Internet und TV
Information zur Internet und TV Versorgung hier
Ihre persönliche Beratung
Nadine Graf-Holzer
2 Living Roha Immobilien GmbH
h.holzer@2living.at
