+++ Geräumiges Büro mit vielen Einheiten in zentraler Lage +++
Büro / Praxis
,
8020
Graz
,
Annenstraße
Lage der Immobilie
Straßenbahn und Bus: vor der Haustüre Supermärkte: im Erdgeschoss des Nebenhauses Apotheke: rd. 30m entfernt Hauptplatz: rd. 650m entfernt Hauptbahnhof: rd. 850m entferntBeschreibung der Immobilie
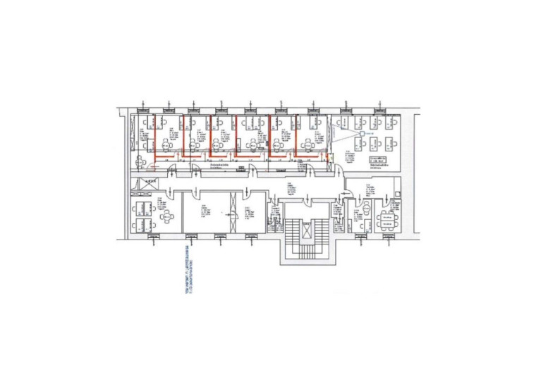
Mitten im Zentrum von Graz befindet sich das sehr geräumige Büro mit rd. 380 m² Nutzfläche im 3. Obergeschoß. Mit einem Lift kann das lichtdurchflutete Büro erreicht werden, welches sich auf 10 Büros, einen Schulungsraum, 2 große Abstell/Lagerräume, einer Küche mit Sitzgelegenheit, und zwei getrennten WC's (Damen und Herren) aufteilt. Das Büro ist barrierefrei erreichbar.
Sollte die Gesamtfläche von rd. 380m² nicht ausreichen, besteht die Möglichkeit, auch das gesamte 4. Obergeschoß zusätzlich zu mieten. Im 4. OG steht eine Fläche von rd. 390 m² (9 Büroeinheiten mit eigener Teeküche, Sanitärräumen sowie Aufenthaltsräumen) zur Verfügung. Diese teilen sich auf einen großen Saal sowie weitere sechs Büroräume, einen großen Aufenthaltsraum inklusive Küchenzeile sowie getrennten Sanitäreinheiten für Damen und Herren.
Gegenüber des Hauses befindet sich eine APCOA-Tiefgarage, in welcher bei Verfügbarkeit ein Dauerparkplatz gemietet werden kann.
Die Büroflächen werden befristet vermietet - die Dauer der Befristung wird nach Absprache definiert werden.
In der Gesamtmiete von 5.320,-- € sind bereits die Betriebskosten, Heizkosten, sowie Stromkosten!!! inbegriffen!
Wir konnten Ihr Interesse wecken? Gerne vereinbaren wir einen Termin um mit Ihnen die Büro/Geschäftsfläche zu besichtigen und Ihnen weitere Details zu erzählen.
Wir freuen uns auf Ihre Kontaktaufnahme!
Dieangegebenen Daten stammen vom Eigentümer und/oder Dritten und wurden mit Sorgfalt erhoben. Für die Richtigkeit und Vollständigkeit kann jedoch keine Haftung übernommen werden. Zahlenangaben können gegebenenfalls gerundet oder geschätzt sein. Das Angebot ist freibleibend und unverbindlich. Irrtümer und Änderungen sind vorbehalten. Nachdruck/Vervielfältigung nur mit Genehmigung der Immo-Circle GesbR.
Der Vermittler ist als Doppelmakler tätig.
Infrastruktur / Entfernungen
Gesundheit
Arzt <250m
Apotheke <500m
Klinik <750m
Krankenhaus <250m
Kinder & Schulen
Schule <250m
Kindergarten <500m
Universität <1.250m
Höhere Schule <1.250m
Nahversorgung
Supermarkt <250m
Bäckerei <250m
Einkaufszentrum <750m
Sonstige
Geldautomat <250m
Bank <250m
Post <1.000m
Polizei <250m
Verkehr
Bus <250m
Straßenbahn <250m
Autobahnanschluss <4.750m
Bahnhof <750m
Flughafen <9.500m
Angaben Entfernung Luftlinie / Quelle: OpenStreetMap
Eckdaten
| Kaltmiete (netto): | 3.477,00 € |
| Fläche: | 380,00 m² |
| Zimmer: | 11 |
Basisdaten zur Immobilie
| Objektnr: | 2583 |
| Art: | Büro / Praxis |
| Land: | Österreich |
| Baujahr: | 1961 |
| Zustand: | Modernisiert |
| Alter: | Altbau |
| Kaltmiete (netto): | 3.477,00 € |
| Kaltmiete: | 5.320,00 € |
| Miete / m²: | 9,15 € |
| Provision: | 3 Bruttomonatsmieten zzgl. 20% USt. |
| Betriebskosten: | 1.843,00 € |
| MwSt Gesamt: | 1.064,00 € |
| Nutzfläche: | 380,00 m² |
| Zimmer: | 11 |
| WC: | 3 |
| Heizwärmebedarf: | C 77,10 kWh/m²a |
| fGEE: | C 1,49 |
Ausstattung
Einbauküche, Personenaufzug
Internet und TV
Information zur Internet und TV Versorgung hier
Ihre persönliche Beratung
GF Heidi Stelzer
Immo Circle GesBR
h.stelzer@immo-circle.at
+43 664 73042103
+43 664 73042103
