Innovatives Geschäftslokal mit großen Schaufenstern in Frequenzlage
Einzelhandel
- Ladenlokal,
9020
Klagenfurt am Wörthersee
Lage der Immobilie
Altstadt, Frequenzlage, öffentl. Verkehrsmittel, sonnig, straßenseitig, ZentrumBeschreibung der Immobilie
Eckdaten
| Gesamtmiete: | 1.235,30 € |
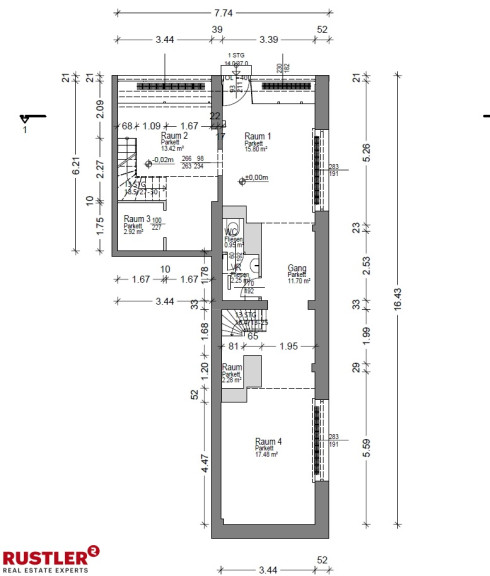
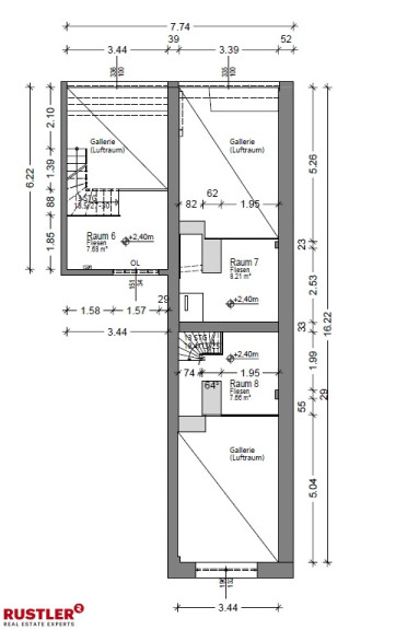
| Fläche: | 90,31 m² |
Basisdaten zur Immobilie
| Objektnr: | 141/78653 |
| Art: | Einzelhandel - Ladenlokal |
| Land: | Österreich |
| Gesamtmiete: | 1.235,30 € |
| Kaltmiete (netto): | 722,48 € |
| Kaltmiete: | 1.029,42 € |
| Miete / m²: | 8,00 € |
| Provision: | 3 BMM |
| Nutzfläche: | 90,31 m² |
| Verkaufsfläche: | 90,00 m² |
| Heizwärmebedarf: | B 36,00 kWh/m²a |
| fGEE: | B 1,00 |
Internet und TV
Information zur Internet und TV Versorgung hier
Ihre persönliche Beratung
Thomas Mikula
Rustler Immobilientreuhand
mikula@rustler-ktn.eu
+43 463 50 20 72337
+43 676 834 34 337
