Immobilie merken

Geschäftsfläche in der Villacher Innenstadt

Einzelhandel - Ladenlokal, 9500 Villach

Lage der Immobilie

Altstadt, Frequenzlage, Fußgängerzone, öffentl. Verkehrsmittel, Seitenlage, Zentrum

Beschreibung der Immobilie

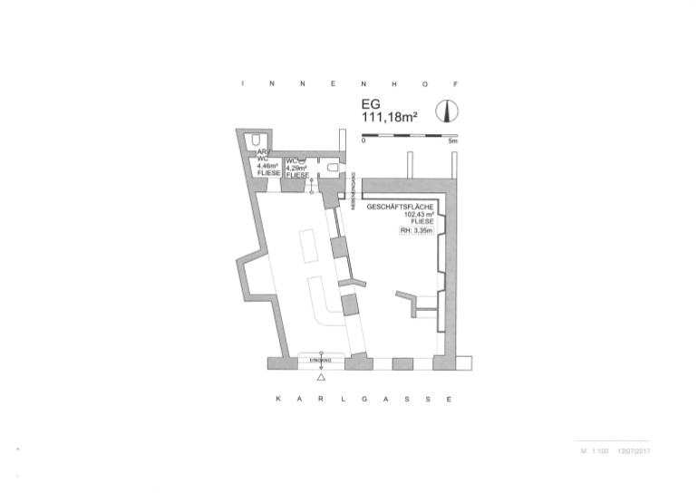
Geschäftsfläche in der Villacher Innenstadt Das Lokal ist bestens für einen hochwertigen Handelsbetrieb geeignet. Lage: Das Geschäftslokal liegt im Zentrum von Villach in einer kleinen Seitengasse unmittelbarer Nähe des Hauptplatzes. Aufteilung: Geschäftsfläche im Erdgeschoss mit Schaufenstern zur Karlgasse, 2 WC's, sowie einem kleinen Abstellraum. Die Raumhöhe der Geschäftsfläche beträgt 3,35 m. Heizung: Fernwärme-Zentralheizung

Eckdaten

Gesamtmiete: 1.010,75 €
Fläche: 111,18 m²

Basisdaten zur Immobilie

Objektnr: 904/03293
Art: Einzelhandel - Ladenlokal
Land: Österreich
Baujahr: 1800
Gesamtmiete: 1.010,75
Kaltmiete (netto): 550,00 €
Kaltmiete: 733,84 €
Provision: 2 BMM + 20% Ust
Nutzfläche: 111,18 m²
Heizwärmebedarf:  F  204,00 kWh/m²a
fGEE:  C  1,47

Ausstattung

Fernwärme, Zentralheizung



Internet und TV

Information zur Internet und TV Versorgung hier




Immobilie anfragen




Ihre persönliche Beratung

Barta Immobilientreuhand GmbH

Gerhard BARTA

Barta Immobilientreuhand GmbH

gerhard.barta@immobilien-barta.at

+ 43 42 42 - 242 64

+ 43 664 - 53 66 025

F + 43 42 42 - 242 24 - 20