PROVISIONSFREI - Park Residences Lake Garda - Apartment mit Terrasse
Wohnung
,
25087
Salò
Lage der Immobilie
Am GardaseeBeschreibung der Immobilie
ALLGEMEIN
An einem der begehrtesten Seeufer Italiens, direkt am Gardasee, entsteht dieses Falkensteiner Premium Living-Projekt. Die luxuriös ausgestatteten, servicierten Residenzen befinden sich innerhalb eines Falkensteiner
Resorts inklusive Premium-Hotel. Sie genießen die Annehmlichkeiten eines international ausgezeichneten 5-Sterne-Resorts und werden Eigentümer einer von Matteo Thun Architekten entwickelten und designten Immobilie mit Zweitwohnsitz-Genehmigung.
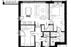
RAUMAUFTEILUNG
Durch einen geräumigen Vorraum gelangt man linkerhand in eines der beiden Schlafzimmer, sowie rechterhand in eines der beiden Bäder. Ebenfalls vom Vorraum aus erreichbar ist der großzügige Wohnraum mit offener Küche und Ausgang auf die Terrasse. Vom Wohnraum aus gelangt man auch in das zweite Schlafzimmer mit Ankleideraum, Bad en suite und separatem WC, sowie in einen Abstellraum.
AUSSTATTUNG & FEATURES
- Modernste Architektur und Interior Design by Matteo Thun
- Wahl zwischen zwei Ausstattungs-Varianten "Classic" und "Olive"
- Premium 5*-Hotel-Serviceleistungen für alle Apartment-Eigentümer
- Familienfreundliches, autofreies und grünes Resort
- 3 Golfplätze in unmittelbarer Nähe
- Optionales Vermietungskonzept "Buy-to-let"
LAGE & INFRASTRUKTUR
Die atemberaubende Gardasee-Bucht von Salò strahlt mit ihren prächtigen Bauwerken, exklusiven Boutiquen und fantastischen Restaurants eine authentische und elegante Atmosphäre aus.
Salò und die Umgebung bieten eine Reihe von spannenden und abwechslungsreichen Aktivitäten für alle Altersgruppen. Genießen Sie die Annehmlichkeiten und den Komfort Ihres Zweitwohnsitzes an einem der schönsten Orte Italiens zusammen mit Ihren Lieben.
INFORMATION
Hinweis: Der Gesamtkaufpreis versteht sich inklusive Designer-Ausstattungspaket und Garagenplatz (inkl. MwSt.).
(Davon entfällt auf das Ausstattungspaket von Matteo Thun 86.600 Euro (+ 22% MwSt.) und auf den Garagenplatz 55.000,- Euro (+ 10% MwSt).)
Im Park Resort Lake Garda stehen noch weitere Apartments mit 1-4 Schlafzimmern zur Verfügung! Fordern Sie gerne mehr Infomaterial bei uns an.
Änderungen vorbehalten.
PROVISIONSFREI für den Käufer!
Oben angeführte Angaben basieren auf Informationen und Unterlagen des Eigentümers und sind unsererseits ohne Gewähr.
Wir weisen darauf hin, dass zwischen dem Vermittler und dem zu vermittelnden Dritten ein familiäres oder wirtschaftliches Naheverhältnis besteht.
Eckdaten
| Kaufpreis: | 825.400,00 € |
| Fläche: | 76,00 m² |
| Zimmer: | 3 |
Basisdaten zur Immobilie
| Objektnr: | 2654 |
| Art: | Wohnung |
| Land: | Italien |
| Baujahr: | 2024 |
| Zustand: | Erstbezug |
| Kaufpreis: | 825.400,00 € |
| Wohnfläche: | 76,00 m² |
| Zimmer: | 3 |
| Bäder: | 2 |
| WC: | 2 |
| Terrassen: | 1 |
Ausstattung
Wohnküche / offene Küche, Personenaufzug, Bad mit Fenster, Dusche, Kabel/Satelliten-TV, Sporteinrichtungen
Internet und TV
Information zur Internet und TV Versorgung hier
Ihre persönliche Beratung
Eva Marschall
Marschall Immobilien GmbH
e.marschall@marschall.at
+43 664 10 10 618
+43 664 10 10 618
