Penthouse mit atemberaubendem Blick
Wohnung
- Penthouse,
1220
Wien
Lage der Immobilie
Toplage an der Donauinsel und dem Donaupark direkt beim "Vienna International Centre" /U1 und nahe der Alten DonauBeschreibung der Immobilie
LAGE
Dieses außergewöhnliche Penthouse liegt in den beiden obersten Geschossen des von den bekannten Architekten Delugan-Meissl geplanten "Mischek Towers" und bietet einen einzigartigen Blick.
RAUMAUFTEILUNG/AUSSTATTUNG
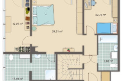
Das lichtdurchflutete Apartment erstreckt sich über zwei Etagen, die mit einer Innentreppe verbunden sind, verfügt über weitläufige verglaste Loggien und ist sehr gut ausgestattet.
Der Haupteingang befindet sich in der ersten Ebene im 34.Stock. Über den Vorraum mit Abstellraum gelangt man in den Masterbereich mit Schlafzimmer, en suite Bad mit Panoramafenster und begehbarer Garderobe sowie zu einem weiteren Zimmer und einem Duschbad mit WC.
Die großzügige Wohnebene mit Vorraum und separatem Eingang ist im 35.Stock und besteht aus einem großen Wohnsalon mit Essbereich und Bibliothek mit einer imposanten Raumhöhe bis zu 4,6m, einer Wohnküche mit Abstellraum sowie einem Gäste WC.
Die gediegene Ausstattung mit Stein- und Parkettböden, Onyx- und Marmorplatten im Masterbad umfasst unter anderem auch eine Klimaanlage sowie eine Sicherheitstüre.
INFORMATION
Als Besonderheit stehen im Haus ein Concierge Service sowie in der Tiefgarage Stellplätze zur Miete und im Keller ein geräumiger Einlagerungsraum zur Verfügung. Gäste können bequem in der hauseigenen Besuchergarage parken.
Das Apartment verfügt über ca. 194 m² Wohnfläche, die Loggien im Ausmaß von ca. 33 m² sind darin enthalten.
INFRASTRUKTUR
Die Lage im neuen Stadtteil rund um die UNO-City direkt an der Donauinsel und dem Donaupark im Nahbereich zur Alten Donau lässt für Liebhaber des urbanen Lebensstiles keine Wünsche offen. Die unmittelbare Umgebung bietet eine Vielzahl an Freizeit- und Sporteinrichtungen, ein großes Angebot an Gastronomie und Unterhaltung, schulische Einrichtungen, Einkaufsmöglichkeiten und beste Verkehrsanschlüsse. In wenigen Minuten sind Sie mit der U1 in der Wiener Innenstadt, ebenso sind der Flughafen und die Autobahnen sehr gut erreichbar.
Oben angeführte Angaben basieren auf Informationen und Unterlagen des Eigentümers/der Eigentümerin und sind unsererseits ohne Gewähr.
Provision: 3 % des Kaufpreises + 20 % USt.
Hinweis: Im Rahmen unserer Offenlegungspflichten weisen wir darauf hin, dass unsere Fotos mittels KI-Technologien optisch verschönert und bearbeitet werden, sowie leere Räume mittels KI-Technologien virtuell möbliert und dekoriert werden. Betreffende Visualisierungen tragen als Bildunterschrift Bezeichnungen wie "KI-generierter Einrichtungsvorschlag"
Wir weisen darauf hin, dass zwischen dem Vermittler und dem zu vermittelnden Dritten ein familiäres oder wirtschaftliches Naheverhältnis besteht.
Der Vermittler ist als Doppelmakler tätig.
Infrastruktur / Entfernungen
Gesundheit
Arzt <1.000m
Apotheke <500m
Klinik <1.500m
Krankenhaus <2.500m
Kinder & Schulen
Schule <500m
Kindergarten <500m
Universität <2.000m
Höhere Schule <2.500m
Nahversorgung
Supermarkt <500m
Bäckerei <500m
Einkaufszentrum <2.000m
Sonstige
Geldautomat <500m
Bank <500m
Post <500m
Polizei <1.000m
Verkehr
Bus <500m
U-Bahn <500m
Straßenbahn <1.500m
Bahnhof <500m
Autobahnanschluss <500m
Angaben Entfernung Luftlinie / Quelle: OpenStreetMap
Eckdaten
| Kaufpreis: | 999.000,00 € |
| Fläche: | 193,00 m² |
| Zimmer: | 3 |
Basisdaten zur Immobilie
| Objektnr: | 2659 |
| Art: | Wohnung - Penthouse |
| Land: | Österreich |
| Baujahr: | 2002 |
| Zustand: | Gepflegt |
| Möbliert: | Teil |
| Alter: | Neubau |
| Kaufpreis: | 999.000,00 € |
| Provision: | 3% des Kaufpreises zzgl. 20% USt. |
| Betriebskosten: | 411,30 € |
| Heizkosten: | 386,09 € |
| MwSt Gesamt: | 99,20 € |
| Nutzfläche: | 193,00 m² |
| Zimmer: | 3 |
| Bäder: | 2 |
| WC: | 3 |
| Heizwärmebedarf: | B 36,70 kWh/m²a |
| fGEE: | C 1,22 |
Ausstattung
Steinboden, Parkett, Fernwärme, Einbauküche, Wohnküche / offene Küche, Personenaufzug, Bad mit Fenster, Badewanne, Dusche, Wachdienst, Kabel/Satelliten-TV, Parkhaus, Tiefgarage
Internet und TV
Information zur Internet und TV Versorgung hier
Ihre persönliche Beratung
Alexander Hamersky
Marschall Immobilien GmbH
a.hamersky@marschall.at
+43 676 700 79 18
+436767007918
