*** Provisionsfreie Anlegerwohnungen für Käufer ***
Wohnung
,
2301
Groß-Enzersdorf
Beschreibung der Immobilie
Eckdaten
Objektnr: | 141/76779 |
Art: | Wohnung |
Land: | Österreich |
Baujahr: | 2026 |
Alter: | Neubau |
Kaufpreis: | 355.000,00 € |
Kaufpreis / m²: | 5.279,60 € |
Provision: | provisionsfrei |
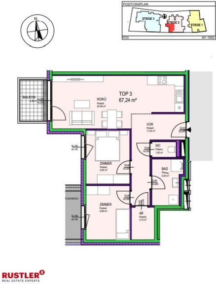
Wohnfläche: | 67,24 m² |
Zimmer: | 3 |
Bäder: | 1 |
WC: | 1 |
Terrassen: | 1 |
Heizwärmebedarf: | B 43,60 kWh/m²a |
fGEE: | A 0,81 |
Ausstattung
Personenaufzug
Internet und TV
Information zur Internet und TV Versorgung hier
Ihre persönliche Beratung

Veronika Vollmann
Rustler Immobilientreuhand
E vvollmann@rustler.eu
T +43 676 834 34667
H +43 676 834 34 667