*** Provisionsfreie Anlegerwohnungen für Käufer ***
Wohnung
- Erdgeschoß,
2301
Groß-Enzersdorf
Beschreibung der Immobilie
Eckdaten
Objektnr: | 141/76791 |
Art: | Wohnung - Erdgeschoß |
Land: | Österreich |
Baujahr: | 2026 |
Alter: | Neubau |
Kaufpreis: | 360.000,00 € |
Kaufpreis / m²: | 5.318,36 € |
Provision: | provisionsfrei |
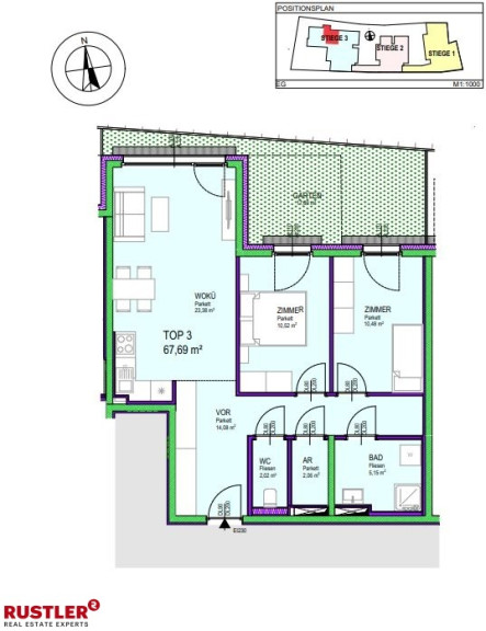
Wohnfläche: | 67,69 m² |
Zimmer: | 3 |
Bäder: | 1 |
WC: | 1 |
Garten: | 17,89 m² |
Heizwärmebedarf: | C 52,60 kWh/m²a |
fGEE: | A 0,82 |
Internet und TV
Information zur Internet und TV Versorgung hier
Ihre persönliche Beratung

Veronika Vollmann
Rustler Immobilientreuhand
E vvollmann@rustler.eu
T +43 676 834 34667
H +43 676 834 34 667