+++Wetzelsdorf: 2-Zimmer-Wohnung in Ruhelage mit Eigengarten+++
Wohnung
,
8052
Graz-Wetzelsdorf
Beschreibung der Immobilie
Eckdaten
| Miete / m²: | 9,30 € |
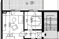
| Fläche: | 53,50 m² |
| Zimmer: | 3 |
Basisdaten zur Immobilie
| Objektnr: | 886/01014 |
| Art: | Wohnung |
| Land: | Österreich |
| Baujahr: | 2021 |
| Wohnfläche: | 53,50 m² |
| Zimmer: | 3 |
| Bäder: | 1 |
| WC: | 1 |
| Terrassen: | 1 |
| Garten: | 71,00 m² |
Ausstattung
Fußbodenheizung, Personenaufzug
Internet und TV
Information zur Internet und TV Versorgung hier
Ihre persönliche Beratung
Heinz Hier, MA
Hier Zuhause e.U.
heinz.hier@hierzuhause.at
+43 664 2220929
