Exklusives Wohnen im Apostelhof! Altbau trifft auf modernen Neubau
Wohnung
,
1030
Wien
,
Apostelgasse
Lage der Immobilie
Der Apostelhof befindet sich in einer ruhigen Wohngegend des 3. Wiener Gemeindebezirks, in der Nähe des Stadtzentrums. Für diejenigen, die gerne einkaufen oder essen gehen, gibt es in der Gegend viele Möglichkeiten. Die nahegelegene Landstraßer Hauptstraße ist bekannt für ihre Geschäfte und Restaurants, auch gibt es einen großen Supermarkt in der Nähe. Die Lage bietet eine gute Anbindung an den öffentlichen Verkehr, mit mehreren Bus- und Straßenbahnlinien in der Nähe. Die nächstgelegene U-Bahn-Station ist die U3-Station Kardinal-Nagl-Platz, die etwa 4 Gehminuten entfernt ist. Die Gegend um die Apostelgasse 25 kann mit einigen kulturelle Angeboten aufwarten. Eine der bekanntesten Sehenswürdigkeiten in der Nähe ist das Schloss Belvedere, das für seine prächtige barocke Architektur und seine Kunstsammlungen bekannt ist. Ein weiteres kulturelles Highlight in der Umgebung ist das Konzerthaus Wien, eines der bekanntesten Konzerthäuser der Stadt. Das Konzerthaus beherbergt das Wiener Symphoniker Orchester.Beschreibung der Immobilie
Inmitten des 3. Wiener Gemeindebezirks liegt der 1899 errichtete Apostelhof. Im Rahmen einer umfassenden Revitalisierung des Bestandes kombiniert mit einem Neubau entstanden hier moderne und exklusive Wohnungen mit teilweise großzügigen Freiflächen. Es bietet sich die einzigartige Gelegenheit, eine charmante und stilvolle Immobilie im Herzen Wiens zu erwerben.
Vier unterschiedliche Gebäudetrakte – vom revitalisierten Altbestand, über Backstein bis zum Neuzubau – lassen ausreichend Spielraum für Individualität.
Der Altbestand besteht aus einem Straßentrakt mit zwei Stiegen und einem Hoftrakt im Innenhof mit einer wundervollen klassischen Backsteinfassade. Beide Gebäudetrakte wurden äußerst gründlich und behutsam revitalisiert und bieten somit Charme und Charakter. Ein hofseitiger Neubautrakt vervollständigt dieses Projekt. Moderne Architektur und hochwertige Ausstattung wurden in harmonischen Einklang gebracht.
Alle vier Bautrakte bieten eine Vielzahl an Wohnungen unterschiedlicher Größe und Ausstattung, von gemütlichen Ein-Zimmer-Apartments bis hin zu geräumigen Penthouse-Wohnungen mit Terrassen und Blick auf die Stadt.
Das Projekt:
- 48 Wohnungen
- 1 bis 4-Zimmer-Wohnungen
- 35 m² bis 151 m² Wohnfläche
- Revitalisierter Altbau oder Neubau
- Balkone, Terrassen
- Lift
Ausstattung:
- Intelligente Grundrisse
- Großzügige Raumaufteilung
- Angenehme Deckenhöhen
- Hochwertige Parkettböden
- Elegantes Feinsteinzeug in den Bädern
- Mehrfachverglasung, teilweise Sonnenschutz
- Fernwärme
Energieausweis gültig bis 22.06.2031:
- HWB ab 23,77 kWh/m²a; Klasse B
- fGEE ab 0,573; Klasse A+
Bereits Fertiggestellt!
3% Kundenprovision
Die monatlichen Kosten entnehmen Sie bitte der Preisliste.
Nähere Informationen finden Sie auch auf unserer Homepage unter www.ehl.at/apostelhof sowie auf der Projekthomepage unter www.apostelhof.at
Wir weisen darauf hin, dass zwischen dem Vermittler und dem zu vermittelnden Dritten ein familiäres oder wirtschaftliches Naheverhältnis besteht.
Infrastruktur / Entfernungen
Gesundheit
Arzt <250m
Apotheke <500m
Klinik <500m
Krankenhaus <500m
Kinder & Schulen
Schule <250m
Kindergarten <250m
Universität <1.000m
Höhere Schule <250m
Nahversorgung
Supermarkt <250m
Bäckerei <250m
Einkaufszentrum <250m
Sonstige
Geldautomat <250m
Bank <250m
Post <500m
Polizei <500m
Verkehr
Bus <250m
U-Bahn <250m
Straßenbahn <750m
Bahnhof <250m
Autobahnanschluss <1.250m
Angaben Entfernung Luftlinie / Quelle: OpenStreetMap
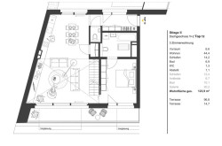
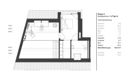
Eckdaten
| Kaufpreis: | 1.487.300,00 € |
| Fläche: | 122,71 m² |
| Zimmer: | 3 |
Basisdaten zur Immobilie
| Objektnr: | 61651 |
| Art: | Wohnung |
| Land: | Österreich |
| Baujahr: | 1899 |
| Zustand: | Erstbezug |
| Alter: | Neubau |
| Kaufpreis: | 1.487.300,00 € |
| Provision: | 3% des Kaufpreises zzgl. 20% USt. |
| Betriebskosten: | 222,40 € |
| Heizkosten: | 106,41 € |
| MwSt Gesamt: | 48,34 € |
| Wohnfläche: | 122,71 m² |
| Zimmer: | 3 |
| Bäder: | 2 |
| WC: | 3 |
| Terrassen: | 2 |
| Heizwärmebedarf: | B 32,51 kWh/m²a |
| fGEE: | A+ 0,61 |
Ausstattung
Fliesen, Parkett, Fernwärme, Personenaufzug, Badewanne, Dusche
Internet und TV
Information zur Internet und TV Versorgung hier
Ihre persönliche Beratung
Ilse Reindl
EHL Immobilien GmbH
i.reindl@ehl.at
+43 1 5127690 410
+43 664 881 601 43
