Günstige Lager- & Büroflächen in Hohenems von 28 - 700 m²
Halle / Lager / Produktion
- Lager,
6845
Hohenems
,
Friedhofstraße 7
Lage der Immobilie
Sie suchen ein günstiges Lager u/o ein Büro in der Region Vorarlberg? Dann haben wir genau das Richtige für Sie! Das Objekt bietet Ihnen auf einer Fläche bis zu 694 m² alle Möglichkeiten für Ihr erfolgreiches Gewerbe. Die Immobilie besticht durch Ihre Lage und Ihre großzügige Fläche, die Ihnen den Arbeitsalltag erleichtern werden.Beschreibung der Immobilie
Die Immobilie ist ab ab sofort verfügbar und kann ganz nach Ihren individuellen Bedürfnissen gestaltet werden. Zudem sind 6 Stellplätze direkt am Objekt vorhanden, sodass Ihre Mitarbeiter und Kunden bequem parken können. Sanitäranlagen sind ebenfalls vorhanden.
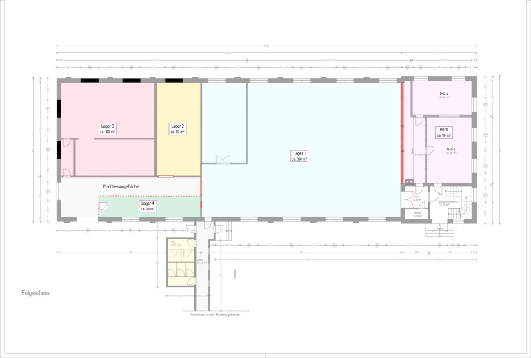
Die Fläche kann gesamt oder einzeln wie folgt gemietet werden:
- Lager 1 + Büro = 395 m² (305 m² + 90 m²)
- Lager 1 = 305 m²
- Lager 1a = 45 m² - VERMIETET
- Lager 2 = 50 m² - VERMIETET
- Lager 3 = 100 m²
- Lager 4 = 28 m² - VERMIETET
- Lager 5 = 50 m² - nicht im Grundriss eingezeichnet
- Lager 6 = 100 m² - nicht im Grundriss eingezeichnet
- 6 KFZ
Preisliste finden Sie unten zum Downloaden.
Abmessungen der Laderampe mit Tor:
- Torhöhe = 3,00 m
- Torbreite = 2,10 m
Im Außenbereich stehen etliche Flächen für eine Lagerung zu Verfügung.
Eine Bushaltestelle befindet sich direkt vor der Tür und auch der Bahnhof ist nur wenige Gehminuten entfernt. Somit sind Sie und Ihre Mitarbeiter jederzeit gut erreichbar.
Überzeugt? Dann zögern Sie nicht und vereinbaren Sie noch heute einen Besichtigungstermin.
Unsere Angaben beziehen sich auf die Auskünfte des Eigentümers. Irrtum und Änderungen vorbehalten.
Noch nichts gefunden? Wir informieren Sie über geeignete Immobilienangebote noch vor allen anderen.
Legen Sie jetzt kostenlos Ihren individuellen Suchagenten unter folgendem Link an. Wir schicken Ihnen passende Immobilien exklusiv vorab zu.
Suchagent anlegen
Wir weisen darauf hin, dass zwischen dem Vermittler und dem zu vermittelnden Dritten ein familiäres oder wirtschaftliches Naheverhältnis besteht.
Der Vermittler ist als Doppelmakler tätig.
Infrastruktur / Entfernungen
Gesundheit
Arzt <125m
Apotheke <450m
Krankenhaus <675m
Kinder & Schulen
Schule <575m
Kindergarten <125m
Universität <6.750m
Höhere Schule <3.950m
Nahversorgung
Supermarkt <525m
Bäckerei <525m
Einkaufszentrum <2.000m
Sonstige
Bank <300m
Geldautomat <300m
Post <725m
Polizei <375m
Verkehr
Bus <200m
Autobahnanschluss <2.200m
Bahnhof <875m
Flughafen <3.050m
Angaben Entfernung Luftlinie / Quelle: OpenStreetMap
Eckdaten
| Objektnr: | 5681/356 |
| Art: | Halle / Lager / Produktion - Lager |
| Land: | Österreich |
| Provision: | 1 Bruttomonatsmiete zzgl. 20% USt. |
| WC: | 2 |
| Stellplätze: | 6 |
| Heizwärmebedarf: | E 189,00 kWh/m²a |
Ausstattung
Öl, Parkplatz
Internet und TV
Information zur Internet und TV Versorgung hier
Ihre persönliche Beratung
Mag. Daniel Ströhle
Rimo Immobilien GmbH
info@rimo.at
+43 5522 39303 21
