Beschreibung der Immobilie
Exklusives Wohnen im Herzen Wiens!
Willkommen im Grace, einem neuen Wohnprojekt im pulsierenden dritten Wiener Gemeindebezirk. Tauchen Sie ein in die zeitlose Eleganz von 33 sorgfältig restaurierten Altbau-Apartments im englischen Stil. Vom vielseitigen Mikroapartment über elegante Dachgeschoss-Maisonetten mit historischem Flair bis hin zu klassischen englischen Townhäusern mit bunten Eingangstüren und direktem Zugang - im Grace findet jeder sein Zuhause, geprägt von Eleganz, Charme, Stil und Lebensfreude.
Das geschichtsträchtige Altbauhaus aus dem 19. Jahrhundert mit seiner wunderschönen Fassadengliederung wird behutsam revitalisiert, um modernen Wohnkomfort mit dem Flair vergangener Epochen zu vereinen. Im Grace entsteht so ein Zuhause von einzigartigem Charakter und zeitloser Eleganz.
Die geschmackvoll revitalisierten Wohneinheiten bieten modernen Wohnkomfort in Verbindung mit historischem Charme und umfassen Apartments für unterschiedlichste Bedürfnisse von gemütlichen 36m² bis großzügigen 154m².
Für höchsten Komfort und Sicherheit bietet das Grace eine hauseigene Tiefgarage mit insgesamt 10 Stellplätzen sowie eine gut beleuchtete, leicht zugängliche Garage gleich um die Ecke mit weiteren 50 Stellplätzen, einschließlich Ladestationen für Elektroautos.
Projektdetails:
- 33 Eigentumswohnungen
- 2 - 4 Zimmer Apartments von 36 - 150 m²
- Einzigartiges Townhouse mit Londoner Wohnflair
- Sorgsam revitalisiertes Gründerzeithaus
- Hochwertige Ausstattungspakete inklusive drei Designlinien
- Charmanter, ruhiger Innenhof
- Perfekte Lage nahe Wien Mitte
Ausstattungshighlights:
- Fernwärme und Luftwärmepumpe
- Klimageräte in den oberen Etagen, Vorbereitung in den unteren
- Mobiler Concierge
- Hauseigene Tiefgarage
- Paket- und Briefkästen & Digitales Schwarzes Brett
- Fischgrät-Parkett aus Eiche
- Holz-Alu-Fenster
- Kaminanschluss in ausgewählten Tops (29, 30, 32, 33)
Lage:
Grace liegt neben Wien Mitte und somit genau zwischen der Inneren Stadt und dem weitläufigen grünen Prater. Eine optimale Infrastruktur und exzellente Anbindung an den öffentlichen Verkehr bieten höchsten Wohnkomfort. Dank der U-Bahn Linien U3 und U4, der S-Bahn und den Straßenbahnlinien 1 und O erreichen Sie ganz Wien innerhalb kürzester Zeit. Zahlreiche Lokale, Restaurants, Museen sowie die Innenstadt und Grünflächen vervollständigen die traumhafte Lage.
Öffentliche Verkehrsmittel:
- U4 Landstraße Wien Mitte
- Straßenbahnlinien 1 und O
- Buslinien 74A und N29
Fertigstellung voraussichtlich im 2. Quartal 2026.
3% Kundenprovision
Lassen Sie sich von Grace verzaubern und finden Sie Ihr neues Zuhause im Herzen Wiens.
Wir weisen darauf hin, dass zwischen dem Vermittler und dem zu vermittelnden Dritten ein familiäres oder wirtschaftliches Naheverhältnis besteht.
Der Vermittler ist als Doppelmakler tätig.
Infrastruktur / Entfernungen
Gesundheit
Arzt <250m
Apotheke <500m
Klinik <750m
Krankenhaus <500m
Kinder & Schulen
Schule <250m
Kindergarten <250m
Universität <500m
Höhere Schule <1.250m
Nahversorgung
Supermarkt <250m
Bäckerei <250m
Einkaufszentrum <500m
Sonstige
Geldautomat <500m
Bank <500m
Post <250m
Polizei <500m
Verkehr
Bus <250m
U-Bahn <500m
Straßenbahn <250m
Bahnhof <250m
Autobahnanschluss <2.500m
Angaben Entfernung Luftlinie / Quelle: OpenStreetMap
Eckdaten
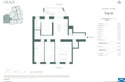
| Kaufpreis: | 1.198.000,00 € |
| Fläche: | 117,50 m² |
| Zimmer: | 4 |
Basisdaten zur Immobilie
| Objektnr: | 75160 |
| Art: | Wohnung |
| Land: | Österreich |
| Baujahr: | 1900 |
| Zustand: | Erstbezug |
| Alter: | Altbau |
| Kaufpreis: | 1.198.000,00 € |
| Provision: | 3% des Kaufpreises zzgl. 20% USt. |
| Wohnfläche: | 117,50 m² |
| Zimmer: | 4 |
| Bäder: | 1 |
| WC: | 1 |
| Balkone: | 1 |
| Heizwärmebedarf: | C 71,90 kWh/m²a |
| fGEE: | C 1,05 |
Ausstattung
Fliesen, Parkett, Fußbodenheizung, Personenaufzug, Badewanne, Dusche
Internet und TV
Information zur Internet und TV Versorgung hier
Ihre persönliche Beratung
Daniel Bolataschwili
EHL Immobilien GmbH
d.bolataschwili@ehl.at
+43-1-512 76 90-414
+43 664 88 16 01 27
