Renoviertes Wohn-/Geschäftshaus
Haus
- Einfamilienhaus,
3804
Allentsteig
























Beschreibung der Immobilie
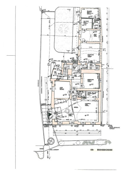
Bei dieser Liegenschaft handelt sich es um die ehemalige Raiffeisenbankstelle Allentsteig. Das Haus befindet sich im Zentrum und beinhaltet neben den ca. 176 m² großen Kassenräumlichkeiten im Erdgeschoß auch eine separat zu begehende, ca. 132 m² große Wohnung im Obergeschoß. Bei der Wohnung wurden 2022 die Decke, die Fußböden sowie die Elektroinstallationen erneuert.
Zusätzlich stehen ca. 24 m² Lager- und Abstellräumlichkeiten, eigene private Parkplätze und ein Garten für die Freizeitgestaltung zur Verfügung.
An öffentlichen Anschlüssen stehen Wasser, Kanal und Strom bereit. Die Beheizung der Liegenschaft erfolgt mittels Fernwärme.
Das Gebäude befindet sich in einem guten Bau- und Erhaltungszustand. Sämtliche Renovierungsmaßnahmen erfolgten im Jahr 2005. Das Dach samt Unterdach wurde erst im Jahr 2022 erneuert.
Die Immobile ist ein kleines Juwel mitten in der Stadt Allentsteig und ist für gewerbliche als auch für private Zwecke bestens geeignet.
Eckdaten
Objektnr: | 0002000156 |
Art: | Haus - Einfamilienhaus |
Land: | Österreich |
Möbliert: | Teil |
Kaufpreis: | 250.000,00 € |
Provision: | 3% des Kaufpreises plus 20% USt. |
Wohnfläche: | 308,00 m² |
Grundstücksfl.: | 1.049,00 m² |
Bäder: | 1 |
WC: | 2 |
Heizwärmebedarf: | E 153,80 kWh/m²a |
fGEE: | C 1,42 |
Ausstattung
Fernwärme, Einbauküche
Internet und TV
Information zur Internet und TV Versorgung hier
Ihre persönliche Beratung

Ferdinand Schönfelder
Waldviertel Immobilien Vermittlung
E ferdinand.schoenfelder@w-i-v.at
T +43 2822 52681
H +43 664 432 11 14