Neubauprojekt "Seevillen Esplanade 2" - Eigentumswohnungen in zentraler Lage

Wohnung , 4813 Altmünster

Beschreibung der Immobilie

In Altmünster entstehen in zentraler Lage zwei Bauobjekte mit insgesamt 7 Eigentumswohnungen.

Durch die Nähe zum Traunsee und nach Gmunden verfügen sie über eine ideale Infrastruktur und sorgen für hohe Lebensqualität.

Das ideale Zusammenspiel von zeitgemäßer Architektur und modernem Design schafft in allen Objekten eine Atmosphäre höchsten Wohlgefühls. Helle, lichtdurchflutete Räume, wohldurchdachte Raumeinteilung, qualitativ hochwertige Innenausstattung sowie Balkone, Terrassen, Loggien und Gärten lassen keine Wünsche offen.

In diesem Projekt "Seevillen Esplanade 2" fügen sich zwei Baukörper, mit optimaler Ausrichtung zum Traunsee geplant, zu einem harmonischen Ganzen.

Im vorderen Bauteil A befinden sich insgesamt 4 Wohneinheiten und im hinteren Bauteil 3 Wohneinheiten.

Bauteil A:

Top A1 - verkauft

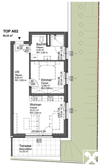
Top A2 - Wfl. ca. 55 m² + Garten u. Terrasse - Kaufpreis inkl. 1 Tiefgaragenplatz

€ 389.090,--

Top A3 - verkauft-

Top A4 - verkauft

Bauteil B:

Top B1 - Wfl. ca. 125 m² + Garten und Terrasse - Kaufpreis inkl. 1 TG-Platz u. 1 Außenstellplatz € 833.500,--

Top B2 - verkauft

Top B3 - verkauft

Die Eigentumswohnungen verfügen über unterschiedliche Größen sowie Balkone, Terrassen, Loggien oder Gärten. Sie schaffen den passenden Lebensraum für

Menschen in unterschiedlichsten Lebensabschnitten – egal ob für Singles, Paare oder Familien. Die Auswahl reicht von ca. 55 m²-Wohnungen über mittelgroße Wohnungen bis zu 125 m²-Wohnungen.

Die Gemeinde Altmünster ist eine Vorbehaltsgebiet-Gemeinde. Das bedeutet, dass der Rechtserwerb von Immobilien (Bauland/Wohnungen/Häuser) zum Zwecke der Begründung eines Freizeitwohnsitzes in ganz Altmünster nur mehr nach grundverkehrsbehördlicher Prüfung und Genehmigung möglich ist.

Vereinbaren Sie am besten gleich Ihren persönlichen Besichtigungstermin.

Eckdaten

Objektnr: 0004002332
Art: Wohnung
Land: Österreich
Baujahr: 2023
Kaufpreis: 389.090,00
Provision: 3% des Kaufpreises plus 20% USt.
Wohnfläche: 55,00 m²
Heizwärmebedarf:  B  36,00 kWh/m²a
fGEE:  A  0,73
Immobilie merken Exposé

Ausstattung

Fußbodenheizung


Internet und TV

Information zur Internet und TV Versorgung hier


Immobilie anfragen


Ihre persönliche Beratung

Real-Treuhand Immobilien Vertriebs GmbH

Birgit Pöll

Real-Treuhand Immobilien

E anfragen@raiffeisen-immobilien.at

T +43 50 6596 80028002

H +43 50 6596 8002