Top 1 | Gemütlich vorsorgen in grüner Lage – 76 m²
Wohnung
,
2232
Deutsch-Wagram
Lage der Immobilie
Grüne, ruhige Wohnlage, nahe Einkaufsmöglichkeiten und Bahnhof, optimale Verkehrsanbindung nach WienBeschreibung der Immobilie
In grüner, ruhiger Wohnlage – Grenzweg 11 –, dennoch nur fünf Fahrradminuten vom Bahnhof entfernt, haben wir ein kleinteiliges Niedrigenergiewohnhaus mit siebzehn Eigentumswohnungen in den Größen von 54 bis 108 m² Wohnnutzfläche gebaut. Alle Wohnungen sind auch mit Steuervorteil als Vorsorgewohnungen zu haben. Da sowohl die Fußbodenheizung als auch die Wasseraufbereitung mit Wärmepumpe funktionieren, außerdem eine Photovoltaikanlage am Dach angebracht wurde und das Haus in Ziegelbauweise errichtet wurde, ist dieses Wohnhaus besonders ökologisch. Im überdachten Eingangsbereich und auch in der Tiefgarage sind ausreichend Abstellplätze für Ihr Fahrrad vorhanden, damit Sie ganz umweltfreundlich Ihre Alltagswege zurücklegen können. Erholung am Feierabend finden Sie im nahen Wald mit Spazier- und Radwegen.
Auf Wunsch kann die Wohnung zu einer Nettomiete von ca. € 900,00 vermietet übergeben werden.
Open House | 13. März 2026 | 14 bis 17 Uhr | Herzlich willkommen
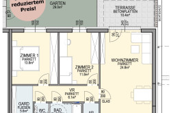
Raumaufteilung und Ebene(n)
EG | ca. 76 m² Wohnnutzfläche | ca. 29 m² Garten | ca. 10 m² Terrasse | 3 Zimmer
- Wohnzimmer mit Kochnische, zwei Schlafzimmer, Garderobe, Vorraum, Abstellraum, Bad, getrenntes WC
- Kfz-Stellplatz und Fahrradparker in Tiefgarage
- Einlagerungsraum im KG
- Kinderwagenabstellraum im EG
- Müllraum im EG
- Schlüsselfertig und provisionsfrei inklusive eines Kfz-Stellplatzes und eines Kellerabteils
Infrastruktur / Entfernungen
Gesundheit
Arzt <1.000m
Apotheke <500m
Klinik <1.500m
Kinder & Schulen
Kindergarten <1.000m
Schule <1.500m
Nahversorgung
Supermarkt <500m
Bäckerei <5.000m
Einkaufszentrum <4.500m
Sonstige
Bank <500m
Geldautomat <500m
Post <500m
Polizei <1.000m
Verkehr
Bus <500m
Autobahnanschluss <4.500m
Bahnhof <1.000m
U-Bahn <9.500m
Straßenbahn <9.500m
Angaben Entfernung Luftlinie / Quelle: OpenStreetMap
Eckdaten
| Kaufpreis: | 343.000,00 € |
| Fläche: | 76,40 m² |
| Zimmer: | 3 |
Basisdaten zur Immobilie
| Objektnr: | 1412 |
| Art: | Wohnung |
| Land: | Österreich |
| Baujahr: | 2023 |
| Alter: | Neubau |
| Kaufpreis: | 343.000,00 € |
| Kaufpreis / m²: | auf Anfrage |
| Wohnfläche: | 76,40 m² |
| Zimmer: | 3 |
| Bäder: | 1 |
| WC: | 1 |
| Terrassen: | 1 |
| Garten: | 29,00 m² |
| Keller: | 4,40 m² |
| Heizwärmebedarf: | B 32,00 kWh/m²a |
| fGEE: | A+ 0,68 |
Ausstattung
Fliesen, Parkett, Fußbodenheizung, Personenaufzug, Badewanne, Kabel/Satelliten-TV, Garage
Internet und TV
Information zur Internet und TV Versorgung hier
Ihre persönliche Beratung
Julia Kolarik
JuNi Immobilien GmbH
immo@juni.at
06607370504
+43 660 737 05 04
