Grand Garden: Hofjuwel & Dachträume – ein Ensemble der Extraklasse
Wohnung
,
1160
Wien
,
Roseggergasse
Lage der Immobilie
Profitieren Sie von der idealen Lage, nur wenige Gehminuten von den U3-Stationen „Ottakring“ und „Kendlerstraße“ entfernt, die eine direkte Verbindung in das Stadtzentrum ermöglicht. Die Umgebung bietet neben der erstklassigen Verkehrsanbindung weiters eine ausgezeichnete Infrastruktur mit zahlreichen Einkaufsmöglichkeiten, Schulen, Krankenhäusern (z.B. Klinik Ottakring), Cafés und auch traditionellen Wiener Heurige. Optimal ergänzt wird die Lage durch naheliegende Freizeit- und Erholungsgebiete wie die Steinhofgründe, der Flötzersteig und der Wilhelminenberg – ideal für entspannte Spaziergänge und sportliche Aktivitäten. Folgende Stationen der öffentlichen Verkehrsmittel erreicht man nach wenigen Gehminuten: U3-Stationen „Ottakring“ und „Kendlerstraße“ S-Bahn-Station „Ottakring“ Straßenbahnlinien 10 & 49 Buslinie 48ABeschreibung der Immobilie
Investmentchance: Anlegerwohnungen im Grand Garden – Modernes Wohnen nahe Wilhelminenberg
In der Roseggergasse 2–8, unweit des beliebten Wilhelminenbergs, entsteht ein attraktives Wohnprojekt mit hohem Investmentpotenzial: 124 hochwertige Eigentumswohnungen in gefragter Lage. Die Wohnflächen reichen von ca. 39 m² bis 245 m² und bieten effiziente Grundrisse mit zwei bis sechs Zimmern – ideal für Anleger, die auf unterschiedliche Zielgruppen setzen möchten.
Private Freiflächen wie Eigengärten, Balkone, Loggien, Terrassen sowie großzügige Dachterrassen mit Panoramablick erhöhen die Vermietbarkeit und sprechen qualitätsbewusste Mieter an.
Ein besonderes Highlight ist der rund 1.000 m² große, exklusiv zugängliche Innenhof – eine grüne Ruheoase mitten in der Stadt. Perfekt als Mehrwert für Bewohner, der sich auch in der Wertentwicklung widerspiegeln kann.
Das Projekt wurde mit dem DGNB-Vorzertifikat in Gold (Deutsche Gesellschaft für Nachhaltiges Bauen) ausgezeichnet. Energieeffiziente Bauweise, geringe Betriebskosten, hoher Wohnkomfort und nachhaltige Planung machen die Wohnungen zu einer zukunftssicheren Investition.
Die hervorragende Verkehrsanbindung durch die Nähe zu den U3-Stationen „Ottakring“ und „Kendlerstraße“ sowie eine Vielzahl an Nahversorgern und Freizeitmöglichkeiten in der Umgebung runden das Angebot ab – und erhöhen die Mietnachfrage zusätzlich.
Das Projekt
Vielfalt und Luxus vereint – Wohnungen mit hochwertigen Ausstattungen Die Zwei- bis Vierzimmerwohnungen bestechen durch ihre hochwertige Ausstattung, inklusive edler Parkettfussböden, moderner Fußbodenheizung und intelligenter Technologien wie der Hausverwaltungs-App „Puck“. Eine hauseigene Tiefgarage mit E-Ladestationen sowie Photovoltaikanlagen und Fernwärme sorgen für zusätzlichen Komfort und Nachhaltigkeit. Für ein angenehmes Raumklima sind die Wohnungen im 2. Dachgeschoß mit Klimaanlagen.
- 124 freifinanzierte Vorsorgewohnungen
- 28 Tiefgaragenplätze
- 2 – 4 Zimmerwohnungen
- Wohnungsgrößen zwischen 41 und 123 m²
- Freiflächen wie Eigengarten, Terrasse, Loggia oder Balkon
- Kinderwagen- und Fahrradabstellraum
- Jugendspielplatz
- Energieausweis gültig bis 24.02.2032:
- HWB: 36,90 kWh/m²a; Klasse B
- fGEE: 0,88; Klasse B
Die Ausstattung mit nachhaltiger Wertsteigerung
Dieses Wohnprojekt hat bereits das Vorzertifikat der DGNB in Gold (Deutsche Gesellschaft für Nachhaltiges Bauen) erhalten. Zertifizierte Immobilien bieten nicht nur niedrigere Energiekosten und einen reduzierten CO2-Fußabdruck, sondern auch hohe Standards bei Luftqualität, Akustik und Lichtverhältnissen. Investieren Sie in eine nachhaltige Immobilie und profitieren Sie von einer optimalen Wertsteigerung und zukunftssicheren Renditen.
Zusätzlich besteht die Möglichkeit, eine Küche über uns zu erwerben. Dabei handelt es sich um eine Standardküche mit Siemens-Geräten.
- Fußbodenheizung mit Fernwärme
- Photovoltaikanlage
- Großzügige Raumhöhen (2,52 bis 3,10m)
- Gegensprechanlage mit appgesteuertem Zugangssystem
- DGBN Gold Zertifizierung/EU-Taxonomie Verifikation
- Split-Kühlanlage im 2. Dachgeschoß
- Beschattungen:
- hofseitige Regelgeschoße: außenliegender, elektrisch betriebene Raffstores
- straßenseitige Regelgeschoße: innenliegender, textiler Sonnenschutz
- Dachgeschoße: außenliegende, elektrisch betriebene Rollläden bzw. Raffstores
- Dachflächenfenster: Rollläden oder textile Markisetten
- hofseitiges Garten- und Erdgeschoß: Rollläden oder textile Markisetten
Erwerben Sie Ihre Vorsorgewohnung provisionsfrei bis zum Baubeginn und lassen Sie Ihr Kapital für sich arbeiten. Verdienen Sie monatlich und genießen Sie die Vorteile einer der begehrtesten Wohnlagen Wiens.
Sichern Sie sich Ihre Spitzenrendite in der Roseggergasse 2-8 und erleben Sie den perfekten Mix aus historischem Charme und modernem Wohnkomfort. Kontaktieren Sie uns noch heute und machen Sie den ersten Schritt zu Ihrer renditestarken Investition!
Kaufpreise der Vorsorgewohnungen
von EUR 212.800,- bis EUR 1.006.800,- netto zzgl. 20% USt.
Zu erwartender Mietertrag
von ca. EUR 17,00 bis EUR 19,50 netto/m²
3% Kundenprovision
Fertigstellung: voraussichtlich 2028
Bei diesem Angebot handelt es sich um eine Vorsorgewohnung, die zu Vermietungszwecken erworben wird. Der angegebene Kaufpreis versteht sich daher zzgl. 20% USt. Diese Daten sind vorbehaltlich möglicher Änderungen.
Ein detaillierten Überblick finden Sie auf unserer EHL-Projekthomepage: https://www.ehl.at/wohnen/wohnprojekte/roseggergasse-2-8-1160-wien
Gewinnen Sie einen ersten Eindruck dieses Projekts in unserem Video!
© WINEGG | Real Agency
Wir weisen darauf hin, dass zwischen dem Vermittler und dem zu vermittelnden Dritten ein familiäres oder wirtschaftliches Naheverhältnis besteht.
Der Vermittler ist als Doppelmakler tätig.
Infrastruktur / Entfernungen
Gesundheit
Arzt <250m
Apotheke <500m
Klinik <500m
Krankenhaus <750m
Kinder & Schulen
Schule <250m
Kindergarten <500m
Universität <1.000m
Höhere Schule <1.000m
Nahversorgung
Supermarkt <250m
Bäckerei <500m
Einkaufszentrum <1.500m
Sonstige
Geldautomat <500m
Bank <500m
Post <750m
Polizei <750m
Verkehr
Bus <250m
U-Bahn <250m
Straßenbahn <250m
Bahnhof <500m
Autobahnanschluss <5.500m
Angaben Entfernung Luftlinie / Quelle: OpenStreetMap
Eckdaten
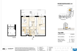
| Kaufpreis: | 361.900,00 € |
| Fläche: | 60,51 m² |
| Zimmer: | 3 |
Basisdaten zur Immobilie
| Objektnr: | 78982 |
| Art: | Wohnung |
| Land: | Österreich |
| Zustand: | Erstbezug |
| Alter: | Neubau |
| Kaufpreis: | 361.900,00 € |
| Kaufpreis / m²: | auf Anfrage |
| Provision: | 3% des Kaufpreises zzgl. 20% USt. |
| Wohnfläche: | 60,51 m² |
| Zimmer: | 3 |
| Bäder: | 1 |
| WC: | 1 |
| Balkone: | 1 |
| Heizwärmebedarf: | B 36,90 kWh/m²a |
| fGEE: | B 0,88 |
Ausstattung
Parkett, Fliesen, Solarenergie, Fußbodenheizung, Personenaufzug, Nordbalkon, Badewanne
Internet und TV
Information zur Internet und TV Versorgung hier
Ihre persönliche Beratung
Andrea PÖCHHACKER; MSc
EHL Immobilien GmbH
a.poechhacker@ehl.at
+4315127690 DW 411
+43664 83 73 481
