Beschreibung der Immobilie
Grand Garden: Modernes Wohnen nahe Wilhelminenberg
In der Roseggergasse 2–8, unweit des Wilhelminenbergs, entstehen 124 hochwertige Eigentumswohnungen. Die Wohnflächen reichen von ca. 39 m² bis 245 m² und bieten Grundrisse mit zwei bis sechs Zimmern – ideal für unterschiedlichste Wohnbedürfnisse.
Großzügige private Freiflächen wie Eigengärten, Balkone, Terrassen, Loggien sowie beeindruckende Dachterrassen mit Panoramablick schaffen ein einzigartiges Wohngefühl.
Das Herzstück des Projekts ist der knapp 1.000 m² große Innenhof, der den Bewohnern exklusiv zur Verfügung steht und u.a. zum Verweilen und Urban Gardening einlädt. Eine Ruheoase und Rückzugsort, der seinesgleichen sucht und das direkt vor Ihrer Wohnungstür.
Das Projekt wurde bereits mit dem DGNB-Vorzertifikat in Gold (Deutsche Gesellschaft für Nachhaltiges Bauen) ausgezeichnet und überzeugt durch besonders energieeffiziente Bauweise, einen geringen CO₂-Fußabdruck sowie durchdachte Konzepte für Luftqualität, Akustik und Tageslichtnutzung.
Die ausgezeichnete Lage – nur wenige Gehminuten zu den U3-Stationen „Ottakring“ und „Kendlerstraße“ – bietet weiters eine optimale Anbindung an das Stadtzentrum und verbindet entspanntes Wohnen mit urbanem Komfort.
Fertigstellung: voraussichtlich 2028
Der Verkauf erfolgt mit einer Vermittlungsprovision in Höhe von 3% vom Kaufpreis.
Das Projekt:
- 124 Eigentums- und Vorsorgewohnungen
- Wohnungsgrößen von 39 m² bis 245 m²
- Tiefgarage mit 28 Stellplätzen
- Sämtliche Stellplätze sind mit einer E-Mobilitäts-Anschlussstelle ausgestattet
- Gemeinschaftsgarten in absoluter Innenhof-Ruhelage mit Urban Gardening-Bereichen
- Großzügige Raumhöhen im Altbau
- Private Freiflächen in Form von Gärten, Balkonen, Loggien oder Terrassen
Die Ausstattung:
- Fußbodenheizung mittels Fernwärme
- Photovoltaikanlage
- Hochwertige Eichenparkettböden
- Elegante Verfliesung in den Nassräumen
- Beschattungen:
- hofseitige Regelgeschoße: außenliegender, elektrisch betriebene Raffstores
- straßenseitige Regelgeschoße: innenliegender, textiler Sonnenschutz
- Dachgeschoße: außenliegende, elektrisch betriebene Rollläden bzw. Raffstores
- Dachflächenfenster: Rollläden oder textile Markisetten
- hofseitiges Garten- und Erdgeschoß: Rollläden oder textile Markisetten
- Videogegensprechanlage
- Klimaanlagen in den Dachgeschoßwohnungen
- Smarte Hausverwaltungsapp
- Paketboxenanlage
Kaufpreise Stellplätze: zwischen EUR 33.700,- und EUR 48.000,-
Die Lage & Infrastruktur:
Profitieren Sie von der idealen Lage, nur wenige Gehminuten von den U3-Stationen „Ottakring“ und „Kendlerstraße“ entfernt, die eine direkte Verbindung in das Stadtzentrum ermöglicht.
Die Umgebung bietet neben der erstklassigen Verkehrsanbindung weiters eine ausgezeichnete Infrastruktur mit zahlreichen Einkaufsmöglichkeiten, Schulen, Krankenhäusern (z.B. Klinik Ottakring), Cafés und auch traditionellen Wiener Heurige. Optimal ergänzt wird die Lage durch naheliegende Freizeit- und Erholungsgebiete wie die Steinhofgründe, der Flötzersteig und der Wilhelminenberg – ideal für entspannte Spaziergänge und sportliche Aktivitäten.
Folgende Stationen der öffentlichen Verkehrsmittel erreicht man nach wenigen Gehminuten:
- U3-Stationen „Ottakring“ und „Kendlerstraße“
- S-Bahn-Station „Ottakring“
- Straßenbahnlinien 10 & 49
- Buslinie 48A
Wir weisen darauf hin, dass zwischen dem Vermittler und dem zu vermittelnden Dritten ein familiäres oder wirtschaftliches Naheverhältnis besteht.
Der Vermittler ist als Doppelmakler tätig.
Infrastruktur / Entfernungen
Gesundheit
Arzt <250m
Apotheke <500m
Klinik <500m
Krankenhaus <750m
Kinder & Schulen
Schule <250m
Kindergarten <500m
Universität <1.000m
Höhere Schule <1.000m
Nahversorgung
Supermarkt <250m
Bäckerei <500m
Einkaufszentrum <1.500m
Sonstige
Geldautomat <500m
Bank <500m
Post <750m
Polizei <1.000m
Verkehr
Bus <250m
U-Bahn <250m
Straßenbahn <250m
Bahnhof <500m
Autobahnanschluss <5.500m
Angaben Entfernung Luftlinie / Quelle: OpenStreetMap
Eckdaten
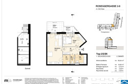
| Kaufpreis: | 437.400,00 € |
| Fläche: | 56,30 m² |
| Zimmer: | 2 |
Basisdaten zur Immobilie
| Objektnr: | 77597 |
| Art: | Wohnung |
| Land: | Österreich |
| Zustand: | Erstbezug |
| Alter: | Neubau |
| Kaufpreis: | 437.400,00 € |
| Provision: | 3% des Kaufpreises zzgl. 20% USt. |
| Wohnfläche: | 56,30 m² |
| Zimmer: | 2 |
| Bäder: | 1 |
| WC: | 1 |
| Balkone: | 1 |
| Terrassen: | 1 |
| Heizwärmebedarf: | B 42,20 kWh/m²a |
| fGEE: | B 0,93 |
Ausstattung
Fliesen, Parkett, Solarenergie, Fußbodenheizung, Personenaufzug, Ostbalkon, Badewanne
Internet und TV
Information zur Internet und TV Versorgung hier
Ihre persönliche Beratung
Daniel Bolataschwili
EHL Immobilien GmbH
d.bolataschwili@ehl.at
+43-1-512 76 90-414
+43 664 88 16 01 27
