Gösting Kindergarten und Büroflächen bestens für IT-Bereich geeignet
Büro / Praxis
,
8051
Graz
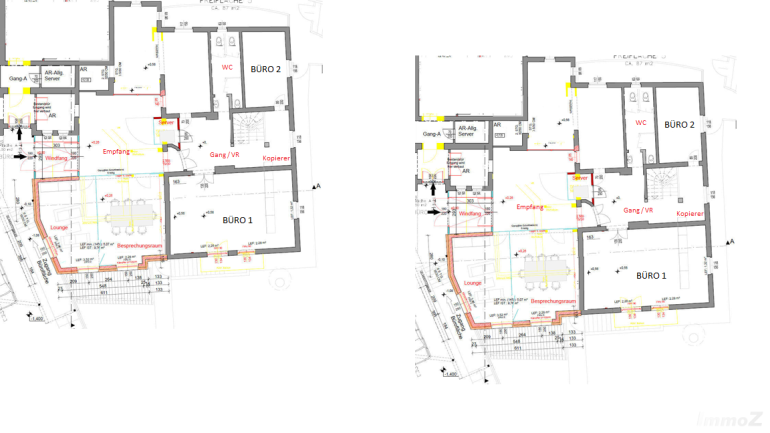
Beschreibung der Immobilie
Klimaanlage im OG. Inkl.
Glasfaserkabel, 4 Parkplätze inkl., freie Parkplätze an der Straße, Kindergrippe sowie Öffis 40er und 85er ganz in der Nähe.
Eckdaten
| Fläche: | 350,00 m² |
Basisdaten zur Immobilie
| Objektnr: | O2100154996 |
| Art: | Büro / Praxis |
| Land: | Österreich |
| Provision: | 3 BMM |
| Gesamtfläche: | 350,00 m² |
Ausstattung
Gas, Fernwärme, Einbauküche, Kabel/Satelliten-TV
Internet und TV
Information zur Internet und TV Versorgung hier
Ihre persönliche Beratung
Dipl. FW Hilde Papst
Papst Immobilien GmbH
office@papst-immo.at
0660/4683084
