STADTVILLEN Wilhelminenberg: Wien's Grünoase am Fuße des Wilhelminenbergs

Wohnung , 1160 Wien , Erdbrustgasse

Beschreibung der Immobilie

Die STADTVILLEN Wilhelminenberg!

Willkommen zu einer einzigartigen Investitionsmöglichkeit in Wien!

Die STADTVILLEN Wilhelminenberg bieten nicht nur exklusive Wohnungen, sondern auch eine äußerst seltene Gelegenheit für Anleger, die nach einer zukunftsorientierten und wertstabilen Investition suchen.

Diese Lage am Fuße des Wilhelminenbergs ist nicht nur selten, sondern auch äußerst begehrt. Die Kombination aus urbaner Infrastruktur und grüner Umgebung ist in Wien kaum zu finden und macht das Wilhelminen Cottage zu einem begehrten Juwel für Investoren.

Fünf Stadtvillen beherbergen 126 Wohnungen und 100 Garagenstellplätze von parkartigem Grünraum umgeben in bester Cottagelage.

 

Das Projekt

Mit einer nachhaltigen Energieversorgung durch Geothermie und Photovoltaik bietet dieses Projekt nicht nur ökonomische, sondern auch ökologische Vorteile. In Zeiten steigender Energiekosten und wachsendem Umweltbewusstsein ist eine solche Investition äußerst attraktiv und zukunftsweisend, findet insbesondere einen großen Zuspruch seitens der zukünftigen Mieter, was folglich die Rendite maximiert.

 

Darüber hinaus sind die Stadtvillen Wilhelminenberg nicht nur eine Wohnanlage, sondern auch ein Renditeobjekt. Die steigende Nachfrage nach hochwertigem Wohnraum in Wien macht diese Investition besonders vielversprechend. Die langfristige Wertsteigerung dieser Lage ist nahezu garantiert, da immer mehr Menschen die Vorzüge einer grünen und dennoch zentralen Wohnlage zu schätzen wissen.

 

Investieren Sie jetzt in die Zukunft Wiens und sichern Sie sich Ihren Anteil an diesem einzigartigen Projekt. Die STADTVILLEN Wilhelminenberg, die ideale Wahl für Investoren, die nach einer sicheren und rentablen Anlagemöglichkeit suchen.

  • 126 freifinanzierte Vorsorgewohnungen
  • 100 Tiefgaragenplätze mit e-Ladestationen
  • 2 – 5 Zimmerwohnungen
  • Wohnungsgrößen zwischen 37 und 165 m²
  • Kellerabteile mit Lademöglichkeit für e-Bikes
  • Autofreie Kinder-Spielbereich und Begegnunszonen
  • Kinderwagen- und Fahrradabstellraum

Die Ausstattung

  • Heizungs- und Warmwasserbereitstellung durch Wärmepumpen (Sole Wärmepumpe und Luft-Wärmepumpe)
  • Fußbodenheizung im EG
  • Bauteilaktivierung ab dem 1.OG
  • Kunststoff-Alu-Elemente, mit 3-Scheiben Isolierverglasung
  • Außenliegende, elektrisch bedienbare Außenjalousien bzw. Raffstores
  • Parkett Eiche Schiffboden
  • Verfliesung mit großformatigem Feinsteinzeug

Kaufpreise der Vorsorgewohnungen

von EUR 267.800,00 bis EUR 1.610.000,00 netto zzgl. 20% USt.

Zu erwartender Mietertrag

von ca. EUR 16,50 bis EUR 20,50 netto/m²

Provisionsfrei für den Käufer!
Fertigstellung: voraussichtlich Winter 2026

 

Bei diesem Angebot handelt es sich um eine Vorsorgewohnung, die zu Vermietungszwecken erworben wird. Der angegebene Kaufpreis versteht sich daher zzgl. 20% USt. Diese Daten sind vorbehaltlich möglicher Änderungen.

Wir weisen darauf hin, dass zwischen dem Vermittler und dem zu vermittelnden Dritten ein familiäres oder wirtschaftliches Naheverhältnis besteht.

Der Vermittler ist als Doppelmakler tätig.

Infrastruktur / Entfernungen

Gesundheit
Arzt <500m
Apotheke <750m
Klinik <750m
Krankenhaus <750m

Kinder & Schulen
Schule <750m
Kindergarten <500m
Universität <1.500m
Höhere Schule <1.750m

Nahversorgung
Supermarkt <500m
Bäckerei <500m
Einkaufszentrum <750m

Sonstige
Geldautomat <750m
Bank <750m
Post <750m
Polizei <500m

Verkehr
Bus <250m
U-Bahn <1.000m
Straßenbahn <500m
Bahnhof <1.000m
Autobahnanschluss <5.500m

Angaben Entfernung Luftlinie / Quelle: OpenStreetMap

Eckdaten

Objektnr: 76736
Art: Wohnung
Land: Österreich
Baujahr: 2026
Zustand: Erstbezug
Alter: Neubau
Kaufpreis: 266.708,00
Kaufpreis / m²: auf Anfrage
Provision: Provisionsfrei für den Käufer!
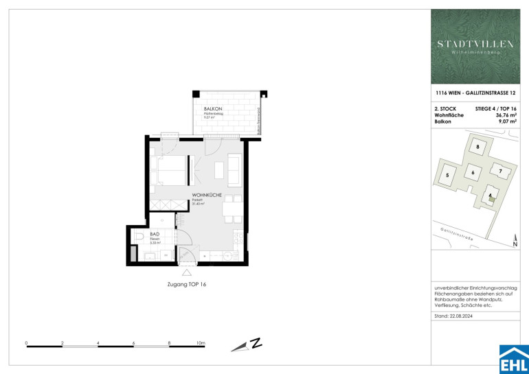
Wohnfläche: 36,76 m²
Zimmer: 1,50
Bäder: 1
WC: 1
Balkone: 1
Heizwärmebedarf:  A  19,70 kWh/m²a
fGEE:  A+  0,66
Immobilie merken Exposé

Ausstattung

Fliesen, Parkett, Ostbalkon, Dusche


Internet und TV

Information zur Internet und TV Versorgung hier


Immobilie anfragen


Ihre persönliche Beratung

EHL Wohnen GmbH

Andrea PÖCHHACKER; MSc

EHL Immobilien GmbH

E a.poechhacker@ehl.at

T +4315127690 DW 411

H +43664 83 73 481