Vollsaniert | Ruhelage | vermietet bis 12/2029 Mietrendite 3,2%
Wohnung
,
1200
Wien
,
Sachsenplatz
Lage der Immobilie
Augarten, SachsenparkBeschreibung der Immobilie
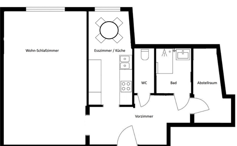
Diese stilvolle Wohnung befindet sich im 5. Liftstock eines gepflegten Gebäudes aus dem Jahr 1976 nahe dem Augarten. Sie bietet eine Wohnfläche von 57 m² und eignet sich ideal für Singles und Paare. Die gesamte Wohnung wurde 2024 umfassend saniert und verfügt über hochwertige Materialien und ein zeitgemäßes Design.
Raumaufteilung und Ausstattung:
Die Wohnung bietet einen offenen Wohn-/Schlafbereich, der vielseitig nutzbar ist und ausreichend Platz für individuelle Einrichtungsmöglichkeiten bietet. Direkt daneben befindet sich das Esszimmer mit einer neuen, modernen Einbauküche*. Diese ist komplett mit AEG-Geräten „Dieter Knoll Design-Edition“ ausgestattet. Das WC ist getrennt vom modernen Wohlfühl-Badezimmer. Dieses überzeugt durch die großzügige Walk-in-Dusche (Artweger Klar-Glaswand mit Artclear-Beschichtung) und stielvolle Fliesen. Sämtliche Sanitärkeramik ist von „Laufen“ und die Armaturen von „Grohe“. Ein großzügiger Abstellraum mit Anschlussmöglichkeiten für Waschmaschine und Trockner sorgt für zusätzlichen Stauraum.
Vermietung:
Die Wohnung ist seit Dezember 2024 mit einer Befristung von 5 Jahren vermietet. (Einzelperson | keine Haustiere | Angestellenverhältnis | angemessenes Einkommen)
Die Jahres-Netto-Miete beträgt aktuell € 10.361,52,- zzgl. BK und USt.
Lage und Infrastuktur:
Die Wohnung liegt in unmittelbarer Nähe zum Augarten und Sachsenpark, die zahlreiche Freizeit- und Erholungsmöglichkeiten bieten. Geschäfte des täglichen Bedarfs, zahlreiche (Fach)Arztpraxen, Apotheken, Restaurants und Cafés sind fußläufig erreichbar, was die Lage besonders attraktiv macht.
Öffentliche Anbindung:
U6 Jägerstraße (5 Minuten Gehzeit)
Straßenbahnlinien: O und 5
Buslinie: 5A
Hinweis:
Die im Foto dargestellten Wohnzimmermöbel sind digitale Visualisierungen und ein Einrichtungsbeispiel. Möbel sind nicht Gegenstand des Kaufobjektes.
Noch nichts gefunden? Wir informieren Sie über geeignete Immobilienangebote noch vor allen anderen.
Legen Sie jetzt Ihren individuellen Suchagenten unter folgendem Link an. Wir schicken Ihnen passende Immobilien exklusiv vorab zu.
Suchagent anlegen - https://accenta-immobilien.service.immo/registrieren/de
Der Vermittler ist als Doppelmakler tätig.
Sie wollen auch Ihre Immobilien Verkaufen oder Vermieten?
Accenta Immobilien - Ihr Partner für Immobilienvermittlung
www.accenta-immo.at
01/997 12 93
Infrastruktur / Entfernungen
Gesundheit
Arzt <250m
Apotheke <250m
Klinik <750m
Krankenhaus <750m
Kinder & Schulen
Schule <250m
Kindergarten <500m
Universität <750m
Höhere Schule <1.000m
Nahversorgung
Supermarkt <250m
Bäckerei <250m
Einkaufszentrum <750m
Sonstige
Geldautomat <500m
Bank <500m
Post <500m
Polizei <250m
Verkehr
Bus <250m
U-Bahn <500m
Straßenbahn <250m
Bahnhof <500m
Autobahnanschluss <1.250m
Angaben Entfernung Luftlinie / Quelle: OpenStreetMap
Eckdaten
| Objektnr: | 10788 |
| Art: | Wohnung |
| Land: | Österreich |
| Baujahr: | 1976 |
| Zustand: | Erstbezug |
| Alter: | Neubau |
| Kaufpreis: | 324.000,00 € |
| Kaufpreis / m²: | auf Anfrage |
| Provision: | 3% des Kaufpreises zzgl. 20% USt. |
| Betriebskosten: | 115,04 € |
| MwSt Gesamt: | 11,50 € |
| Wohnfläche: | 57,00 m² |
| Gesamtfläche: | 57,00 m² |
| Zimmer: | 2 |
| Bäder: | 1 |
| WC: | 1 |
| Keller: | 1,50 m² |
| Heizwärmebedarf: | C 63,69 kWh/m²a |
| fGEE: | C 1,37 |
Ausstattung
Fliesen, Parkett, Zentralheizung, Einbauküche, Personenaufzug, Dusche, Wasch/Trockenraum
Internet und TV
Information zur Internet und TV Versorgung hier
Ihre persönliche Beratung
Michael Riedler
Accenta Immobilien e.U.
michael.riedler@accenta-immo.at
+43 1 997 18 00
+43 699 14228400
F +43 1 997 18 00 – 10
