Ehemaliger Bauernhof mit neuem Einfamilienhaus
Haus
- Einfamilienhaus,
3823
Rossa




















Beschreibung der Immobilie
Zum Verkauf steht ein ehemaliger Bauernhof mit einem 7.461 m² großen Grundstück,
mehreren Wohneinheiten und großzügigen Nebengebäuden sowie einem 2016 neu
errichteten Einfamilienhaus.
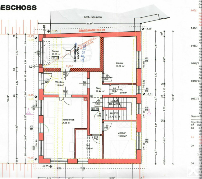
Das neue Einfamilienhaus verfügt im Erdgeschoss über eine Wohnfläche von ca. 87 m². Diese unterteilt sich in einen Vorraum, einen ca. 25 m² großen Wohn-/Essbereich
mit Ausgang auf die Terrasse, ein Bad, ein WC und zwei Zimmer. Im selben Geschoss steht auch noch eine Garage mit ca. 19 m² zur Verfügung.
Der ca. 100 m² große, zum Ausbau vorbereitete, Dachboden eignet sich bestens zur
Wohnraumerweiterung.
Im Kellergeschoss stehen ein Vorraum, ein Technikraum, eine ca. 38 m² große Garage sowie eine ca. 49 m² große Werkstatt zur Benutzung bereit.
Ein öffentlicher Stromanschluss und die eigene 10 kWp-Photovoltaikanlage sorgen für die Stromversorgung. Das Wasser kommt aus dem eigenen Brunnen. Die Abwasserentsorgung erfolgt über eine Abwassergenossenschaft.
Die Beheizung des neuen Hauses erfolgt mittels einer Erdwärme-Zentralheizung, die
des Altbestandes mit einer Holz-Stückgut-Heizung.
Das ehemalige Hauptwohnhaus mit einer ca. 80 m² großen Nutzfläche gliedert sich in
einen Vorraum, eine Wohnküche, zwei Zimmer und ein Bad mit Badewanne und WC.
Das ehemalige Ausgedinge mit einer Nutzfläche von ca. 80 m² unterteilt sich in einen Vorraum, eine Küche, ein Wohnzimmer, ein Schlafzimmer und einen Sanitärbereich. Die großen Nebengebäude rund um den Innenhof des Gebäudes sowie eine ca. 200 m² große Scheune im Garten der Liegenschaft runden dieses tolle Angebot ab.
Für weitere Fragen sowie Besichtigungswünsche stehen wir Ihnen gerne zur Verfügung.
Eckdaten
Objektnr: | 0002000257 |
Art: | Haus - Einfamilienhaus |
Land: | Österreich |
Baujahr: | 2016 EFH |
Möbliert: | Teil |
Kaufpreis: | 350.000,00 € |
Provision: | 3% des Kaufpreises plus 20% USt. |
Wohnfläche: | 87,00 m² |
Grundstücksfl.: | 7.461,00 m² |
Zimmer: | 2 |
Bäder: | 1 |
WC: | 1 |
Terrassen: | 1 |
Heizwärmebedarf: | C 62,00 kWh/m²a |
fGEE: | A 0,78 |
Ausstattung
Erdwärme, Zentralheizung, Wohnküche / offene Küche
Internet und TV
Information zur Internet und TV Versorgung hier
Ihre persönliche Beratung

Ferdinand Schönfelder
Waldviertel Immobilien Vermittlung
E ferdinand.schoenfelder@w-i-v.at
T +43 2822 52681
H +43 664 432 11 14