Immobilie merken

Blick zum Attersee

Wohnung , 4864 Attersee am Attersee

Beschreibung der Immobilie

In absoluter Ruhelage, nur wenige Minuten vom Ufer des Attersees entfernt, befindet sich diese außergewöhnliche Dachgeschosswohnung im malerischen Ortsteil Palmsdorf. Die erhöhte Position ermöglicht einen beeindruckenden Panoramablick auf den Attersee sowie das umliegende Alpenvorland – ein Ort, an dem Wohnen zur Lebensqualität wird.

Wohnen mit Niveau – Rückzugsort inklusive

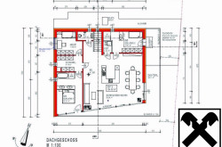
Diese exklusive Wohnung mit rund 134 m² Wohnfläche besticht durch ihre durchdachte Raumaufteilung, hochwertige Ausstattung und eine spektakuläre Aussicht auf den Attersee und die umliegende Berglandschaft. Der Zugang zur Wohnung erfolgt über das Erdgeschoss, von dem aus eine Treppe direkt ins Dachgeschoss führt. Dort eröffnet sich ein großzügiger, lichtdurchfluteter Wohn-/Ess-/Kochbereich mit direktem Zugang zur großen Terrasse – dem Herzstück der Wohnung und perfekter Ort für entspannte Stunden mit Fernblick. Zwei Schlafzimmer, jeweils mit eigenem Badezimmer, bieten privaten Rückzugsraum. Ergänzt wird das Raumangebot durch ein separates Arbeitszimmer, einen geräumigen Schrankraum sowie ein Gäste-WC. Die hochwertige Ausstattung der Wohnung zeigt sich unter anderem in den großzügigen Fensterflächen, die für viel Tageslicht sorgen, sowie in der offenen Bauweise, die modernes Wohnen auf hohem Niveau ermöglicht. Die Terrasse mit traumhaftem Ausblick rundet das Gesamtbild perfekt ab und unterstreicht den exklusiven Charakter dieser Immobilie.

Ausstattung und Extras

Zur Wohnung gehören insgesamt drei Kfz-Abstellplätze: ein Carport, ein offener Garagenplatz sowie ein zusätzlicher Freistellplatz – somit ist ausreichend Platz für Fahrzeuge oder Gäste gewährleistet. Ein eigenes Kellerabteil bietet zusätzlichen Stauraum.

Lebensqualität am Attersee

Der Attersee gilt als einer der schönsten Seen Österreichs – glasklar, naturbelassen und eingebettet in die beeindruckende Landschaft des Salzkammerguts. Ob Segeln, Schwimmen oder Wandern im Sommer, oder Skifahren und Schneeschuhwandern im Winter – die Region bietet Ganzjahresqualität auf höchstem Niveau. Kulinarische Vielfalt und kulturelle Angebote machen das Umfeld zusätzlich attraktiv.

Erleben Sie die Immobilie online

Virtueller Rundgang: https://tour.ogulo.com/U6S2

Drohnenflug: https://youtu.be/epUCtd5eKHI

Hauptwohnsitzpflicht

Bitte beachten Sie, dass in der Gemeinde Attersee am Attersee die Verpflichtung zur Begründung eines Hauptwohnsitzes besteht.

Eckdaten

Kaufpreis: 1.230.000,00 €
Fläche: 134,00 m²
Zimmer: 4

Basisdaten zur Immobilie

Objektnr: 0004004685
Art: Wohnung
Land: Österreich
Baujahr: 2024
Kaufpreis: 1.230.000,00
Wohnfläche: 134,00 m²
Zimmer: 4
Bäder: 2
WC: 1
Terrassen: 1
Keller: 5,70 m²
Heizwärmebedarf:  B  29,40 kWh/m²a
fGEE:  A+  0,68

Ausstattung

Zentralheizung



Internet und TV

Information zur Internet und TV Versorgung hier




Immobilie anfragen




Ihre persönliche Beratung

Real-Treuhand Immobilien Vertriebs GmbH

Joachim Plasser

Real-Treuhand Immobilien

plasser@raiffeisen-immobilien.at

+43 50 6596 8002

+43 676 8142 82856