Terrassenwohnung Nähe LKH
Wohnung
,
8010
Graz,
Beschreibung der Immobilie
Kellerabteil und Tiefgaragenstellplatz inklusive.
Tolle Lage nähe LKH, 200m MedUni, KF-UNI ca. 2,5 km entfernt.
Eckdaten
| Gesamtmiete: | 779,01 € |
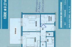
| Fläche: | 51,27 m² |
| Zimmer: | 2 |
Basisdaten zur Immobilie
| Objektnr: | O2100162808 |
| Art: | Wohnung |
| Land: | Österreich |
| Zustand: | Neuwertig |
| Gesamtmiete: | 779,01 € |
| Kaltmiete (netto): | 532,85 € |
| Kaltmiete: | 708,19 € |
| Provision: | provisionsfrei EUR |
| Betriebskosten: | 175,34 € |
| Wohnfläche: | 51,27 m² |
| Gesamtfläche: | 51,27 m² |
| Zimmer: | 2 |
| Bäder: | 1 |
| Stellplätze: | 1 |
| Heizwärmebedarf: | B 48,83 kWh/m²a |
Ausstattung
Zentralheizung, Einbauküche, Personenaufzug, Badewanne, Kabel/Satelliten-TV, Tiefgarage
Internet und TV
Information zur Internet und TV Versorgung hier
Ihre persönliche Beratung
Dipl. FW Hilde Papst
Papst Immobilien GmbH
office@papst-immo.at
0660/4683084
