Lage der Immobilie
Im Zentrum und doch in der Natur – an der Littastraße 12 in Götzis genießen Sie das Beste aus beiden Welten. Nur 5 Gehminuten vom Garnmarkt entfernt, bieten die Wohnungen urbanen Komfort und naturnahe Erholung. Perfekt für Naturfreunde, mit exzellenter Verkehrsanbindung und vielfältigen Freizeitmöglichkeiten direkt vor der Haustür. Für Familien bietet die Umgebung zahlreiche Freizeitmöglichkeiten und Spielplätze. Einkaufsmöglichkeiten, Cafés und Restaurants sind bequem zu Fuß erreichbar. Die Anbindung an Autobahn und Bahnhof ermöglicht schnelle und einfache Reisen. Willkommen in Ihrem neuen Wohnparadies!Beschreibung der Immobilie
Es geht los -> Baustart erfolgt
Wohnbauförderung möglich!
Willkommen im exklusiven Wohnparadies – Ihr neues Zuhause in Götzis, Littastraße 12!
Ihr Traum von Stadtrandidylle und urbanem Komfort wird Wirklichkeit.
Diese einzigartige Wohnanlage bietet Ihnen die perfekte Symbiose aus modernem Wohnen und malerischer Natur. Mit insgesamt 17 hochwertig ausgestatteten Wohnungen in zwei Baukörpern (Haus A & B) ist diese Immobilie nicht nur ein Ort zum Leben, sondern ein Ort zum Träumen.
Vielfalt und Exklusivität – Ihr neues Zuhause.
Mit 1 - 4 Zimmerwohnungen, von ca. 28 m² bis 86 m² Wohnfläche, erwartet Sie hier ein vielseitiges Angebot, das jedem Bedürfnis gerecht wird. Jede Wohnung ist sorgfältig geplant und hochwertig ausgestattet, um Ihren Wohnkomfort zu maximieren.
Nachhaltigkeit und Effizienz – Ihr Wohnkomfort.
Diese Wohnanlage wird mit einer Photovoltaikanlage und einem Nahwärme-Heizsystem ausgestattet, um Ihnen nicht nur ein behagliches, sondern auch ein ökologisch verantwortungsbewusstes Zuhause zu bieten. Hier sparen Sie nicht nur Energie, sondern auch Kosten. Die barrierefreien Personenaufzüge in beiden Gebäuden sorgen für Bequemlichkeit und uneingeschränkte Zugänglichkeit.
Fliesenduschen: im Standard inkludiert.
Komfort und Sicherheit – Ihr Parkplatz.
In der gemeinsamen Tiefgarage finden Sie Stellplätze für 17 KFZ und 8 Motorräder. Darüber hinaus stehen 6 Besucherparkplätze zur Verfügung. Ein elektrisches Garagentor bietet Sicherheit und Komfort. Bei Bedarf und Absprache ist die Installation einer E-Ladestation möglich. Einlagerungsräume, Fahrradräume, Haustechnikräume, Müllräume sowie Fahrradabstellflächen im Erdgeschoss und Untergeschoss ergänzen das umfassende Angebot.
Unsere Vision ist Ihre Realität - Sonderwünsche noch leicht umsetzbar.
In dieser Phase haben Sie die seltene Gelegenheit, aktiv an der Gestaltung Ihres künftigen Zuhauses teilzunehmen. Gemeinsam mit unserem erfahrenen Team können Sie Sonderwünsche und Anpassungen einbringen, um sicherzustellen, dass Ihr neues Zuhause Ihren ganz persönlichen Lebensstil widerspiegelt.
Sichern Sie sich jetzt Ihr Stück Wohnparadies!
Der Vorverkauf hat bereits begonnen. Warten Sie nicht zu lange, um sich Ihr Traumdomizil zu sichern.
Erleben Sie das Beste aus Stadt und Natur – vereinen Sie beides in Ihrem neuen Zuhause! Ihr Glück beginnt hier.
Die Zukunft des Wohnens - heute erleben.
Unsere Angaben beziehen sich auf die Auskünfte des Eigentümers. Irrtum und Änderungen vorbehalten.
Folgen Sie dem nachfolgenden Link für weitere Informationen zu den restlichen verfügbaren Wohnungen:
Tolles Zuhause in Götzis - Erstbezug! / Baustart erfolgt!
Noch nichts gefunden? Wir informieren Sie über geeignete Immobilienangebote noch vor allen anderen.
Legen Sie jetzt kostenlos Ihren individuellen Suchagenten unter folgendem Link an. Wir schicken Ihnen passende Immobilien exklusiv vorab zu.
Suchagent anlegen
Wir weisen darauf hin, dass zwischen dem Vermittler und dem zu vermittelnden Dritten ein familiäres oder wirtschaftliches Naheverhältnis besteht.
Infrastruktur / Entfernungen
Gesundheit
Arzt <275m
Apotheke <575m
Krankenhaus <3.800m
Kinder & Schulen
Schule <350m
Kindergarten <325m
Höhere Schule <350m
Nahversorgung
Supermarkt <350m
Bäckerei <400m
Einkaufszentrum <4.700m
Sonstige
Bank <225m
Geldautomat <225m
Post <1.025m
Polizei <400m
Verkehr
Bus <150m
Autobahnanschluss <2.000m
Bahnhof <1.100m
Flughafen <6.550m
Angaben Entfernung Luftlinie / Quelle: OpenStreetMap
Eckdaten
| Kaufpreis: | 363.000,00 € |
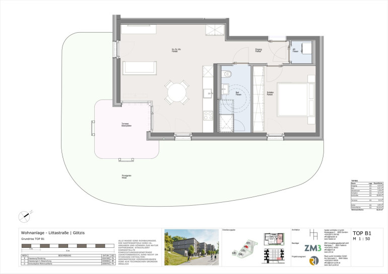
| Fläche: | 52,31 m² |
| Zimmer: | 2 |
Basisdaten zur Immobilie
| Objektnr: | 5681/418 |
| Art: | Wohnung |
| Land: | Österreich |
| Baujahr: | 2025 |
| Zustand: | Erstbezug |
| Alter: | Neubau |
| Kaufpreis: | 363.000,00 € |
| Kaufpreis / m²: | auf Anfrage |
| Wohnfläche: | 52,31 m² |
| Zimmer: | 2 |
| Bäder: | 1 |
| WC: | 1 |
| Terrassen: | 1 |
| Stellplätze: | 1 |
| Garten: | 53,33 m² |
| Keller: | 4,85 m² |
| Heizwärmebedarf: | B 30,00 kWh/m²a |
| fGEE: | A+ 0,62 |
Ausstattung
Parkett, Fliesen, Solarenergie, Fußbodenheizung, Wohnküche / offene Küche, Personenaufzug, Südbalkon, Dusche, Kabel/Satelliten-TV, Tiefgarage
Internet und TV
Information zur Internet und TV Versorgung hier
Ihre persönliche Beratung
Mag. Daniel Ströhle
Rimo Immobilien GmbH
info@rimo.at
+43 5522 39303 21
