*Provisionsfrei* Neubauwohnung beim Freizeitparadies "alte Donau" 2- Zimmerwohnung mit Terrasse und Balkon, inklusive Küche

Wohnung - Etage, 1220 Wien

Lage der Immobilie

Lage: Das Projekt befindet sich nur 3 Gehminuten von der alten Donau entfernt. Hier finden Sie ein umfangreiches Angebot an Freizeitaktivitäten sowie eine Vielzahl an kulinarischen Angeboten direkt am Wasser. Öffentliche Verkehrsanbindung: Linie U1 Station Donauzentrum, fußläufig in 10 Minuten erreichbar Straßenbahnlinie 25 Buslinie 93 A

Beschreibung der Immobilie

Wohnen beim Freizeitparadies „Alte Donau“ Nur 170 Meter von der alten Donau entfernt, entsteht ein neues Wohnbauprojekt auf Baurechtsgrund. Mit einer Vielzahl an verschiedenen Grundrissen und Wohnungsgrößen ist für jeden Bedarf das passende Angebot dabei. Die Fertigstellung erfolgt im Frühjahr 2025. Das Projekt umfasst insgesamt 19 Wohneinheiten mit 2 bis 3 Zimmer, aufgeteilt auf 4 Ebenen, wovon jede einzelne über ausreichend Freiflächen verfügt. (Garten, Terrasse, Balkon oder Loggia) Die Wohnungsgrößen belaufen sich auf 36m² bis 81m². Ausstattung: 3- fach verglaste Kunststoff- Alufenster Elektr. bedienbare Raffstores Parkettböden in den Wohnräumen Keramischer Fliesenboden (30x60cm) in Badezimmer und WC Handtuchwärmer Luftwärmepumpe inkl. Kühlfunktion durch Photovoltaik unterstützt Fußbodenheizung Ein Tiefgaragenplatz im Haus kann zusätzlich erworben werden. Kostenpunkt: 25.000.- E- Lademöglichkeit vorbereitet Jeder Wohnung ist ein Kellerabteil zugeordnet Der Baurechtsvertrag mit dem Stift Klosterneuburg ist auf 99 Jahre abgeschlossen und läuft bis zum Jahr 2120. Der monatliche Baurechtszins beläuft sich auf ca. 1,40.-/m² Nutzfläche.

Eckdaten

Objektnr: 127882_18
Art: Wohnung - Etage
Land: Österreich
Baujahr: 2024
Zustand: Erstbezug
Kaufpreis: 339.000,00
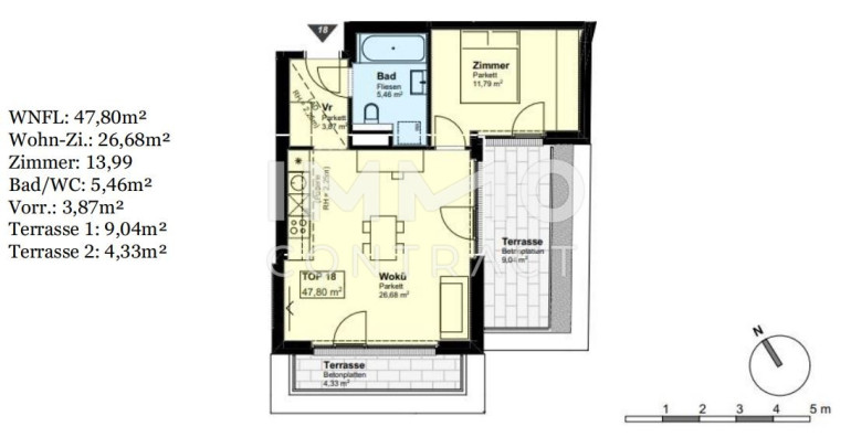
Wohnfläche: 47,80 m²
Zimmer: 2
Terrassen: 1
Heizwärmebedarf:  B  27,30 kWh/m²a
fGEE:  A+  0,68
Immobilie merken Exposé

Ausstattung

Fußbodenheizung


Internet und TV

Information zur Internet und TV Versorgung hier


Immobilie anfragen


Ihre persönliche Beratung

IMMOcontract Immobilien Vermittlung GmbH

Martin Steininger

IMMOcontract Immobilien Vermittlung GmbH

E M.Steininger@IMMOcontract.at

T 0043676841420562

H 0043676841420562