"Das Regenerationshaus" - STOCKHAUS - individuell planbar - Neubauprojekt

Haus - Einfamilienhaus, 7021 Draßburg

Beschreibung der Immobilie

"Das Regenerationshaus" - erfüllen Sie sich Ihren Traum eines Niedrigenergie-Stockhauses!

In der idyllischen Naturparkgemeine Draßburg werden belagsfertige Stockhäuser errichtet.

Ihr Stockhaus kann auch individuell geplant werden!

"Das HammaHaus":
> ist ein mit viel Herz & Hirn geplantes Massivhaus oder Holz-Hybridmassiv-Haus
> ist ein Niedrigenergiehaus

Eckdaten pro Stockhaus:
> Zur Auswahl stehen Grundstücksflächen - von 631 m² bis 762 m²
> Zur Auswahl stehen Wohnflächen - von 100 m² bis 150 m²
> Preis ab € 350.720,-- inkl. Grundstück
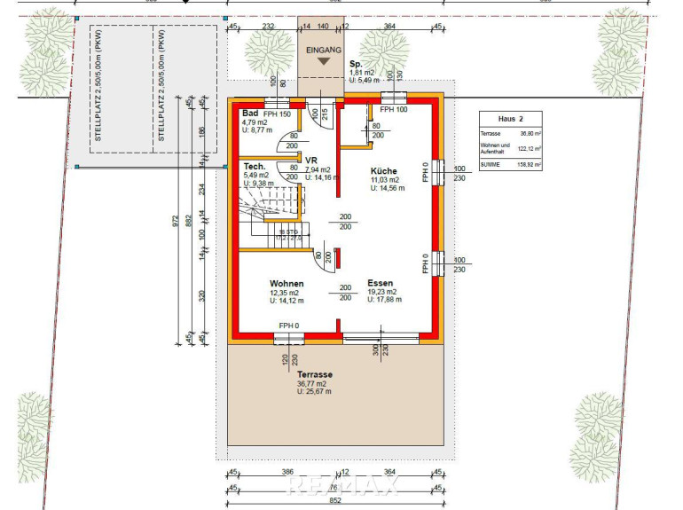
> EG: Vorraum, Küche mit Essbereich, Wohnzimmer, Bad mit WC, Technik
> OG: Gang, 3 Zimmer, Bad mit WC, Balkon
> Massivbauweise oder Holz-Hybridmassiv Bauweise
> belagsfertig
> auf Wunsch kann es auch schlüsselfertig ausgeführt werden
> Luftwärmepumpe
> Fußbodenheizung

Lage:
> Geschäft täglichen Bedarfs, Arzt, Zahnarzt, Tierarzt - fußläufig erreichbar
> Kindergarten, Volksschule – fußläufig erreichbar
> Mattersburg und Eisenstadt - in wenigen Autominuten erreichbar
> Bahnhof - fußläufig erreichbar
> direkte Zugverbindung nach Wien - für Wien-Pendler ideal
> Stadtgrenze von Wien – mit dem Auto in ca. 30 min erreichbar
> Naherholungsgebiet – vor der Haustüre

Bezüglich genauerer Detailinformationen freuen wir uns auf Ihre Anfrage.

Der Erwerb des Objektes ist auch als Anlageobjekt möglich.
Dazu bieten wir das Rundum-Servicepakete für Anleger:
Sie möchten die Immobilie erwerben und mit der Vermietung sowie den Mietabrechnungen und eventuellen Fragen während des Mietverhältnisses nicht beschäftigt sein? Wir bieten verschiedene und maßgeschneiderte Konzepte rund um unser Dienstleistungsprogramm »sorgenfrei vermieten«.

Finanzierung: Gerne kümmern wir uns um Ihre Finanzierung. Unsere Finanzexperten arbeiten mit verschiedenen Banken und können für Sie daher unverbindliche Angebote vorbereiten. Sprechen Sie Ihren Makler/in aktiv an.

Die Angaben zum Objekt basieren auf uns zur Verfügung gestellten Informationen.
Eine Haftung unsererseits ist hierfür ausgeschlossen. Detailfragen werden im Zuge von Besichtigungen besprochen, geklärt oder nachgereicht.
Wir bitten um Verständnis, dass wir aufgrund der Nachweispflicht gegenüber dem Eigentümer, nur Anfragen mit vollständigen Kontaktdaten (Name, Anschrift, Tel.-Nr., E-Mail) beantworten können.
Wir informieren Sie darüber, dass wir bei diesem Objekt eine Doppelmaklertätigkeit ausüben. (§ 5 Abs. 3 MaklerG)
Dieses Angebot ist unverbindlich und einer Zwischenverwertung vorbehalten.

Nebenkosten Kaufvertrag:
3 % vom Kaufpreis Provision zzgl. Mwst.
3,5 % Grunderwerbsteuer
1,1 % Grundbuchseintragungsgebühr
Kaufvertragserrichtung und Treuhandschaft lt. Tarifordnung des Vertragserrichters

Eckdaten

Objektnr: 3827_195
Art: Haus - Einfamilienhaus
Land: Österreich
Alter: Neubau
Kaufpreis: 350.720,00
Provision: 3.00 %
Wohnfläche: 100,00 m²
Grundstücksfl.: 631,00 m²
Zimmer: 4
Bäder: 1
WC: 1
Terrassen: 1
Immobilie merken Exposé

Internet und TV

Information zur Internet und TV Versorgung hier


Immobilie anfragen


Ihre persönliche Beratung

RE/MAX Harmony

Franz Wukovits

RE/MAX Harmony

E office@remax-harmony.at

T +43 2635 66 461461

H +43 676 32 38 430