"Geschäftsfläche in frequentierter Lage - gut sichtbar - vielseitig nutzbar"

Einzelhandel - Ladenlokal, 8712 Niklasdorf

Beschreibung der Immobilie

Die zu vermietende Geschäftsfläche befindet sich im Erdgeschoss eines zweistöckigen Geschäftshauses direkt an der stark frequentierten Leobner Straße (B116) in der Marktgemeinde Niklasdorf und ist somit gut für Interessenten und Kunden erreichbar.
Der ebenerdige Eingang der Geschäftsfläche ist südlich ausgerichtet und ermöglicht einen stufenlosen Zugang für Kunden sowie mühelose Anlieferung von Waren.

Gesamtmiete: € 746,14 (Nettomiete € 495,-- + BK € 76,78 + HK € 50,-- + 20 % USt. € 124,36)

Kaution: 3 Bruttomonatsmieten

In unmittelbarer Nähe der Geschäftsfläche befinden sich mehrere Frequenzbringer:
- Bahnhof Niklasdorf (ca. 300 m entfernt)
- Autobushaltestelle (direkt vor der Geschäftsfläche)
- Autobahnabfahrt Niklasdorf (ca. 1 km entfernt)
- Autobahnabfahrt Leoben Ost (ca 2,7 km entfernt)
- Tabak Trafik (direkt gegenüber)
- Apotheke
- Bäckerei
- Div. Lebensmittelgeschäfte (z.B. Billa, Penny)
- Div. Autohäuser und KFZ-Werkstätten
- Gastronomiebetriebe
- Brigl und Bergmeister GmbH (Papierfabrik)
- Aurena GmbH, Auktionen
- Veranstaltungszentrum Niklasdorf
- Volksschule Niklasdorf
- Kindergarten Niklasdorf
- Raiffeisenbank Leoben-Bruck, Bankstelle Niklasdorf
- Gemeindeamt Niklasdorf, fungiert gleichzeitig als Post Partner

Bitte beachten Sie, dass wir aufgrund unserer Nachweispflicht dem Abgeber gegenüber nur Anfragen beantworten können, die Ihren Namen, die vollständige Adresse, eine E-Mail-Adresse und eine Telefonnummer enthalten.

Gerne stehe ich Ihnen für eine Besichtigung vor Ort oder Fragen zur Verfügung.
Ich freue mich auf Ihren Anruf!
Angaben gemäß gesetzlichem Erfordernis:
Miete 495 zzgl 20% USt.
Betriebskosten 76,78 zzgl 20% USt.
Heizkosten 50 zzgl 20% USt.
Umsatzsteuer 124,36
------------------------------------------------------------------
Gesamtbetrag 746,14
------------------------------------------------------------------
Heizwärmebedarf:85.0 kWh/(m²a)
Klasse Heizwärmebedarf:C
Faktor Gesamtenergieeffizienz:2.37
Klasse Faktor Gesamtenergieeffizienz:D

Eckdaten

Objektnr: 3819_42
Art: Einzelhandel - Ladenlokal
Land: Österreich
Baujahr: 1903
Zustand: Gepflegt
Alter: Altbau
Gesamtmiete: 746,14
Kaltmiete (netto): 495,00 €
Kaltmiete: 571,78 €
Provision: 3.00 MM
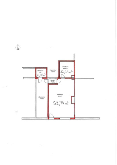
Nutzfläche: 70,44 m²
Verkaufsfläche: 70,44 m²
WC: 1
Heizwärmebedarf:  C  85,00 kWh/m²a
fGEE:  D  2,37
Immobilie merken Exposé

Internet und TV

Information zur Internet und TV Versorgung hier


Immobilie anfragen


Ihre persönliche Beratung

Wolfgang Wilding

RE/MAX Tradition

E w.wilding@remax-tradition.at

H +436643951740