Perfekte Residenz mit großem Garten und Sonnenterrasse an der Alten Donau

Wohnung - Etage, 1220 Wien

Beschreibung der Immobilie

Perfekte Residenz mit großem Garten und Sonnenterrasse an der Alten Donau
Diese exklusive Wohnung bietet eine unschlagbare Lage an der Alten Donau und vereint urbanen Komfort mit naturnahem Wohnen. In unmittelbarer Nähe zum Donau Zentrum und der U-Bahnstation Kagran U1, erstreckt sich das hochwertige Neubauprojekt auf einem Baurechtsgrund und eröffnet ein Leben voller Luxus, Bequemlichkeit und Erholung inmitten von Wien.

Modernes Wohnambiente mit durchdachtem Design
Die Wohnanlage in der Argonautenstraße präsentiert eine Auswahl an raffinierten Wohnungen, die mit Balkonen, Terrassen oder Gärten ein zeitgemäßes und trendiges Wohngefühl vermitteln. Diese besondere Wohnung zeichnet sich durch einen großzügigen Privatgarten von ca. 18,82 m² und eine sonnige Terrasse von ca. 23 m² aus, die nach Südwesten ausgerichtet sind und ganztägig von reichlich Sonnenlicht durchflutet werden.

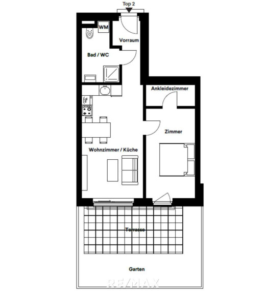
Der Grundriss der Wohnung ist durchdacht gestaltet und umfasst einen Eingangsbereich, ein geräumiges Wohnzimmer mit offener Küche, zwei Schlafzimmer, einen begehbaren Kleiderschrank, ein Badezimmer und eine separate Toilette. Bodentiefe Fenster sorgen nicht nur für Helligkeit, sondern bieten auch einen herrlichen Blick auf den eigenen Garten.

Hochwertige Ausstattung und effiziente Technologie
Nur erstklassige Materialien werden verwendet, darunter Parkettböden aus gebürsteter Eiche, Feinsteinzeug in Bad und WC sowie Armaturen von renommierten Herstellern. Eine hocheffiziente Luftwärmepumpe und der Niedrigenergiehausstandard gewährleisten optimale Wohnbedingungen für die Zukunft.

Preis für Eigennutzer bzw. Käufer ohne Vorsteuerabzug: € 419.000,-
Nettokaufpreis, wenn Erwerb mit 20% USt: € 395.000,-
Provisionsfrei für den Käufer, der Abgeber zahlt die Käuferprovision!


Sichere Investition dank Baurecht
Das Baurecht wird vom Stift Klosterneuburg gewährt, was für 900 Jahre Kontinuität und Stabilität steht. Die Baurechtsverträge werden auf maximal 100 Jahre abgeschlossen, mit der Option zur Verlängerung. Der monatliche Baurechtszins beträgt € 133,09. Diese Form des Eigentums bietet auch steuerliche Vorteile und stellt eine langfristige und sichere Investitionsmöglichkeit dar.

Sehen Sie dieses Erklärungsvideo zum Baurecht an: https://youtu.be/j2VXcYCdTrc

Attraktive Vorsorgewohnung mit Wertsteigerungspotenzial
Die Eigentumswohnungen eignen sich ideal als Vorsorgewohnungen und versprechen eine optimale Wertentwicklung. Die Zusammenarbeit mit bewährten Firmen in Planung und Bau garantiert eine qualitativ hochwertige Umsetzung ohne Unterbrechungen.

Die Maklerin/Der Makler hat ein wirtschaftliches Interesse am Auftraggeber und übt eine Doppelmaklertätigkeit aus.


Finanzierung
Dank unserer exzellenten Beziehungen zu über 130 Banken in Österreich und Deutschland bieten wir unseren Kunden die besten Kreditlösungen auf dem Markt.

Suchen Sie nach einer Wohnung in Top-Lage?
Vereinbaren Sie noch heute einen Besichtigungstermin und entdecken Sie diese exklusive Residenz mit großem Garten und sonniger Terrasse an der Alten Donau!
Angaben gemäß gesetzlichem Erfordernis:
Heizwärmebedarf:36.1 kWh/(m²a)
Klasse Heizwärmebedarf:B
Faktor Gesamtenergieeffizienz:0.71
Klasse Faktor Gesamtenergieeffizienz:A

Eckdaten

Objektnr: 3801_869
Art: Wohnung - Etage
Land: Österreich
Baujahr: ca. 2024
Zustand: Erstbezug
Kaufpreis: 419.000,00
Wohnfläche: 50,43 m²
Zimmer: 2
Bäder: 1
WC: 1
Terrassen: 1
Garten: 18,82 m²
Keller: 1,00 m²
Heizwärmebedarf:  B  36,10 kWh/m²a
fGEE:  A  0,71
Immobilie merken Exposé

Ausstattung

Erdwärme, Zentralheizung


Internet und TV

Information zur Internet und TV Versorgung hier


Immobilie anfragen


Ihre persönliche Beratung

RE/MAX Together

Mag. Gudrun Pehn-Mungenast

RE/MAX Together

E gudrun.pehn-mungenast@remax-together.at

H +43 660 913 06 94