4-Zimmer-Wohnung in Jedlesee nahe Donau | Fertiggestellt

Wohnung - Etage, 1210 Wien

Beschreibung der Immobilie

Perfekte Residenz mit großem Garten oder Sonnenterrasse an der Neuen Donau! Fertigstellung im Sommer 2025!
Die ruhige, grüne Lage und die gute Nachbarschaft machen dieses Projekt zu etwas ganz Besonderem, ideal zum Entspannen und Genießen der frischen Luft. Lassen Sie sich diese Gelegenheit nicht entgehen, eine moderne und komfortable Wohnung in einer so idyllischen Lage zu erwerben!

Projekt
Hier finden Sie alle verfügbaren Wohnungen im Projekt: https://www.remax.at/de/pr-gartentraum-audorfgasse30. Das Projekt befindet sich in Jedlesee im 21. Bezirk und glänzt durch seine absolute Ruhelage mitten im Grünen. Es handelt sich um einen Baurechtsgrund des Stifts Klosterneuburg mit einem 100-jährigen Vertrag. Gebaut wird eine viergeschossige Wohnhausanlage mit 20 Wohnungen und 15 PKW-Tiefgaragenplätzen in Massivbauweise. Die Fertigstellung ist für Sommer 2025 vorgesehen.

Im Erdgeschoss befindet sich ein Kinderwagenabstellraum, mehrere Abstellplätze für Fahrräder und ein Kleinkinderspielplatz. Über ein zentrales Stiegenhaus mit Aufzug sind sämtliche Geschosse barrierefrei erreichbar. Die Wohneinheiten im Erdgeschoss verfügen über einen Eigengarten. In den anderen Geschossen verfügen alle Wohnungen über Freiflächen (Balkon, Terrasse oder Loggia). Raumhohe Verglasungen sorgen für lichtdurchflutete Räume. Zwei nebeneinanderliegende Wohnungen können leicht zusammengelegt werden. Ein entsprechender Durchgang ist schon vorbereitet.

Dem Grundstück zugeordnet ist außerdem ein ca. 750 m² großer Bereich Grünland, der den Bewohnern zur privaten Nutzung vorbehalten ist. In diesem Grünstreifen können Gartenanteile optional gemietet werden. Eine energieeffiziente Gebäudehülle und der Einsatz effizienter Haustechnikkomponenten wie Wärmepumpen sowie die Berücksichtigung ökologischer Aspekte schonen die Umwelt, sorgen für angenehmes Raumklima und sparen Betriebskosten.

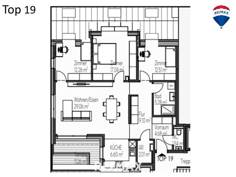
Wohnung Top 19
Diese Wohnung ist in diesem Projekt ein Unikat. Die eröffnet sich ein wunderschöner Panoramablick. Sobald Sie diese Wohnung betreten, werden Sie ihre Exklusivität spüren. Diese wunderschöne ca. 100,08 m² große 4-Zimmer-Wohnung befindet sich im Dachgeschoss und bietet eine perfekte Kombination aus Komfort und Natur. Die Wohnung ist nach Nordwesten ausgerichtet. Die Wohnfläche umfasst eine geräumige Wohnküche mit 29,06 m² sowie drei gemütliche Schlafzimmer mit 12,26 m², 17,04 m² und 12,51 m².

Lage
In der Umgebung befinden sich mehrere Parkanlagen und Erholungsgebiete (Aupark, Lorettowiese, Donauinsel, Marchfeldkanal), die ideal für Spaziergänge und Fahrradrunden sind. An der Prager Straße sind Supermärkte wie Eurospar, Hofer und Billa zu finden. In unmittelbarer Nähe finden Familien mit Kindern ein breites Angebot an Schulen, Kindergärten und Spielplätzen. Die Einkaufszentren Donauzentrum und Shoppingcenter Nord (SCN) bieten umfangreiche Einkaufsmöglichkeiten sowie Freizeit-, Gesundheits- und Bildungseinrichtungen.

Verkehrsanbindung
In unter 3 Minuten erreicht man mit dem Auto die A22-Donauuferautobahn. Das öffentliche Verkehrsnetz bietet viele Möglichkeiten:
- In 3-5 Minuten zu Fuß erreichbar ist die Buslinie 34A, Station Jedleseer Friedhof. Von dort aus erreicht man in unter 10 Minuten den Bahnhof Floridsdorf.
- In 6-8 Minuten zu Fuß erreichbar ist die Straßenbahnlinie 26, Station Winkeläckerstraße. Von dort aus erreicht man ebenfalls den Bahnhof Floridsdorf in unter 10 Minuten und die U1 Kagran sowie das Donauzentrum in unter 20 Minuten.
- Der Bahnhof Floridsdorf hat ein großes Angebot an Anschlussmöglichkeiten: U6, S-Bahn, Busse und Straßenbahnen.

Baurechtsgrund
Angesichts stark steigender Grundstückspreise werden Einfamilienhäuser und Wohnanlagen oft auf fremden Gründen errichtet. Unter Baurecht versteht man in Österreich das spezielle Recht zur Bebauung eines fremden Grundstücks. Der Grundbesitzer bleibt dabei Eigentümer der Liegenschaft und vergibt an den Bauherrn für mehrere Jahrzehnte das Baurecht. Dieses wird im Grundbuch vermerkt und ist belehn-, verkauf- und vererbbar. Durch das Baurechtsmodell können Anschaffungskosten und somit der Eigenmittelaufwand spürbar gesenkt werden. In diesem Projekt ist ein Baurechtsvertrag mit dem Stift Klosterneuburg auf 100 Jahre abgeschlossen. Die Bauzins beträgt aktuell nur € 1,45/m² pro Monat. Sehen Sie sich dieses Erklärungsvideo dazu an: https://youtu.be/j2VXcYCdTrc

Gute Gründe für das Baurecht:
- Wegfall des Grundstückerwerbs und somit geringere Anschaffungskosten. Dies führt zu einer Reduktion des Eigenkapitalanteils sowie etwaiger Finanzierungskosten.
- Stift Klosterneuburg als institutioneller Vertragspartner bietet Sicherheit und Kontinuität.
- Sie können die Baurechtswohnung wie ein Eigentümer nutzen (verkaufen, vermieten und belasten).
- Ihre Rechte sind auch bei Vererbung gesichert.
- Eine Kündigung während der Laufzeit ist nicht möglich.
- Für Käufer von Vorsorgewohnungen bringt das Baurecht einen weiteren Kostenvorteil. Da beim Kauf einer Baurechtswohnung der Grund nicht erworben wird, können diese zu 100% abgeschrieben werden, gegenüber lediglich 60% bei klassischen Vorsorgewohnungen. Weiterhin kann der Baurechtszins in der Vermietung als Aufwand abgeschrieben werden.

Kaufpreis und Kaufnebenkosten
Die Kaufpreise gelten für die belagsfertige Ausführung. Die angegebenen Preise der TOP 4 und Top 13 sind bereits für schlüsselfertige Ausführung. Bei Top 4 ist auch bereits die Küche im Preis enthalten.
- Grunderwerbsteuer: 3,5 % vom Kaufpreis inkl. Vertragserrichtungskosten
- Eintragungsgebühr: 1,1 % vom Kaufpreis inkl. Vertragserrichtungskosten. Bei einer Hauptwohnsitzgründung sind Sie von der Gebühr befreit! Genauere Infos erhalten Sie nach einer Anfrage.
- Kosten der Vertragserrichtung samt Wohnungseigentumsbegründung und treuhändischer Abwicklung (Vertragserrichter: Rechtsanwältin Mag. Marlene Krüger): 1,5 % vom Kaufpreis zzgl. Umsatzsteuer und Barauslagen.
- Provisionsfrei für Käufer.

Wir weisen auf ein wirtschaftliches Nahverhältnis zum Verkäufer aufgrund der vorherigen Vermittlungen hin.
Angaben gemäß gesetzlichem Erfordernis:
Heizwärmebedarf:22.8 kWh/(m²a)
Klasse Heizwärmebedarf:A
Faktor Gesamtenergieeffizienz:0.56
Klasse Faktor Gesamtenergieeffizienz:A+

Eckdaten

Objektnr: 3801_903
Art: Wohnung - Etage
Land: Österreich
Baujahr: 2025
Zustand: Erstbezug
Alter: Neubau
Kaufpreis: 539.000,00
Wohnfläche: 100,00 m²
Zimmer: 4
Bäder: 1
WC: 1
Terrassen: 1
Stellplätze: 1
Keller: 1,40 m²
Heizwärmebedarf:  A  22,80 kWh/m²a
fGEE:  A+  0,56
Immobilie merken Exposé

Ausstattung

Erdwärme, Zentralheizung, Personenaufzug, Garage


Internet und TV

Information zur Internet und TV Versorgung hier


Immobilie anfragen


Ihre persönliche Beratung

RE/MAX Together

Mag. Gudrun Pehn-Mungenast

RE/MAX Together

E gudrun.pehn-mungenast@remax-together.at

H +43 660 913 06 94