Hochwertige Doppelhaushälfte | Erstbezug 2026

Haus - Reihenhaus, 2126 Ladendorf

Beschreibung der Immobilie

Hohe Lebensqualität für Jungfamilien, nur 25 Minuten Autofahrt von der Wiener Stadtgrenze entfernt!
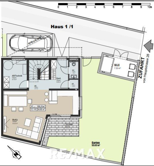
Zum Verkauf stehen 6 Doppelhaushälften im Zentrum von Ladendorf, nahe Mistelbach. Die Häuser verfügen jeweils über 3 Schlafzimmer im Obergeschoss und eine große Wohnküche im Erdgeschoss. Die Heizung erfolgt mittels einer nachhaltigen Luft-Wärmepumpe. Die Fertigstellung ist für Herbst 2026 vorgesehen.

Wählen Sie Ihr Lieblingshaus aus den unterschiedlichen Raumaufteilungen und Ausrichtungen: www.remax.at/de/pr-oase-28-in-ladendorf

Das Projekt befindet sich zwischen der Kapellenstraße und der Hauptstraße in Ladendorf. Das große Grundstück wurde in drei separate Grundstücke aufgeteilt, sodass nur 2 Häuser jeweils ein gemeinsames Wohnungseigentum bilden. Jedem Haus sind 2 Stellplätze zugeordnet. Die Häuser werden in Massivbauweise errichtet und sind nicht unterkellert.

Die Ausstattung umfasst alles, was man sich von einem modernen Haus nur wünschen kann:
- Heizung mit einer Luft-Wärmepumpe
- Fußbodenheizung inkl. Kühlfunktion
- Glasfaserinternetverbindung
- Sonnenschutz durch Raffstores
- 2 Toiletten, eine Dusche und eine Badewanne
Eine PV-Anlage, eine Klimaanlage oder eine E-Ladesäule für Elektroautos kann gegen Aufpreis angeboten werden. Eine Leerverrohrung ist standardmäßig eingebaut.

Lage
Die Marktgemeinde Ladendorf, auf einer Seehöhe von 228 m und an den Ausläufern der Leiser Berge gelegen, bietet eine hervorragende Lebensqualität. Die Infrastruktur ist gut ausgebaut und umfasst unter anderem eine Pfarrkirche, einen Arzt mit Apotheke, die Erste Bank, ein Kaufhaus sowie mehrere Fleischereien, Gasthäuser und Restaurants. Lokale Imbissbetriebe und Ab-Hof-Verkäufe erweitern das kulinarische Angebot. Zwei Gärtnereien und Tankstellen sorgen für zusätzliche Annehmlichkeiten. Für die Kleinen gibt es einen Kindergarten und eine Volksschule mit Nachmittagsbetreuung. Sport- und Freizeitmöglichkeiten wie ein Sportplatz, Tennisplätze, ein Hallenbad, eine Sauna, ein Gymnastikraum sowie zahlreiche Reit- und Radwege runden das Angebot ab.

Verkehrsanbindung
Nach Mistelbach benötigen Sie mit dem Auto lediglich 10 Minuten, mit der Bahn sogar nur 7 Minuten! Wien Floridsdorf erreichen Sie in 25 Minuten mit dem Auto, und mit der S2 oder dem REX fahren Sie mit den modernen Niederflurfahrzeugen von Ladendorf Bahnhof zum Praterstern in knapp einer Stunde.

Landesförderungen Niederösterreich
Bis zu € 10.000 Zuschuss und ein Darlehen mit 1 % Zinssatz sind möglich! In den Anhängen finden Sie ein Finanzierungsbeispiel dazu.
https://noe.gv.at/noe/Bauen-Neubau/Eigenheim_Reihenhaus.html

Kaufpreis und Kaufnebenkosten
Die Kaufpreise gelten für die belagsfertige Ausführung. Preise für schlüsselfertige Ausführung auf Anfrage.
- Grunderwerbsteuer: 3,5 % vom Kaufpreis inkl. Vertragserrichtungskosten
- Eintragungsgebühr: 1,1 % vom Kaufpreis inkl. Vertragserrichtungskosten.
Bei einer Hauptwohnsitzgründung sind Sie von der Gebühr befreit! Genauere Infos erhalten Sie nach einer Anfrage.
- Kosten der Vertragserrichtung samt Wohnungseigentumsbegründung und treuhändischer Abwicklung: 1,1 % vom Kaufpreis zzgl. Umsatzsteuer und Barauslagen.
- Provisionsfrei für Käufer.

Wir weisen auf ein wirtschaftliches Nahverhältnis zum Verkäufer aufgrund vorheriger Vermittlungen hin.
Angaben gemäß gesetzlichem Erfordernis:
Heizwärmebedarf:46.0 kWh/(m²a)
Klasse Heizwärmebedarf:B
Faktor Gesamtenergieeffizienz:0.7
Klasse Faktor Gesamtenergieeffizienz:A+

Eckdaten

Objektnr: 3801_920
Art: Haus - Reihenhaus
Land: Österreich
Baujahr: 2026
Zustand: Erstbezug
Kaufpreis: 394.400,00
Wohnfläche: 105,00 m²
Zimmer: 4
Bäder: 1
WC: 2
Terrassen: 2
Stellplätze: 2
Heizwärmebedarf:  B  46,00 kWh/m²a
fGEE:  A+  0,70
Immobilie merken Exposé

Ausstattung

Erdwärme, Zentralheizung, Parkplatz


Internet und TV

Information zur Internet und TV Versorgung hier


Immobilie anfragen


Ihre persönliche Beratung

RE/MAX Together

Patrick Koukal

RE/MAX Together

E patrick.koukal@remax-together.at

H +43 664 256 1 258