landLEBEN - Modern Wohnen am Hausruckwald Haus 2 Top 10

Wohnung - Etage, 4680 Haag am Hausruck

Beschreibung der Immobilie

landLEBEN: Modern Wohnen am Hausruckwald inklusive Tiefgaragenplatz

Das Projekt
In der Ortschaft Aubach, am Ortsrand der facettenreichen Gemeinde Haag am Hausruck, entsteht das neue Wohnprojekt „landLEBEN“, eingebettet in die sanften Hügel des Naherholungsgebietes Hausruckwald.

Das Objekt gliedert sich in zwei moderne Baukörper, mit insgesamt 22 Wohneinheiten samt ausreichend Tiefgaragenplätzen. Die Wohnungen sind mit großzügigen Balkonen bzw. einer Terrasse mit eigenem Garten, der süd-westlich ausgerichtet ist, ausgestattet.

Bei jeder Wohnung ist ein Tiefgaragenplatz im Kaufpreis inkludiert. Sämtliche Nebenräume wie zB Wasch- und Trockenraum, Fahrradräume und Kellerräume befinden sich im Untergeschoß und sind mit dem Lift bequem erreichbar.


Highlights
Wohlig warme Fernwärme
Die Heizungsversorgung erfolgt zentral über die umweltfreundliche Fernwärme, die mittels Geothermie betrieben wird.

Photovoltaik-Anlage / geringe Betriebskosten
Aufgrund der Niedrigenergiebauweise (33 kWh/m²/Jahr) sind die Heizkosten sehr moderat. Überschüsse aus der Photovoltaik-Anlage werden bei der jährlichen Betriebskostenabrechnung in Abzug gebracht.

Auto gut aufgeboben
Ein Tiefgaragenplatz ist bei jeder Wohnung inkludiert, auf Wunsch können auch mehrere zusätzliche Stellplätze erworben werden. Weiters sind 10 Stellplätze und Besucherparkplätze vorhanden.

Spielen kommt nicht zu kurz
Die kleinsten Bewohner können sich am Spielplatz nach Lust und Laune austoben. Genießen Sie die Zeit, in der Ihre Kinder und Enkel beschäftigt sind.

Wohnungsausstattung
Im Kaufpreis aller Wohnungen ist ein Eichenparkett, großformatige, moderne Feinsteinfliesen und die komplette Sanitäreinrichtung enthalten.


landLEBEN - Fakten
- Baubeginn Frühjahr 2024
- voraussichtliche Baufertigstellung Herbst 2025
- Jede Wohnung ist frei finanziert
- Massivbauweise
- Fußbodenheizung mit Fernwärme
- 3-Scheiben-Isolierverglasung
- Photovoltaik-Anlage / geringe Betriebskosten
- Elektrische Raffstores bzw. Rollläden in den Wohnräumen
- Eichenparkett und Feinsteinfliesen
- Waschmaschinenanschluss in der Wohnung
- Kellerabteil
- Spielplatz
- Provisionsfrei für den Käufer - Verkäufer zahlt Käuferprovision


Die Marktgemeinde
Haag ist ein lebendiger Markt voller Geschichte und Geschichten.
Der vielleicht steilste Marktplatz Oberösterreichs lädt zum Verweilen und Staunen ein.
Von Traditionsgasthäusern über gemütliche Cafés und mediterraner Küche bietet Haag am Hausruck viele Möglichkeiten für Geselligkeit und Kulinarik.

Die Marktgemeinde besitzt einen eigenen Autobahnanschluss, somit besteht eine schnelle Anbindung an den Zentralraum Wels/Linz und Ried im Innkreis.


Die Region Hausruckwald
Eingebettet in eine malerische Hügellandschaft ruht die lebenswerte Region Hausruckwald, die ideal für Outdoor-Aktivitäten wie Wandern, Radfahren, Reiten und Golfspielen ist.

Wandern inmitten dieser sanften Hügellandschaft ist zu jeder Jahreszeit ein Genuss. Kleine Bäche, eine Vielfalt an Tier- und Pflanzenarten und wunderschöne Panoramablicke begleiten Wanderer auf ihren Wegen und versprechen eine Auszeit fernab von Alltag und Hektik, sowie eine große Portion Lebensqualität.


Willkommen im Projekt ''landLEBEN'', wo die atemberaubende Naturkulisse und die zeitgemäße, moderne Bauweise sich zu einem einzigartigen Lebensraum vereinen. Hier können Sie inmitten unberührter Natur Ruhe und Inspiration finden, während Sie zugleich den Komfort und die Annehmlichkeiten moderner Architektur genießen.
Angaben gemäß gesetzlichem Erfordernis:
Heizwärmebedarf:32.0 kWh/(m²a)
Klasse Heizwärmebedarf:B

Eckdaten

Objektnr: 3777_300
Art: Wohnung - Etage
Land: Österreich
Baujahr: ca. 2024
Zustand: Erstbezug
Kaufpreis: 497.447,00
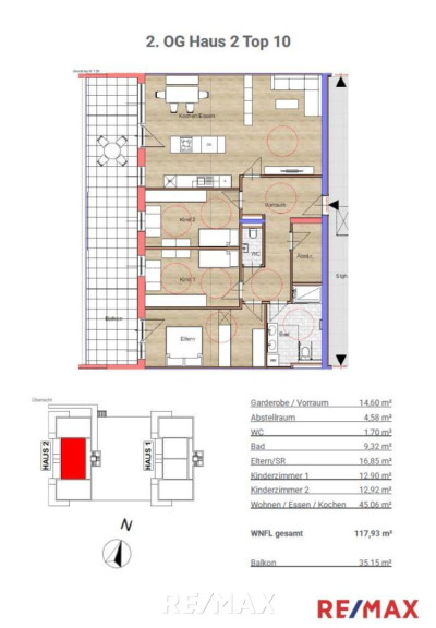
Wohnfläche: 117,93 m²
Bäder: 1
WC: 1
Balkone: 1
Heizwärmebedarf:  B  32,00 kWh/m²a
Immobilie merken Exposé

Ausstattung

Zentralheizung, Personenaufzug


Internet und TV

Information zur Internet und TV Versorgung hier


Immobilie anfragen


Ihre persönliche Beratung

RE/MAX Bonus

Ing. Mag. Andreas Aumayr

RE/MAX Bonus

E a.aumayr@remax-bonus.at

T 67072

H +43 660 48 12 970