57m² Genossenschaftswohnung "ERSTBEZUG-PROVISIONSFREI" Miete mit Kaufrecht, unbefristet (2 Pkw Einstellplätze) + Loggia

Wohnung - Etage, 3033 Altlengbach

Beschreibung der Immobilie

Zur Vermietung gelangt diese freundliche und sehr gut ausgestattete Erstbezugswohnung in großartiger Lage von Altlengbach, schnelle Anbindung zur Autobahn.
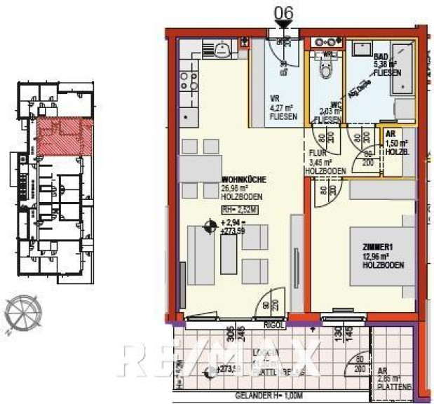
57 m² Mietwohnung mit Kaufrecht (Stiege 2, Top 6 – vom Land NÖ gefördert - Vergabe durch NÖ Wohnservice)

Diese schöne Wohnung befindet sich in einer neu errichteten Wohnhausanlage in Altlengbach-Nest.
Die gesamte Wohnhausanlage wird in Niedrigenergiebauweise samt kontrollierter Wohnraumlüftung mit Wärmerückgewinnung hergestellt.
Die Beheizung und Warmwasserversorgung der Wohnhausanlage erfolgt durch Fernwärme sowie einer Photovoltaikanlage.
Alle Fenster sowie die Terrassentüre werden mit Rollläden ausgestattet sein. Die Fußböden sind mit Holzböden und Fliesen ausgestattet.
In jeder Stiege wird es einen Aufzug geben, welcher zu den Wohnungen am jeweiligen Stockwerk führt. Die Briefkastenanlagen sind beim Hauseingang angeordnet.

Facts:
Wohnfläche 56,57-57,02 m²
1 Terrasse 1,49 m²
1 Loggia 11,50-11,90 m²
1 Zimmer, 1 Wohnküche, 1 Vorraum, 1 Flur, 1 Badezimmer, 1 Toilette, 1 Abstellraum,
1 Kellerabteil (= 1 Einlagerungsraum im EG).
2 Tiefgaragen PKW-Abstellplätze

Zwei PKW-Abstellplätze sind dieser Wohnung ebenfalls zugeordnet. Auf Sonderwunsch kann jeweils ein Stellplatz mit einer Ladesteckdose für ein E-Auto ausgestattet werden (Herstellungskosten müssen vom Mieter übernommen werden).
Ein praktischer Abstellraum für Fahrräder und Kinderwägen stehen im jeweiligen Haus im EG zur Verfügung.
Innerhalb der Wohnhausanlage befindet sich ein Kleinkinderspielplatz, ein öffentlicher Spielplatz wird in der Nähe von der Marktgemeinde errichtet.

Infrastruktur:
Die Marktgemeinde Altlengbach liegt am Rande des Wienerwaldes. Zwei Kindergärten, eine Volksschule und eine Neue Mittelschule befinden sich in der Marktgemeinde. Für die Gesundheit sorgen diverse ortsansässige Ärzte. Weiters punktet Altlengbach mit ihrem Anschluss an die Westautobahn, welche die Erreichbarkeit von St. Pölten in ca. 15 Autominuten ermöglicht. Zusätzlich steht ein Fahrtendienst des Vereins „E-Mobilität Laabental“ für die Bevölkerung zur Verfügung.
Angaben gemäß gesetzlichem Erfordernis:
Miete 700,91 zzgl 10% USt.
Umsatzsteuer 70,09
------------------------------------------------------------------
Gesamtbetrag 771
------------------------------------------------------------------
Heizwärmebedarf:25.7 kWh/(m²a)
Klasse Heizwärmebedarf:B

Eckdaten

Objektnr: 3519_304
Art: Wohnung - Etage
Land: Österreich
Baujahr: ca. 2023
Zustand: Erstbezug
Alter: Neubau
Gesamtmiete: 771,00
Kaltmiete (netto): 700,91 €
Kaltmiete: 771,00 €
Wohnfläche: 57,00 m²
Zimmer: 2
Bäder: 1
WC: 1
Terrassen: 1
Stellplätze: 2
Keller: 2,85 m²
Heizwärmebedarf:  B  25,70 kWh/m²a
Immobilie merken Exposé

Ausstattung

Zentralheizung, Kabel/Satelliten-TV, Garage


Internet und TV

Information zur Internet und TV Versorgung hier


Immobilie anfragen


Ihre persönliche Beratung

RE/MAX Park

Bernd Friedrich

RE/MAX Park

E b.friedrich@remax-park.at

H +43 660 862 26 80