landLEBEN - Modern Wohnen am Hausruckwald Haus 1 Top 06

Wohnung - Etage, 4680 Haag am Hausruck

Beschreibung der Immobilie

landLEBEN: Modern wohnen am Hausruckwald inklusive Tiefgaragenplatz

In der Ortschaft Aubach, am Ortsrand der lebendigen Gemeinde Haag am Hausruck, eingebettet in die sanften Hügel des Hausruckwaldes, liegt das neue Wohnprojekt landLEBEN.

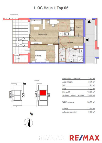
Zwei moderne Baukörper beherbergen insgesamt 22 Wohneinheiten mit Größen von ca. 58 m² bis ca. 118 m². Alle Wohnungen sind sofort bezugsfertig und verfügen über großzügige Balkone oder eine Terrasse mit eigenem Garten in süd-westlicher Ausrichtung.

Ein Tiefgaragenplatz ist bei jeder Wohnung inkludiert, zusätzliche Stellplätze können erworben werden. Weiters sind 10 Stellplätze und Besucherparkplätze vorhanden.
Nebenräume wie Wasch- und Trockenraum, Fahrrad- und Kellerräume sind bequem mit dem Lift erreichbar. Für die Kleinsten gibt es einen eigenen Spielplatz.

Die Wärmeversorgung erfolgt zentral über umweltfreundliche Fernwärme aus Geothermie. Aufgrund der Niedrigenergiebauweise sind die Heizkosten sehr moderat. Überschüsse aus der Photovoltaik-Anlage werden bei der jährlichen Betriebskostenabrechnung gutgeschrieben, ein klarer Vorteil für Eigentümer und Bewohner, der nachhaltiges Wohnen leistbar macht.

Im Kaufpreis enthalten sind hochwertige Ausstattungen wie Eichenparkett, moderne Feinsteinfliesen und die kompletten Sanitäreinrichtungen.

landLEBEN - Fakten
• Wohnungen sofort bezugsfertig
• Wohnungsgrößen von ca. 58 m² bis ca. 118 m²
• Jede Wohnung ist freifinanziert
• Massivbauweise
• Fußbodenheizung mit Fernwärme (Geothermie)
• 3-Scheiben-Isolierverglasung
• Photovoltaik-Anlage / geringe Betriebskosten
• Elektrische Raffstores bzw. Rollläden in den Wohnräumen
• Eichenparkett und Feinsteinfliesen
• Waschmaschinenanschluss in der Wohnung
• Kellerabteil
• Spielplatz
• Provisionsfrei für Käufer (Verkäufer zahlt Provision)


Haag am Hausruck bietet nicht nur einen eigenen Autobahnanschluss mit schneller Verbindung nach Wels, Linz und Ried, sondern auch vielfältige Freizeitmöglichkeiten: Wandern, Radfahren, Reiten, Golfen – oder einfach die Natur genießen. Der historische Marktplatz mit Gasthäusern, Cafés und Restaurants lädt zum Verweilen ein.
Mit landLEBEN erwartet Sie modernes Wohnen im Einklang mit Natur, Komfort und nachhaltiger Bauweise.

Haftungserklärung zum Inserat
Wir weisen darauf hin, dass alle Angaben nach bestem Wissen und Gewissen erstellt wurden. Für Auskünfte und Angaben, die uns von Seiten der Eigentümer und Dritten zur Verfügung gestellt wurden, übernehmen wir keine Haftung. Dieses Angebot ist unverbindlich und freibleibend. Zwischenverwertung, Irrtum, Druckfehler und Änderungen vorbehalten.
Sofern es sich bei Bildern um Visualisierungen handelt, können Abänderungen zur tatsächlichen Ausführung resultieren. Wir weisen ausdrücklich darauf hin, dass das auf Fotos oder Visualisierungen ersichtliche Mobiliar bzw. Inventar nicht Bestandteil des inserierten Preises ist.

Doppelmakler
Wir werden als Immobilienmakler kraft bestehenden Geschäftsgebrauchs (siehe §5, Abs. 3 Maklergesetz) als Doppelmakler tätig und haben sohin beide Seiten des Vertrages (Verkäufer-Käufer, Vermieter-Mieter) zu unterstützen. Bitte beachten Sie, dass wir aufgrund der Nachweispflicht gegenüber dem Eigentümer nur Anfragen mit vollständiger Angabe der Anschrift und Telefonnummer bearbeiten können.
Angaben gemäß gesetzlichem Erfordernis:
Heizwärmebedarf:33.0 kWh/(m²a)
Klasse Heizwärmebedarf:B

Eckdaten

Objektnr: 3040_1718
Art: Wohnung - Etage
Land: Österreich
Baujahr: ca. 2024
Zustand: Erstbezug
Kaufpreis: 246.608,00
Wohnfläche: 58,55 m²
Zimmer: 1
Bäder: 1
WC: 1
Balkone: 1
Heizwärmebedarf:  B  33,00 kWh/m²a
Immobilie merken Exposé

Ausstattung

Zentralheizung, Personenaufzug


Internet und TV

Information zur Internet und TV Versorgung hier


Immobilie anfragen


Ihre persönliche Beratung

RE/MAX Fit Schärding

Katrin Penninger

RE/MAX Fit in Grieskirchen

E k.penninger@remax-fit.at

H +43 (0)676 954 73 85