Büro/Ordination/Praxis zu kaufen/zu mieten

Büro / Praxis - Bürofläche, 1020 Wien

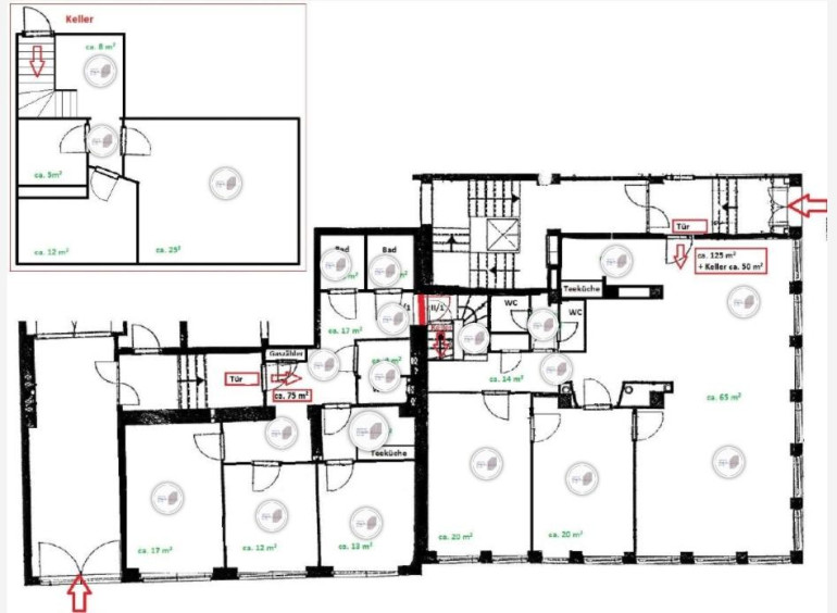
Beschreibung der Immobilie

Die Fläche erstreckt sich über 2 Ebenen und besteht aus 2 zusammengelegten Tops, welche über eine interne Stiege verbunden sind.

Verfügbare Fläche: ca. 200 m² Büro/Praxis samt Nebenflächen und 50 m² Keller
Ausstattung:
2 Küchen
2 Duschen
3 WC (getrennt)
2 getrennte Eingänge

Gasheizung
Fussbodenheizung
Klimaanlage in 3 Räumen im oberen Büro
Sicherheitstür
Kunststofffenster
Jalousien
Fliesenboden
Garagenstellplätze im Nachbarhaus anmietbar


Kaufpreis: € 990.000,- netto

Lage:
U1 Schwedenplatz, Straßenbahn 1 und 2, Bus 5A,


Käuferprovision: 3% des Kaufpreises zzgl. 20% Ust.
Mieterprovision: 3 Bruttomonatsmieten zzgl. 20% Ust.
Angaben gemäß gesetzlichem Erfordernis:
Miete 3600 zzgl 20% USt.
Betriebskosten 463,2 zzgl 20% USt.
Reparaturfonds 231,6 zzgl 20% USt.
Umsatzsteuer 858,96
------------------------------------------------------------------
Gesamtbetrag 5153,76
------------------------------------------------------------------
Heizwärmebedarf:135.5 kWh/(m²a)
Klasse Heizwärmebedarf:D
Faktor Gesamtenergieeffizienz:1.86
Klasse Faktor Gesamtenergieeffizienz:D

Eckdaten

Objektnr: 2603_14310
Art: Büro / Praxis - Bürofläche
Land: Österreich
Zustand: Gepflegt
Kaufpreis: 990.000,00
Kaufpreis / m²: auf Anfrage
Gesamtmiete: 5.153,76
Kaltmiete (netto): 3.600,00 €
Kaltmiete: 4.294,80 €
Provision: 3.00 %
Nutzfläche: 250,00 m²
Bürofläche: 250,00 m²
WC: 3
Heizwärmebedarf:  D  135,00 kWh/m²a
fGEE:  D  1,86
Immobilie merken Exposé

Ausstattung

Gas, Etagenheizung


Internet und TV

Information zur Internet und TV Versorgung hier


Immobilie anfragen


Ihre persönliche Beratung

RE/MAX Commercial Group

Anton Putz

RE/MAX Commercial Group

E a.putz@remax-commercial.at

T 1238612