Schöne Geschäfts und Bürofläche in Kramsach für Ihr Unternehmen
Einzelhandel
- Ladenlokal,
6233
Kramsach
Beschreibung der Immobilie
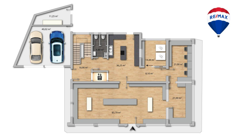
Im Erdgeschoß dieses mit Liebe sanierten und modernisierten Wohn- und Geschäftshauses, befindet sich eine großzügige
ca. 192m² große Geschäftsfläche, zur Vermietung. Zu bieten hat die Geschäftsfläche einen großen Verkaufsraum mit ca. 84 m², zwei Nebenräume mit ca. 21 m² sowie ein Besprechungszimmer mit ca. 14 m² und ein großzügiger Raum mit ca. 36 m². Die Geschäftsfläche verfügt über Damen und Herren - Toiletten sowie Bodenauslässe mit DV-Verkabelung. Die Kellerfläche ist nicht Gegenstand des Angebots, es kann jedoch ein Teil dazu gemietet werden. Im Aussenbereich befinden sich ein Garagenabstellplatz, sowie fünf Parkplätze im Freien.
Trotz der Ruhelage im Kramsacher Mariathal sind das Dorfzentrum und die Nahversorger, sowie zahlreiche Cafès und
Lokale in nur wenigen Fahrminuten erreichbar. Ebenso Kindergarten und Schulen. Zum Skigebiet Reitherkogelbahn
gelangt man in 5 Autominuten, zu den Alpbacher Bergbahnen in nur 15 Minuten (ca. 10 km). Die Rheintaler Seen
erreichen Sie in ebenfalls nur 5 Autominuten. Kramsach ist ein sehr familiärer Ort mit gemütlichen Cafes und
Restaurants. Kindergarten und Schulen sowie Ärzte sind im Ort verfügbar. Ein Einkaufszentrum und die Autobahn sind
in wenigen Fahrminuten im Nachbarort Brixlegg erreichbar.
| Angaben gemäß gesetzlichem Erfordernis: | |||
| Miete | € | 2000 | zzgl 20% USt. |
| Betriebskosten | € | 291,67 | zzgl 20% USt. |
| Umsatzsteuer | € | 458,33 | |
| ------------------------------------------------------------------ | |||
| Gesamtbetrag | € | 2750 | |
| ------------------------------------------------------------------ | |||
| Heizwärmebedarf: | 31.0 kWh/(m²a) | ||
| Klasse Heizwärmebedarf: | B | ||
| Faktor Gesamtenergieeffizienz: | 0.82 | ||
| Klasse Faktor Gesamtenergieeffizienz: | A | ||
Eckdaten
| Objektnr: | 2603_14362 |
| Art: | Einzelhandel - Ladenlokal |
| Land: | Österreich |
| Baujahr: | ca. 1980 |
| Zustand: | Gepflegt |
| Gesamtmiete: | 2.750,00 € |
| Kaltmiete (netto): | 2.000,00 € |
| Kaltmiete: | 2.291,67 € |
| Provision: | 8250.00 |
| Nutzfläche: | 192,00 m² |
| Verkaufsfläche: | 192,00 m² |
| WC: | 2 |
| Stellplätze: | 6 |
| Heizwärmebedarf: | B 31,00 kWh/m²a |
| fGEE: | A 0,82 |
Ausstattung
Personenaufzug, DV-Verkabelung, Garage, Parkplatz
Internet und TV
Information zur Internet und TV Versorgung hier
Ihre persönliche Beratung
Raimund Baumgarten
RE/MAX Commercial Group
E r.baumgarten@remax-commercial.at
T 3538895